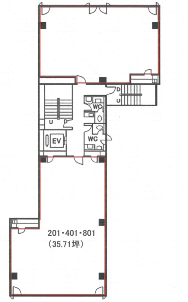
本郷大関ビル2階の賃貸情報
35.71 坪 (118.08m²)
※このサイトに記載がある賃貸条件は、敷金・保証金などの預かり金を除き、別途消費税がかかります。
本郷大関ビルの建物概要
設備詳細
| 空調 | 個別空調 |
|---|---|
| トイレ | - |
| 床仕様 | - |
| エレベータ | 1 基 |
| 駐車場設備 | 空無 |
| その他 | 機械警備 / 光ファイバー / 新耐震基準 |
本郷大関ビル2階の賃貸オフィス・事務所に関するお問い合わせ
本郷大関ビルについて
**【本郷大関ビル:文京区のアクセス抜群オフィススペース】** 東京都文京区本郷に位置する「本郷大関ビル」は、1989年に竣工された、地震に強い新耐震基準のオフィスビルです。本郷三丁目駅からすぐの場所にあり、都営大江戸線と東京メトロ丸の内線が利用可能で、都内主要ビジネスエリアへのアクセスが非常に便利です。ビルの周辺は飲食店や金融機関、コンビニが充実しており、毎日の業務に必要なすべてが揃っています。 ビルのエントランスは清潔感があり、高級感のある石張りで迎えてくれます。セキュリティは24時間機械警備で、安心して業務に専念できる環境が整っています。また、ビル内には月極駐車場も完備されており、お車での通勤もスムーズです。 オフィスフロアは、1階に1機のエレベーターがあり、各フロアは2つの区画に分かれています。これにより、プライバシーが保たれつつ、隣の音も気にならない静かなオフィス環境を提供します。各テナントは約30坪前後となっており、L字型や長方形の間取りがあり、レイアウトがしやすいのも特徴です。トイレは男女別で、執務スペースの外に配置されています。 外観はグレーを基調としたシンプルなデザインで、現代のビジネスシーンにマッチする洗練された印象を与えます。ビルの1階には旅行代理店も入っており、ビジネスだけでなく私生活の利便性もサポートします。 本郷大関ビルは、その立地の良さ、機能的なオフィス空間、そして充実した周辺環境により、多くのビジネスマンにとって魅力的な選択肢となるでしょう。文京区で新しいオフィスをお探しの方は、ぜひ本郷大関ビルをご検討ください。ここから新たなビジネスの成功を築き上げていくための最良のスタートが切れるはずです。
本郷大関ビルのこだわり
自分で探すより問い合わせる方が早いことがあります
WEB非公開物件があるから
オーナー様のご希望により「WEBでは非公開」にしている物件があります。 それらはWEBでいくら検索しても見つかりません。 先ずは条件などお知らせ頂けましたら非公開物件含め ピッタリのオフィスをご提案させて頂きます。 無理なお勧めはしておりませんので、お気軽にお問い合わせください。
対面でのご相談も受け付けております
ご来店も歓迎です
オフィス移転は社内・社外ともに非公開に行われることが殆どです。そのためアットオフィスでは、基本的に訪問によるコンサルティングを行っておりますが、ご来店の相談も歓迎です。お一人おひとりに親身にご対応させて頂きたい為、要予約とさせて頂いております。ご来店の際は先ずは下記よりご予約下さい。
湯島/本郷/後楽園エリアで本郷大関ビルに似た条件の物件
読込中...
本郷大関ビルと同じ最寄駅の物件
読込中...
| 取扱様態 | 仲介 |
|---|---|
| 取扱会社 | 株式会社 アットオフィス |