ヒューリック葛西臨海ビル4階の賃貸情報
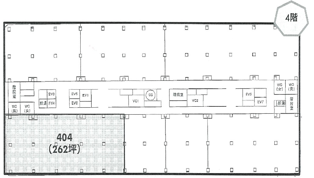
262 坪 (866.12m²)
※このサイトに記載がある賃貸条件は、敷金・保証金などの預かり金を除き、別途消費税がかかります。
ヒューリック葛西臨海ビルの建物概要
| 階数 | 4階 |
|---|---|
| 住所 | 江戸川区臨海町3丁目6-4地図 |
| 最寄り駅 |
|
| 徒歩圏駅 | |
| 竣工 | 1992年2月 |
| 基準階坪数 | |
| 用途/仕様 | 事務所 |
設備詳細
| 空調 | 個別空調 |
|---|---|
| トイレ | - |
| 床仕様 | - |
| エレベータ | 4 基 |
| 駐車場設備 | 空有 / 機械式駐車場 |
| その他 | 機械警備 / 新耐震基準 |
ヒューリック葛西臨海ビルについて
ヒューリック葛西臨海は、臨海町3丁目にあるオフィスビルです。葛西臨海公園駅から徒歩13分の場所にあります。1992年に竣工しました。鉄骨鉄筋コンクリート造により耐震性に優れています。エレベーターが4基あります。個別空調付きです。セキュリティ設備があります。機械式駐車場があります。周辺には飲食店やコンビニ、ガソリンスタンドがあります。近隣にはオフィスビルや倉庫ビルが立ち並んでいます。バス停のある広い通りに面しているため、車や歩行者が利用しやすいエリアです。
自分で探すより問い合わせる方が早いことがあります
WEB非公開物件があるから
オーナー様のご希望により「WEBでは非公開」にしている物件があります。 それらはWEBでいくら検索しても見つかりません。 先ずは条件などお知らせ頂けましたら非公開物件含め ピッタリのオフィスをご提案させて頂きます。 無理なお勧めはしておりませんので、お気軽にお問い合わせください。
対面でのご相談も受け付けております
ご来店も歓迎です
オフィス移転は社内・社外ともに非公開に行われることが殆どです。そのためアットオフィスでは、基本的に訪問によるコンサルティングを行っておりますが、ご来店の相談も歓迎です。お一人おひとりに親身にご対応させて頂きたい為、要予約とさせて頂いております。ご来店の際は先ずは下記よりご予約下さい。
近くのエリアで探してみる
江戸川区エリアでヒューリック葛西臨海ビルに似た条件の物件
読込中...
ヒューリック葛西臨海ビルと同じ最寄駅の物件
読込中...
| 取扱様態 | 仲介 |
|---|---|
| 取扱会社 | 株式会社 アットオフィス |