※このサイトに記載がある賃貸条件は、敷金・保証金などの預かり金を除き、別途消費税がかかります。
物件情報
設備詳細
| 空調 | - |
|---|---|
| トイレ | - |
| 床仕様 | - |
| エレベータ | - |
| 駐車場設備 | - |
| その他 | 新耐震基準 |
松本ビルの賃貸オフィス・事務所に関するお問い合わせ
松本ビルについて
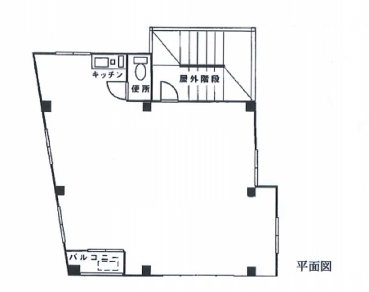
松本ビルは、東京都文京区目白台に位置する賃貸オフィス物件で、1991年に竣工された3階建ての建物です。文京区という都心に近い利便性の高いエリアにありながら、目白台運動公園近くの自然豊かな環境に囲まれており、落ち着いた雰囲気の中でビジネスを行うことが可能です。 ビルは目白通りに面しており、非常に良好な視認性を誇ります。これにより、ビジネスの認知度向上に寄与する可能性があります。また、東京メトロ有楽町線の護国寺駅から徒歩10分とアクセスも良好です。周辺には飲食店やスーパーマーケット、郵便局などがあり、日常の利便性も高いです。 このオフィス物件は、エレベーターが設置されていないため、階段での移動となりますが、これにより管理費の節約にも繋がる可能性があります。各フロアは約24坪となっており、中小企業やスタートアップ企業に適した広さです。オフィスは24時間利用可能で、セキュリティもしっかりしているため、時間を問わず作業が行えます。 室内は日当たりが良好で、明るい雰囲気の作業空間が広がっています。個別空調が完備されており、各テナントが快適な温度設定を行えることも大きな魅力の一つです。また、トイレや給湯設備も各室内に完備されており、利便性が高くなっています。 松本ビルは、その立地、設備、そして周辺環境の良さから、多様な業種の企業にとって魅力的な選択肢となるでしょう。特に、自然豊かな環境で静かに作業を進めたい企業や、アクセスの利便性を重視する企業におすすめの物件です。
松本ビルのこだわり
自分で探すより問い合わせる方が早いことがあります
WEB非公開物件があるから
オーナー様のご希望により「WEBでは非公開」にしている物件があります。 それらはWEBでいくら検索しても見つかりません。 先ずは条件などお知らせ頂けましたら非公開物件含め ピッタリのオフィスをご提案させて頂きます。 無理なお勧めはしておりませんので、お気軽にお問い合わせください。
対面でのご相談も受け付けております
ご来店も歓迎です
オフィス移転は社内・社外ともに非公開に行われることが殆どです。そのためアットオフィスでは、基本的に訪問によるコンサルティングを行っておりますが、ご来店の相談も歓迎です。お一人おひとりに親身にご対応させて頂きたい為、要予約とさせて頂いております。ご来店の際は先ずは下記よりご予約下さい。
募集終了のテナント区画
| 階数 | 坪数 | 賃料 + 共益費 | 敷金/礼金敷金 礼金 | 検討 |
|---|---|---|---|---|
| 2階 | 24.51坪 (81.04m²) | 募集終了 | - | - |
| 3階 | 24.51坪 (81.04m²) | 募集終了 | - | - |
読込中...
湯島/本郷/後楽園エリアで松本ビルに似た条件の物件
読込中...
| 取扱様態 | 仲介 |
|---|---|
| 取扱会社 | 株式会社 アットオフィス |