TANOSIO新横浜の賃料条件
| 階数 | 坪数 | 賃料 + 共益費 | 敷金/礼金敷金 礼金 | 検討 |
|---|---|---|---|---|
| B2階 | 120.28坪 (397.61m²) | お問合せ下さい (坪:-) | 10ヶ月 無10ヶ月/無 | |
| 1階 | 103.19坪 (341.12m²) | お問合せ下さい (坪:-) | 10ヶ月 無10ヶ月/無 | |
| 6階 | 142.64坪 (471.55m²) | お問合せ下さい (坪:-) | 10ヶ月 相談10ヶ月/相談 | |
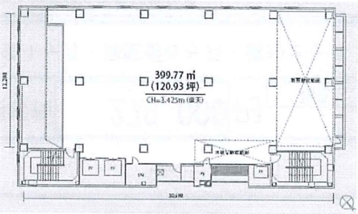
| 7階 | 142.64坪 (471.53m²) | お問合せ下さい (坪:-) | 10ヶ月 無10ヶ月/無 | |
| 8階 | 142.64坪 (471.53m²) | お問合せ下さい (坪:-) | 10ヶ月 無10ヶ月/無 | |
| 9階 | 134.04坪 (443.14m²) | お問合せ下さい (坪:-) | 10ヶ月 無10ヶ月/無 |
※このサイトに記載がある賃貸条件は、敷金・保証金などの預かり金を除き、別途消費税がかかります。
物件情報
設備詳細
| 空調 | 個別空調 |
|---|---|
| トイレ | - |
| 床仕様 | OA対応床(フリーアクセス) |
| エレベータ | 2 基 |
| 駐車場設備 | - |
| その他 | 24時間利用可 / 大型ビル / 光ファイバー / 新耐震基準 / スケルトン / 1階の物件 / 天井高3m以上 / クリニック / フリーレント / セットアップ |
TANOSIO新横浜の賃貸オフィス・事務所に関するお問い合わせ
TANOSIO新横浜について
tanoshioーshin横浜は、新横浜2丁目にある大型ビルです。新横浜駅から徒歩5分の駅近物件です。1998年に竣工しました。エレベーターは2基です。高速通信向けの光ファイバーにより、ノンストレスです。店舗やクリニック向けの物件です。24時間利用できます。周辺に飲食店やコンビニがあり、急用時も困りません。銀行や郵便局に近いため、手続きがスムーズです。裏通りですが、歩道のある穏やかな通りです。大通りに出やすい駅前商業地のため、移動に便利なエリアです。
自分で探すより問い合わせる方が早いことがあります
WEB非公開物件があるから
オーナー様のご希望により「WEBでは非公開」にしている物件があります。 それらはWEBでいくら検索しても見つかりません。 先ずは条件などお知らせ頂けましたら非公開物件含め ピッタリのオフィスをご提案させて頂きます。 無理なお勧めはしておりませんので、お気軽にお問い合わせください。
WEBから条件問い合わせをする(無料)
対面でのご相談も受け付けております
ご来店も歓迎です
オフィス移転は社内・社外ともに非公開に行われることが殆どです。そのためアットオフィスでは、基本的に訪問によるコンサルティングを行っておりますが、ご来店の相談も歓迎です。お一人おひとりに親身にご対応させて頂きたい為、要予約とさせて頂いております。ご来店の際は先ずは下記よりご予約下さい。
来店予約をする
募集終了のテナント区画
| 階数 | 坪数 | 賃料 + 共益費 | 敷金/礼金敷金 礼金 | 検討 |
|---|---|---|---|---|
| 2階 | 129.46坪 (427.97m²) | 募集終了 | - | - |
| 3階 | 142.64坪 (471.54m²) | 募集終了 | - | - |
| 4階 | 142.64坪 (471.54m²) | 募集終了 | - | - |
| 5階 | 142.64坪 (471.54m²) | 募集終了 | - | - |
| 5階 | 69.42坪 (229.48m²) | 募集終了 | - | - |
| 5階 | 73.21坪 (242.02m²) | 募集終了 | - | - |
読込中...
港北区エリアでTANOSIO新横浜に似た条件の物件
読込中...
| 取扱様態 | 仲介 |
|---|---|
| 取扱会社 | 株式会社 アットオフィス |