※このサイトに記載がある賃貸条件は、敷金・保証金などの預かり金を除き、別途消費税がかかります。
物件情報
設備詳細
| 空調 | 個別空調 |
|---|---|
| トイレ | - |
| 床仕様 | OA対応床(2way/3way) |
| エレベータ | 1 基 |
| 駐車場設備 | 空有 |
| その他 | 機械警備 / 24時間利用可 / 光ファイバー / 新耐震基準 / 東京賃料が坪11000円以下 |
アライズ第2ビルの賃貸オフィス・事務所に関するお問い合わせ
アライズ第2ビルについて
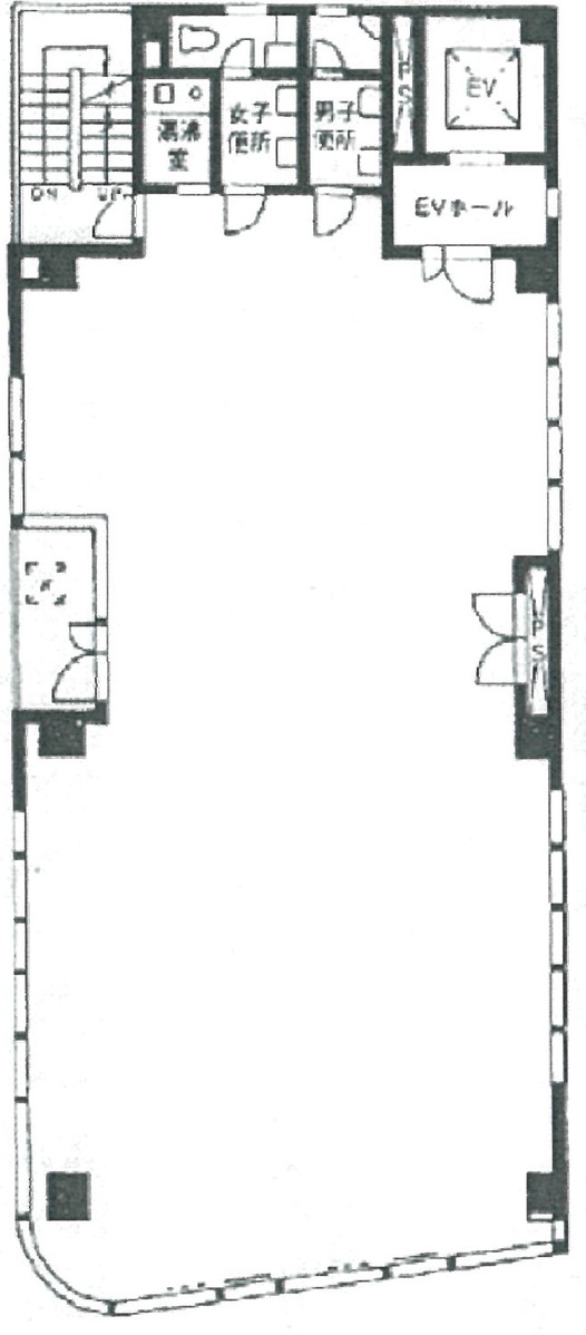
アライズ第2ビルは、中央区日本橋箱崎町に位置する、地上7階建ての白いタイル壁が印象的なオフィスビルです。1988年に竣工し、全面リニューアルも完了しているため、最新の設備と快適なオフィス環境を提供しています。基準階約53坪の貸事務所は、ほぼ長方形でレイアウトしやすく、連続窓からの採光性も良好です。小さなバルコニーを備えており、開放感ある働きやすい空間となっています。 立地においては、2駅3線が利用可能で、水天宮前駅からは徒歩4分、茅場町駅からも徒歩5分という利便性の高さが魅力です。さらに、首都高速6号向島線の箱崎出入口が至近にあり、車でのアクセスも抜群です。東京シティエアターミナルまで歩いて行ける距離にあり、空港リムジンバスの利用も容易で、ビジネスでの移動が多い方にとっても大きな利点となります。 ビル内の設備も充実しており、エレベーターは1機設置されています。セキュリティには機械警備が採用され、24時間利用可能な男女別トイレ、月極駐車場も完備しており、大型車が停められる稀少価値の高い設備も魅力の一つです。さらに、トイレ・給湯の清掃は共益費に含まれており、常に清潔で快適なオフィス環境を維持できます。 ビル周辺には、ランチスポットやコンビニが充実しており、ビジネスでの利便性だけでなく、日常の生活利便性も高い立地です。正面の通りを挟んで日本橋川が流れる景観も楽しむことができます。 アライズ第2ビルは、その立地の利便性、充実した設備、そして快適なオフィス環境を求める企業にとって、最適な選択肢となるでしょう。ビジネスの発展を支える環境がここにはあります。
アライズ第2ビルのこだわり
自分で探すより問い合わせる方が早いことがあります
WEB非公開物件があるから
オーナー様のご希望により「WEBでは非公開」にしている物件があります。 それらはWEBでいくら検索しても見つかりません。 先ずは条件などお知らせ頂けましたら非公開物件含め ピッタリのオフィスをご提案させて頂きます。 無理なお勧めはしておりませんので、お気軽にお問い合わせください。
対面でのご相談も受け付けております
ご来店も歓迎です
オフィス移転は社内・社外ともに非公開に行われることが殆どです。そのためアットオフィスでは、基本的に訪問によるコンサルティングを行っておりますが、ご来店の相談も歓迎です。お一人おひとりに親身にご対応させて頂きたい為、要予約とさせて頂いております。ご来店の際は先ずは下記よりご予約下さい。
募集終了のテナント区画
| 階数 | 坪数 | 賃料 + 共益費 | 敷金/礼金敷金 礼金 | 検討 |
|---|---|---|---|---|
| 2階 | 52.8坪 (174.54m²) | 募集終了 | - | - |
| 4階 | 52.8坪 (174.54m²) | 募集終了 | - | - |
| 5階 | 52.8坪 (174.54m²) | 募集終了 | - | - |
| 6階 | 52.8坪 (174.54m²) | 募集終了 | - | - |
| 7階 | 52.8坪 (174.54m²) | 募集終了 | - | - |
読込中...
近くのエリアで探してみる
人形町/馬喰町/浜町エリアでアライズ第2ビルに似た条件の物件
読込中...
| 取扱様態 | 仲介 |
|---|---|
| 取扱会社 | 株式会社 アットオフィス |