※現在5階に空きがございます。
富士見町ビルヂング1階の賃貸情報
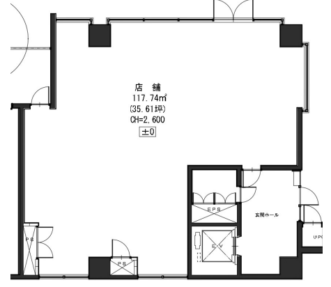
面積
35.61 坪 (117.74m²)
賃料
共益費-
敷金 / 礼金 / 保証金-
償却-
更新料-
※このサイトに記載がある賃貸条件は、敷金・保証金などの預かり金を除き、別途消費税がかかります。
富士見町ビルヂングの建物概要
設備詳細
| 空調 | - |
|---|---|
| トイレ | - |
| 床仕様 | - |
| エレベータ | 1 基 |
| 駐車場設備 | 空有 |
| その他 | 新耐震基準 / 1階の物件 |
※現在5階に空きがございます。
富士見町ビルヂングについて
横浜市ブルーライン伊勢佐木長者町駅徒歩3分、関内駅からも徒歩10分のアクセスにある2路線ご利用可能なオフィスビルになります。SRC造の地上6階建の1994年3月竣工の物件になります。個別空調も備えられており、バルコニーには避難はしごも備わっております。新耐震基準を満たしております。室外の共用部分に男女別トイレ・給湯室が設備されています!エントランス部分には、セキュリティも施されていますので、安全面にも優れております。
自分で探すより問い合わせる方が早いことがあります
WEB非公開物件があるから
オーナー様のご希望により「WEBでは非公開」にしている物件があります。 それらはWEBでいくら検索しても見つかりません。 先ずは条件などお知らせ頂けましたら非公開物件含め ピッタリのオフィスをご提案させて頂きます。 無理なお勧めはしておりませんので、お気軽にお問い合わせください。
WEBから条件問い合わせをする(無料)
対面でのご相談も受け付けております
ご来店も歓迎です
オフィス移転は社内・社外ともに非公開に行われることが殆どです。そのためアットオフィスでは、基本的に訪問によるコンサルティングを行っておりますが、ご来店の相談も歓迎です。お一人おひとりに親身にご対応させて頂きたい為、要予約とさせて頂いております。ご来店の際は先ずは下記よりご予約下さい。
来店予約をする
中区エリアで富士見町ビルヂングに似た条件の物件
読込中...
富士見町ビルヂングと同じ最寄駅の物件
読込中...
| 取扱様態 | 仲介 |
|---|---|
| 取扱会社 | 株式会社 アットオフィス |