虎ノ門セントラルビル9階の賃貸情報
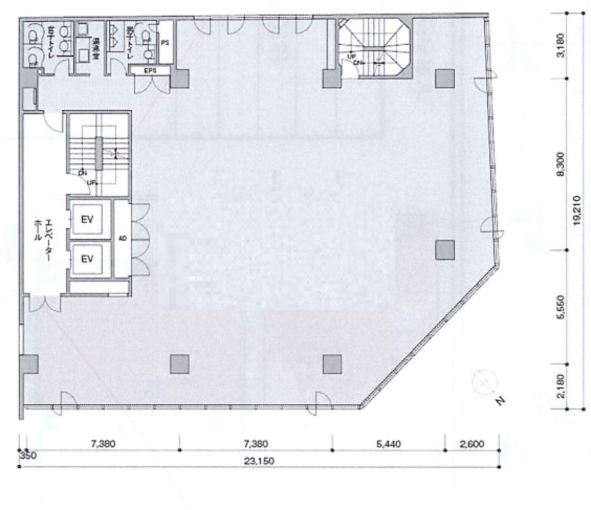
56.48 坪 (186.73m²)
※このサイトに記載がある賃貸条件は、敷金・保証金などの預かり金を除き、別途消費税がかかります。
虎ノ門セントラルビルの建物概要
設備詳細
| 空調 | 個別空調 |
|---|---|
| トイレ | - |
| 床仕様 | OA対応床(フリーアクセス) |
| エレベータ | 2 基 |
| 駐車場設備 | - |
| その他 | 機械警備 |
虎ノ門セントラルビルについて
東京都港区西新橋1丁目に位置する虎ノ門セントラルビルは、1977年に竣工した、見た目にも洗練された賃貸オフィスビルです。このエリアは、新橋や虎ノ門、霞が関といったビジネスの中心地に囲まれ、東京都心の商業活動が非常に活発な地域です。そのため、このビルはビジネスのチャンスを広げる絶好のロケーションにあります。 外観は黒やブラウンを基調としたシックなデザインで、年月を経ても古さを感じさせないデザインが特徴的です。また、2000年のリニューアルにより、エレベーターホール、トイレ、給湯室が現代的なニーズに合わせて更新されており、耐震工事も実施されています。これにより、安全性と快適性を兼ね備えたオフィス空間が提供されています。 オフィスフロアは、56〜106.82坪の範囲で分割利用が可能であり、様々な企業のニーズに対応できる柔軟性を持っています。このエリアの相場を考えると、虎ノ門セントラルビルは非常にコストパフォーマンスに優れており、中小企業やスタートアップにとって魅力的な選択肢となり得ます。 交通アクセスにおいても優れており、東京メトロ銀座線「虎ノ門駅」から徒歩1分、東京メトロ千代田線・日比谷線・丸の内線「霞ヶ関駅」からは徒歩4分の立地にあります。さらに、都営三田線「内幸町駅」へも徒歩4分でアクセスでき、5路線3駅の利用が可能です。このような優れた立地は、ビジネスにおいて大きなアドバンテージをもたらします。 1階部分には金融機関が入居しており、ビル内での取引も便利です。また、近隣には多くの飲食店や商業施設があり、ビジネスだけでなく、日常生活においても非常に便利な環境を提供しています。 虎ノ門セントラルビルは、その立地の良さ、設備の充実、そしてコストパフォーマンスの高さから、多様なビジネスニーズに応えることができる賃貸オフィスビルです。ここでのオフィスは、あなたのビジネスを一層成功へと導く素晴らしいステージになるでしょう。
虎ノ門セントラルビルのこだわり
自分で探すより問い合わせる方が早いことがあります
WEB非公開物件があるから
オーナー様のご希望により「WEBでは非公開」にしている物件があります。 それらはWEBでいくら検索しても見つかりません。 先ずは条件などお知らせ頂けましたら非公開物件含め ピッタリのオフィスをご提案させて頂きます。 無理なお勧めはしておりませんので、お気軽にお問い合わせください。
対面でのご相談も受け付けております
ご来店も歓迎です
オフィス移転は社内・社外ともに非公開に行われることが殆どです。そのためアットオフィスでは、基本的に訪問によるコンサルティングを行っておりますが、ご来店の相談も歓迎です。お一人おひとりに親身にご対応させて頂きたい為、要予約とさせて頂いております。ご来店の際は先ずは下記よりご予約下さい。
近くのエリアで探してみる
新橋/虎ノ門/神谷町エリアで虎ノ門セントラルビルに似た条件の物件
読込中...
虎ノ門セントラルビルと同じ最寄駅の物件
読込中...
| 取扱様態 | 仲介 |
|---|---|
| 取扱会社 | 株式会社 アットオフィス |