愛宕イーストビルの賃料条件
| 階数 | 坪数 | 賃料 + 共益費 | 敷金/礼金敷金 礼金 | 検討 |
|---|---|---|---|---|
| 3階 | 163.43坪 (540.27m²) | お問合せ下さい (坪:-) | 12ヶ月 無12ヶ月/無 | |
| 4階 | 153.72坪 (508.17m²) | お問合せ下さい (坪:-) | 12ヶ月 無12ヶ月/無 | |
| 6階 | 141.13坪 (466.55m²) | お問合せ下さい (坪:-) | 12ヶ月 無12ヶ月/無 |
※このサイトに記載がある賃貸条件は、敷金・保証金などの預かり金を除き、別途消費税がかかります。
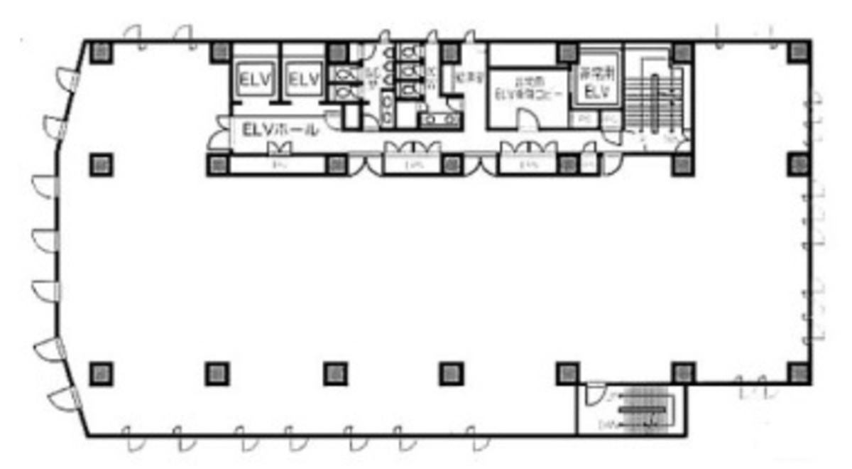
物件情報
設備詳細
| 空調 | 個別空調 |
|---|---|
| トイレ | 男女別トイレ室外 |
| 床仕様 | OA対応床(フリーアクセス) |
| エレベータ | 3 基 |
| 駐車場設備 | 空有 / 機械式駐車場 |
| その他 | CASBEE / 24時間利用可 / 大型ビル / 光ファイバー / 新耐震基準 / クリニック / フリーレント |
愛宕イーストビルの賃貸オフィス・事務所に関するお問い合わせ
愛宕イーストビルについて
愛宕イーストビル、東京都港区西新橋3-16-11に位置するこの賃貸オフィスビルは、ビジネスの中心地である東京メトロポリタンエリアの要所に立地しています。愛宕イーストビルは2000年に竣工し、新耐震基準を満たした安全な環境を提供する鉄骨造の地上14階建て(地下2階)のオフィスビルです。基準階約153坪の広々としたレイアウトが可能なオフィススペースは、企業のニーズに柔軟に対応できるよう設計されています。 このビルは東京メトロ日比谷線の神谷町駅・虎ノ門ヒルズ駅、都営三田線の御成門駅が徒歩6分圏内にあり、さらに東京メトロ銀座線の虎ノ門駅も徒歩9分圏内と、四つの駅と四つの路線が利用可能であり、東京都内はもちろん、都外へのアクセスも非常に便利です。このように、優れた交通アクセスはビジネスの機動性を高め、社員やクライアントとの移動時間を最小限に抑えることができます。 ビルのエントランスは高級感あふれる石質美に満ち、来訪者を迎えます。ビル内にはエレベーターが3基設置され、36台の駐車場、機械警備、光ファイバーが完備されており、24時間使用可能です。また、個別空調・OAフロアを備え、ウォシュレット完備の男女別トイレも設置されており、快適なオフィス環境を実現しています。 港区は、多くの国内外企業がオフィスを構えるビジネスの中心地であり、愛宕イーストビルの立地は、このエリアの相場観においても非常に魅力的です。周辺には銀行、郵便局、コンビニエンスストアが揃い、高層ビルやオフィスビルが立ち並ぶこの地域は、ビジネスを行う上で必要なあらゆるサービスや施設が揃っており、効率的なビジネス運営をサポートします。また、愛宕神社や港区立南桜公園など、自然を感じることができるスポットも近く、ビジネスとプライベートのバランスを取りやすい環境です。 愛宕イーストビルは、その立地、設備、安全性を兼ね備えた賃貸オフィスビルとして、企業にとって理想的なワークスペースを提供します。このビルを拠点に、ビジネスのさらなる発展を目指してください。
自分で探すより問い合わせる方が早いことがあります
WEB非公開物件があるから
オーナー様のご希望により「WEBでは非公開」にしている物件があります。 それらはWEBでいくら検索しても見つかりません。 先ずは条件などお知らせ頂けましたら非公開物件含め ピッタリのオフィスをご提案させて頂きます。 無理なお勧めはしておりませんので、お気軽にお問い合わせください。
対面でのご相談も受け付けております
ご来店も歓迎です
オフィス移転は社内・社外ともに非公開に行われることが殆どです。そのためアットオフィスでは、基本的に訪問によるコンサルティングを行っておりますが、ご来店の相談も歓迎です。お一人おひとりに親身にご対応させて頂きたい為、要予約とさせて頂いております。ご来店の際は先ずは下記よりご予約下さい。
募集終了のテナント区画
| 階数 | 坪数 | 賃料 + 共益費 | 敷金/礼金敷金 礼金 | 検討 |
|---|---|---|---|---|
| B1階 | 19.81坪 (65.49m²) | 募集終了 | - | - |
| B1階 | 13.46坪 (44.5m²) | 募集終了 | - | - |
| B1階 | 10.13坪 (33.48m²) | 募集終了 | - | - |
| 1階 | 126.58坪 (418.45m²) | 募集終了 | - | - |
| 2階 | 185.08坪 (611.83m²) | 募集終了 | - | - |
| 5階 | 145.21坪 (480.03m²) | 募集終了 | - | - |
| 7階 | 141.13坪 (466.55m²) | 募集終了 | - | - |
| 8階 | 141.13坪 (466.54m²) | 募集終了 | - | - |
| 9階 | 132.51坪 (438.05m²) | 募集終了 | - | - |
| 10階 | 132.51坪 (438.05m²) | 募集終了 | - | - |
| 11階 | 132.51坪 (438.05m²) | 募集終了 | - | - |
| 12階 | 132.51坪 (438.05m²) | 募集終了 | - | - |
| 13階 | 132.51坪 (438.05m²) | 募集終了 | - | - |
読込中...
近くのエリアで探してみる
新橋/虎ノ門/神谷町エリアで愛宕イーストビルに似た条件の物件
読込中...
| 取扱様態 | 仲介 |
|---|---|
| 取扱会社 | 株式会社 アットオフィス |