Jプロ千住ビル5階の賃貸情報
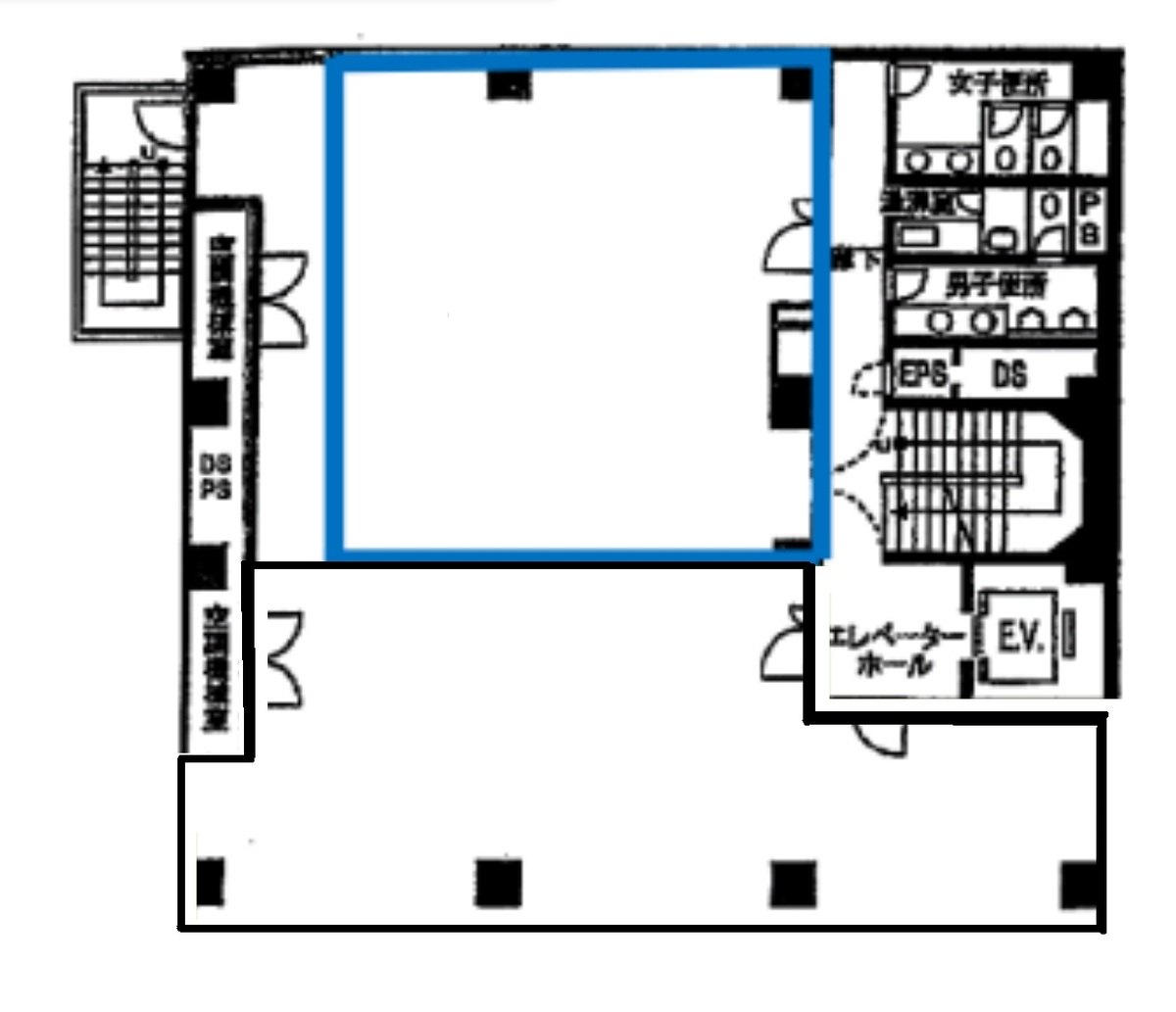
24.88 坪 (82.26m²)
※このサイトに記載がある賃貸条件は、敷金・保証金などの預かり金を除き、別途消費税がかかります。
Jプロ千住ビルの建物概要
設備詳細
| 空調 | 個別空調 |
|---|---|
| トイレ | 男女別トイレ室外 |
| 床仕様 | OA対応床(フリーアクセス) |
| エレベータ | 1 基 |
| 駐車場設備 | 空有 / 平置き駐車場 |
| その他 | 機械警備 / 24時間利用可 / 管理人常駐 / 光ファイバー |
Jプロ千住ビル5階の賃貸オフィス・事務所に関するお問い合わせ
Jプロ千住ビルについて
Jプロ千住ビルは、足立区千住中居町に所在し、常磐緩行線・千代田線「北千住駅」から徒歩でアクセスできる建物です。最寄駅からの所要時間は、路線によって7分または8分となっています。地上6階・地下2階構造の当ビルは、基準階面積が61.73㎡で、各階の利用用途に応じてレイアウトしやすい規模感です。エレベーターを1基設置しており、日常的なビル内移動にも対応しています。 建物には機械警備が導入されており、管理人が常駐しているため、利用者が安心して日々の業務を行える環境が整っています。また、24時間利用可能なため、時間帯を問わずさまざまな働き方や事業活動に対応が可能です。インターネット環境については光ファイバーが導入されており、業務上必要な通信設備も整っています。 敷地内には平置き駐車場も用意されているため、車両を利用する方にとっても利便性があります。各種設備やサービスを含め、多様な働き方や事業運営の拠点としてご検討いただけます。詳細はお問い合わせください。
自分で探すより問い合わせる方が早いことがあります
WEB非公開物件があるから
オーナー様のご希望により「WEBでは非公開」にしている物件があります。 それらはWEBでいくら検索しても見つかりません。 先ずは条件などお知らせ頂けましたら非公開物件含め ピッタリのオフィスをご提案させて頂きます。 無理なお勧めはしておりませんので、お気軽にお問い合わせください。
対面でのご相談も受け付けております
ご来店も歓迎です
オフィス移転は社内・社外ともに非公開に行われることが殆どです。そのためアットオフィスでは、基本的に訪問によるコンサルティングを行っておりますが、ご来店の相談も歓迎です。お一人おひとりに親身にご対応させて頂きたい為、要予約とさせて頂いております。ご来店の際は先ずは下記よりご予約下さい。
足立区エリアでJプロ千住ビルに似た条件の物件
読込中...
Jプロ千住ビルと同じ最寄駅の物件
読込中...
| 取扱様態 | 仲介 |
|---|---|
| 取扱会社 | 株式会社 アットオフィス |