※このサイトに記載がある賃貸条件は、敷金・保証金などの預かり金を除き、別途消費税がかかります。
物件情報
設備詳細
| 空調 | 個別空調 |
|---|---|
| トイレ | - |
| 床仕様 | OA対応床(フリーアクセス) |
| エレベータ | 2 基 |
| 駐車場設備 | 空有 |
| その他 | 新耐震基準 / 光ファイバー |
御殿山アネックス2号館の賃貸オフィス・事務所に関するお問い合わせ
御殿山アネックス2号館について
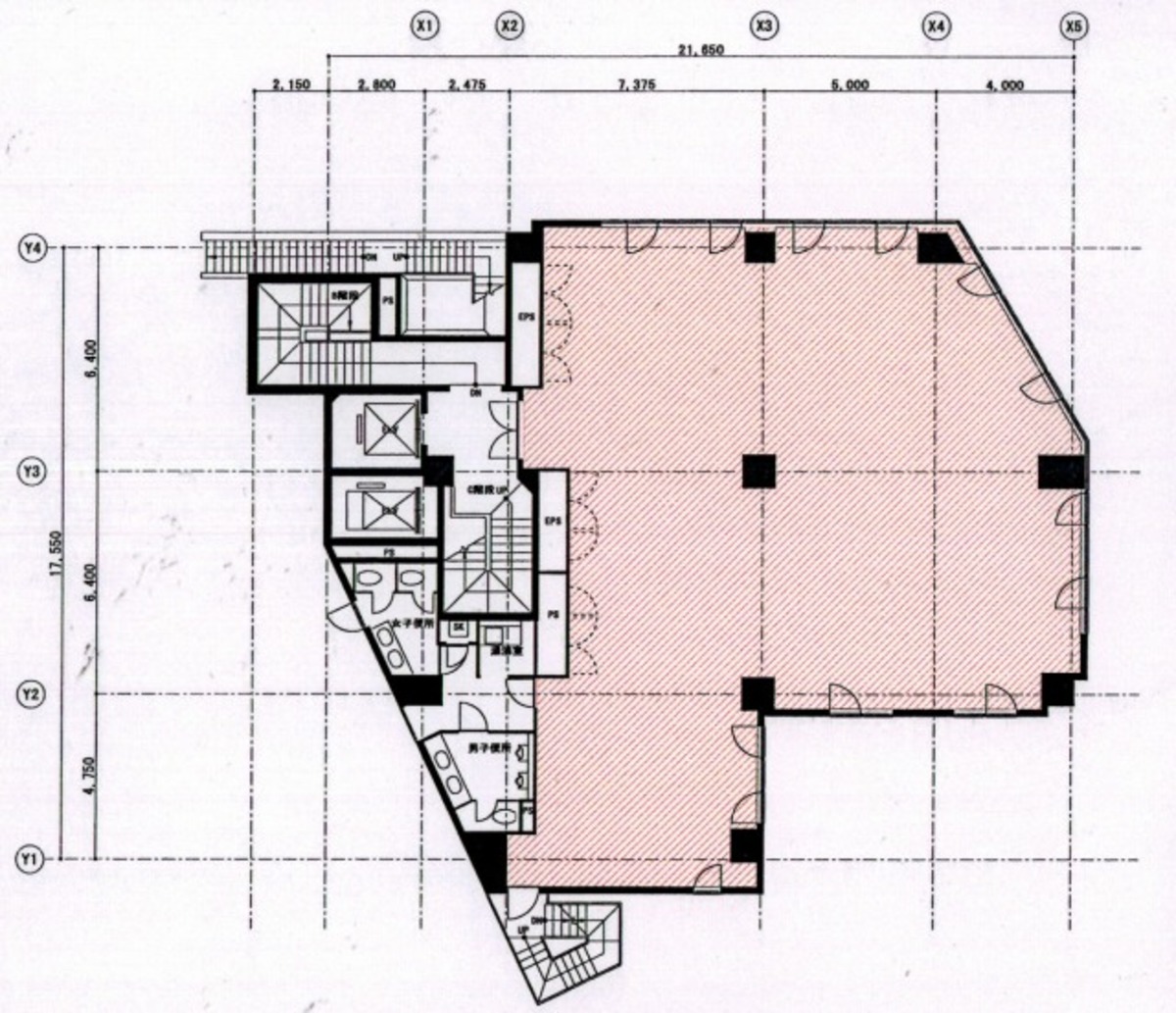
御殿山アネックス2号館ビルは、品川区北品川4丁目に位置する、緑豊かな環境と明るく広々とした室内が魅力の賃貸オフィスビルです。1999年に竣工され、新耐震基準にも適応しているため、安心してお使いいただけます。基準階面積は約73.60坪と、中規模のビジネスニーズにぴったりのサイズ感です。また、エレベーターが2機設置されており、スムーズな移動が可能です。 立地としては、品川駅高輪口から徒歩11分、京急北品川駅からは徒歩7分の位置にあり、3駅以上のアクセスが可能という好立地です。品川周辺は新幹線が停まるなど交通の便が非常に良く、空港へのアクセスも便利です。ビジネスの拠点として、またクライアントとのアクセスのしやすさを考えると、非常に魅力的な立地条件を満たしています。 御殿山アネックス2号館ビルは、賃貸事務所フロアが4階まであり、1階にはヘアサロンと会社が入居しており、地域との連携も感じられる構造です。室内は外からの日差しが豊富に入る設計となっており、明るく快適なオフィス環境を提供しています。個別空調、光回線対応、OAフロアなど、ビジネスの効率化と快適さを追求した設備が整っており、どのような業種の企業にも適応可能です。 周辺環境も充実しており、ランチタイムや仕事後のリフレッシュに適した飲食店や、便利なコンビニエンスストアが近くにあります。また、品川駅高輪口周辺や京急北品川の商店街では、仕事帰りの飲み会にも最適な場所が多く、ビジネスだけでなくプライベートの充実も叶えることができます。 御殿山アネックス2号館ビルは、これからのビジネスを支える、アクセスの良さ、快適なオフィス環境、そして豊富な周辺施設という三拍子揃った賃貸オフィスビルです。品川エリアでオフィスをお探しの企業様には、ぜひ一度訪れていただきたいおすすめの物件です。
御殿山アネックス2号館のこだわり
自分で探すより問い合わせる方が早いことがあります
WEB非公開物件があるから
オーナー様のご希望により「WEBでは非公開」にしている物件があります。 それらはWEBでいくら検索しても見つかりません。 先ずは条件などお知らせ頂けましたら非公開物件含め ピッタリのオフィスをご提案させて頂きます。 無理なお勧めはしておりませんので、お気軽にお問い合わせください。
対面でのご相談も受け付けております
ご来店も歓迎です
オフィス移転は社内・社外ともに非公開に行われることが殆どです。そのためアットオフィスでは、基本的に訪問によるコンサルティングを行っておりますが、ご来店の相談も歓迎です。お一人おひとりに親身にご対応させて頂きたい為、要予約とさせて頂いております。ご来店の際は先ずは下記よりご予約下さい。
募集終了のテナント区画
| 階数 | 坪数 | 賃料 + 共益費 | 敷金/礼金敷金 礼金 | 検討 |
|---|---|---|---|---|
| 1階 | 31.2坪 (103.24m²) | 募集終了 | - | - |
| 2階 | 73.6坪 (243.55m²) | 募集終了 | - | - |
| 3階 | 73.6坪 (243.3m²) | 募集終了 | - | - |
読込中...
品川/大崎/大井エリアで御殿山アネックス2号館に似た条件の物件
読込中...
| 取扱様態 | 仲介 |
|---|---|
| 取扱会社 | 株式会社 アットオフィス |