喜助西新橋ビル5階の賃貸情報
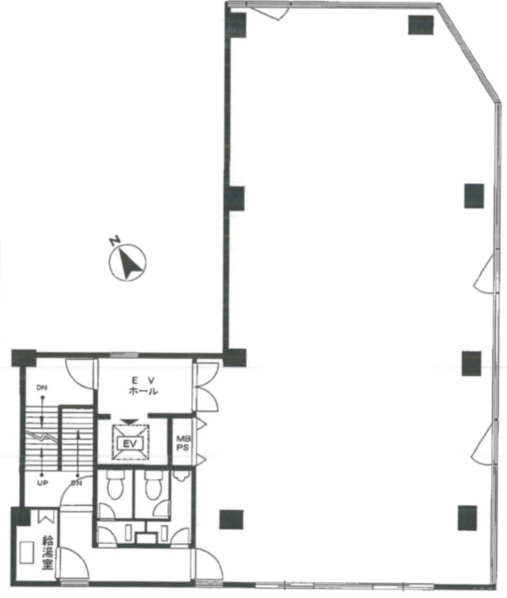
50.99 坪 (168.56m²)
※このサイトに記載がある賃貸条件は、敷金・保証金などの預かり金を除き、別途消費税がかかります。
喜助西新橋ビルの建物概要
設備詳細
| 空調 | 個別空調 |
|---|---|
| トイレ | - |
| 床仕様 | - |
| エレベータ | 1 基 |
| 駐車場設備 | - |
| その他 | 新耐震基準 / 東京賃料が坪11000円以下 |
喜助西新橋ビル5階の賃貸オフィス・事務所に関するお問い合わせ
喜助西新橋ビルについて
西新橋K-1ビルは、首都東京の心臓部、港区西新橋2丁目に位置する質の高いオフィス賃貸物件です。このビルは、ビジネスの中心地にあるため、企業がオフィススペースを探している際に最適な選択肢となり得ます。本稿では、西新橋K-1ビルの特徴、立地、設備などの重要な点を詳細に解説し、その独自の魅力やビジネスにおける利点を強調します。 まず、西新橋K-1ビルの最大の特徴は、その明るく開放的な室内です。角地に位置するため、窓面が多く、自然光が豊富に室内に入り込みます。これにより、オフィス内の作業環境が向上し、従業員の生産性やモチベーションの向上が期待できます。また、自然光の多用はエネルギーの節約にも繋がり、企業の運営コスト削減にも寄与します。 次に、立地についてですが、西新橋K-1ビルは港区というビジネスの中心地にあるため、多くの企業や政府機関が近くに位置しています。これにより、ビジネスの機会が拡大し、様々な業種のネットワーク構築に有利な環境が提供されます。また、交通の利便性も高く、都心へのアクセスが容易であることから、従業員やビジネスパートナーとの面会もスムーズに行えます。 設備面では、西新橋K-1ビルは1機のエレベーターを備えており、スムーズな移動が可能です。小規模から中規模の企業にとっては、このエレベーターが効率的なビル内移動を支える重要な要素となります。また、ビルは最新のセキュリティシステムを導入しており、入居する企業にとって安全な環境が保証されています。これにより、安心してビジネスを展開することが可能になります。 総じて、西新橋K-1ビルはその立地の利便性、明るく快適なオフィス環境、そして充実した設備によって、ビジネスの成功をサポートする理想的なオフィス賃貸物件です。新しいオフィスを探している企業にとって、このビルは優れた選択肢の一つと言えるでしょう。従業員が快適に働き、企業が成長を遂げるための環境が、ここにはあります。
自分で探すより問い合わせる方が早いことがあります
WEB非公開物件があるから
オーナー様のご希望により「WEBでは非公開」にしている物件があります。 それらはWEBでいくら検索しても見つかりません。 先ずは条件などお知らせ頂けましたら非公開物件含め ピッタリのオフィスをご提案させて頂きます。 無理なお勧めはしておりませんので、お気軽にお問い合わせください。
対面でのご相談も受け付けております
ご来店も歓迎です
オフィス移転は社内・社外ともに非公開に行われることが殆どです。そのためアットオフィスでは、基本的に訪問によるコンサルティングを行っておりますが、ご来店の相談も歓迎です。お一人おひとりに親身にご対応させて頂きたい為、要予約とさせて頂いております。ご来店の際は先ずは下記よりご予約下さい。
近くのエリアで探してみる
新橋/虎ノ門/神谷町エリアで喜助西新橋ビルに似た条件の物件
読込中...
喜助西新橋ビルと同じ最寄駅の物件
読込中...
| 取扱様態 | 仲介 |
|---|---|
| 取扱会社 | 株式会社 アットオフィス |