Tennozu Bay Towerの賃料条件
| 階数 | 坪数 | 賃料 + 共益費 | 敷金/礼金敷金 礼金 | 検討 |
|---|---|---|---|---|
| 6階 | 64.46坪 (213.09m²) | お問合せ下さい (坪:-) | 12ヶ月 無12ヶ月/無 | |
| 12階 | 284.14坪 (939.33m²) | お問合せ下さい (坪:-) | 12ヶ月 無12ヶ月/無 | |
| 12階 | 6.88坪 (22.74m²) | お問合せ下さい (坪:-) | 12ヶ月 無12ヶ月/無 |
※このサイトに記載がある賃貸条件は、敷金・保証金などの預かり金を除き、別途消費税がかかります。
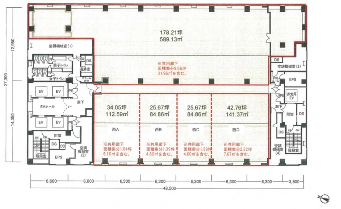
物件情報
設備詳細
| 空調 | セントラル空調 |
|---|---|
| トイレ | - |
| 床仕様 | OA対応床(フリーアクセス) |
| エレベータ | 9 基 |
| 駐車場設備 | 空有 / 機械式駐車場 / 平置き駐車場 |
| その他 | 24時間利用可 / 光ファイバー / 新耐震基準 |
Tennozu Bay Towerの賃貸オフィス・事務所に関するお問い合わせ
Tennozu Bay Towerについて
シーフォートスクエアセンタービルディングは、東京都品川区東品川に位置する、地上23階、地下1階建てのオフィスビルで、延床面積は約40,403坪に及びます。1992年に竣工したこのビルは、新耐震基準に準拠した施工がなされており、安全性に配慮した設計が特徴です。基準階面積は約307.2坪であり、高い天井(2,600mm)とフリーアクセスフロアを採用することで、広々とした空間と柔軟なレイアウトが可能となっています。ゾーン空調システムを使用しており、各テナントが快適な室内環境を保てるよう工夫されています。 立地については、天王洲アイル駅(東京モノレール・羽田空港線)から徒歩1分、天王洲アイル駅(りんかい線)からは徒歩3分と、非常に優れたアクセス性を誇ります。品川や羽田空港へのアクセスも良好で、主要ビジネスエリアへの移動も容易です。この立地は、ビジネスの拠点としての利便性の高さを示しており、企業にとって魅力的な要素となります。 ビル内の設備は、24時間体制の機械警備やカードによる入退室管理システム、エントランスの防犯カメラ設置など、セキュリティ面においても充実しています。また、ビル内には466台を収容できる駐車場があり、エレベーターは低層用と高層用の2バンクに分かれ、合計9基が設置されており、待ち時間の短縮に貢献しています。 ビルの1階と2階には商業エリアが設けられており、コンビニエンスストア、飲食店、郵便局、ドラッグストア、シミュレーションゴルフ場などが入居しています。これにより、テナント企業の従業員は日々の生活に必要なサービスを手軽に利用でき、働きやすい環境が整っています。 シーフォートスクエアセンタービルディングは、その優れた立地、高度なセキュリティ、快適なオフィス空間、便利な商業設備を兼ね備えており、テナント企業にとって理想的なビジネス環境を提供します。天王洲エリアの発展と共に、ここでのビジネスはますます活気を帯びることでしょう。
自分で探すより問い合わせる方が早いことがあります
WEB非公開物件があるから
オーナー様のご希望により「WEBでは非公開」にしている物件があります。 それらはWEBでいくら検索しても見つかりません。 先ずは条件などお知らせ頂けましたら非公開物件含め ピッタリのオフィスをご提案させて頂きます。 無理なお勧めはしておりませんので、お気軽にお問い合わせください。
対面でのご相談も受け付けております
ご来店も歓迎です
オフィス移転は社内・社外ともに非公開に行われることが殆どです。そのためアットオフィスでは、基本的に訪問によるコンサルティングを行っておりますが、ご来店の相談も歓迎です。お一人おひとりに親身にご対応させて頂きたい為、要予約とさせて頂いております。ご来店の際は先ずは下記よりご予約下さい。
募集終了のテナント区画
読込中...
品川/大崎/大井エリアでTennozu Bay Towerに似た条件の物件
読込中...
| 取扱様態 | 仲介 |
|---|---|
| 取扱会社 | 株式会社 アットオフィス |