A・M京橋ビルの賃料条件
| 階数 | 坪数 | 賃料 + 共益費 | 敷金/礼金敷金 礼金 | 検討 |
|---|---|---|---|---|
| 2階 | 13.23坪 (43.73m²) | 330,750円 (坪:25,000 円) | 5ヶ月 無5ヶ月/無 | |
| 3階 | 13.23坪 (43.73m²) | 330,750円 (坪:25,000 円) | 5ヶ月 無5ヶ月/無 | |
| 4階 | 13.23坪 (43.73m²) | 343,980円 (坪:26,000 円) | 5ヶ月 無5ヶ月/無 |
※このサイトに記載がある賃貸条件は、敷金・保証金などの預かり金を除き、別途消費税がかかります。
物件情報
設備詳細
| 空調 | 個別空調 |
|---|---|
| トイレ | - |
| 床仕様 | OA対応床(フリーアクセス) |
| エレベータ | 1 基 |
| 駐車場設備 | - |
| その他 | 光ファイバー / 新耐震基準 / オートロック / 機械警備 |
A・M京橋ビルの賃貸オフィス・事務所に関するお問い合わせ
A・M京橋ビルについて
A・M京橋ビルは、東京都中央区京橋2丁目に位置する、賃貸オフィスビルです。このビルは、2001年に竣工された鉄筋コンクリート造の建築物であり、耐震性に優れている点が特徴です。基準階面積は154.591坪となっており、大型のオフィスニーズにも対応可能です。ビル内には1基のエレベーターが設置されており、入居者の移動をスムーズにします。 立地に関しては、AM京橋ビルは京橋駅から徒歩1分、宝町駅からも徒歩1分という、非常にアクセスの良い場所にあります。この立地は、従業員だけでなく、ビジネスパートナーやクライアントの訪問にも非常に便利です。周辺には多数の飲食店、ショッピングモール、三井住友銀行などが位置しており、日常の利便性も高いです。 設備面では、光ファイバーに対応しているため、高速インターネット環境を確保できます。これは、現代のビジネスにおいて欠かせない通信環境を提供します。また、男女共用のトイレが設置されており、内装はスケルトン状態での提供となります。これにより、入居企業は自社のイメージに合わせたオフィスデザインを行うことが可能です。さらに、ビルはクリニックとしての利用も可能で、多様な業種のニーズに対応できる柔軟性を持っています。 最近、A・M京橋ビルはリニューアルが行われ、エントランスの雰囲気がおしゃれに生まれ変わりました。このリニューアルは、ビルのイメージ向上に寄与し、入居企業にとってはプラスの要素となります。また、裏通りに位置しているため、交通量が少なく静かな環境が特徴です。これは、集中して仕事をしたい企業にとって理想的な環境を提供します。 A・M京橋ビルは、優れた立地、柔軟な設備、リニューアルによる魅力的な雰囲気を備えた賃貸オフィスビルです。ビジネスの拠点として、またはクリニックなどの特定の用途にも適しています。立地の利便性とビルの設備が、多様なビジネスニーズに応えることでしょう。
A・M京橋ビルのこだわり
自分で探すより問い合わせる方が早いことがあります
WEB非公開物件があるから
オーナー様のご希望により「WEBでは非公開」にしている物件があります。 それらはWEBでいくら検索しても見つかりません。 先ずは条件などお知らせ頂けましたら非公開物件含め ピッタリのオフィスをご提案させて頂きます。 無理なお勧めはしておりませんので、お気軽にお問い合わせください。
対面でのご相談も受け付けております
ご来店も歓迎です
オフィス移転は社内・社外ともに非公開に行われることが殆どです。そのためアットオフィスでは、基本的に訪問によるコンサルティングを行っておりますが、ご来店の相談も歓迎です。お一人おひとりに親身にご対応させて頂きたい為、要予約とさせて頂いております。ご来店の際は先ずは下記よりご予約下さい。
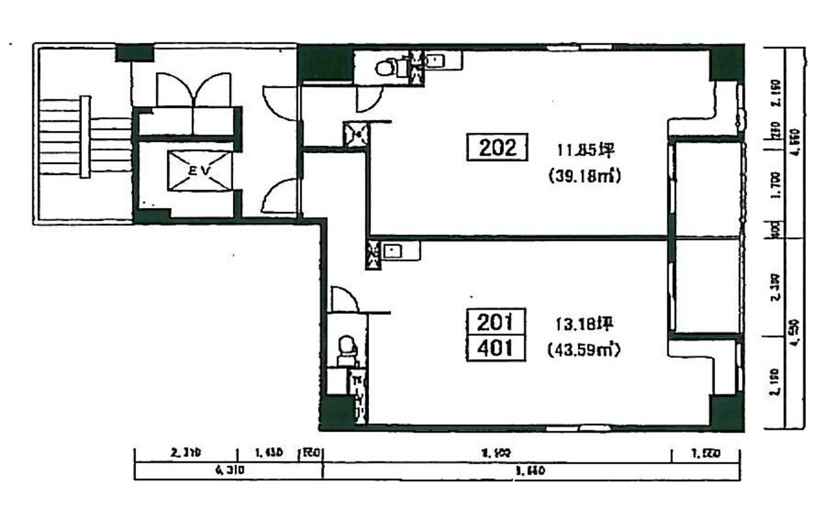
募集終了のテナント区画
| 階数 | 坪数 | 賃料 + 共益費 | 敷金/礼金敷金 礼金 | 検討 |
|---|---|---|---|---|
| 1階 | 12.29坪 (40.62m²) | 募集終了 | - | - |
| 2階 | 25坪 (82.64m²) | 募集終了 | - | - |
| 2階 | 13.18坪 (43.57m²) | 募集終了 | - | - |
| 2階 | 11.85坪 (39.17m²) | 募集終了 | - | - |
| 3階 | 13.18坪 (43.57m²) | 募集終了 | - | - |
| 3階 | 25坪 (82.64m²) | 募集終了 | - | - |
| 3階 | 11.85坪 (39.17m²) | 募集終了 | - | - |
| 4階 | 25坪 (82.64m²) | 募集終了 | - | - |
| 4階 | 13.18坪 (43.57m²) | 募集終了 | - | - |
| 4階 | 11.85坪 (39.18m²) | 募集終了 | - | - |
| 5階 | 25坪 (82.64m²) | 募集終了 | - | - |
| 5階 | 13.18坪 (43.57m²) | 募集終了 | - | - |
| 5階 | 13.18坪 (43.57m²) | 募集終了 | - | - |
| 5階 | 13.23坪 (43.73m²) | 募集終了 | - | - |
| 6階 | 25坪 (82.64m²) | 募集終了 | - | - |
| 6階 | 11.85坪 (39.17m²) | 募集終了 | - | - |
| 6階 | 13.18坪 (43.57m²) | 募集終了 | - | - |
| 6階 | 13.23坪 (43.73m²) | 募集終了 | - | - |
| 7階 | 13.23坪 (43.73m²) | 募集終了 | - | - |
| 7階 | 25坪 (82.64m²) | 募集終了 | - | - |
| 8階 | 13.18坪 (43.57m²) | 募集終了 | - | - |
| 8階 | 25坪 (82.64m²) | 募集終了 | - | - |
| 8階 | 13.23坪 (43.73m²) | 募集終了 | - | - |
| 9階 | 25坪 (82.64m²) | 募集終了 | - | - |
| 9階 | 13.18坪 (43.57m²) | 募集終了 | - | - |
| 9階 | 11.85坪 (39.17m²) | 募集終了 | - | - |
| 9階 | 13.23坪 (43.73m²) | 募集終了 | - | - |
読込中...
近くのエリアで探してみる
八重洲/日本橋/三越前エリアでA・M京橋ビルに似た条件の物件
読込中...
| 取扱様態 | 仲介 |
|---|---|
| 取扱会社 | 株式会社 アットオフィス |