新大塚プラザビル8階の賃貸情報
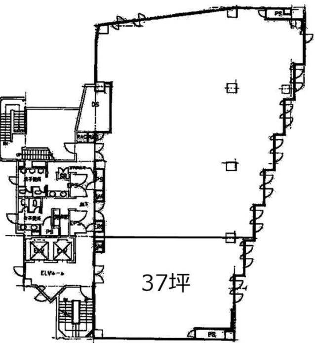
36.97 坪 (122.23m²)
※このサイトに記載がある賃貸条件は、敷金・保証金などの預かり金を除き、別途消費税がかかります。
新大塚プラザビルの建物概要
設備詳細
| 空調 | 個別空調 / セントラル空調 |
|---|---|
| トイレ | 男女別トイレ室外 |
| 床仕様 | - |
| エレベータ | 2 基 |
| 駐車場設備 | 空無 |
| その他 | 機械警備 / 大型ビル / 管理人常駐 / 新耐震基準 / 東京賃料が坪11000円以下 |
新大塚プラザビル8階の賃貸オフィス・事務所に関するお問い合わせ
新大塚プラザビルについて
新大塚プラザは、東京都文京区大塚5丁目に位置する賃貸オフィスビルです。このビルは春日通り沿いに立地しており、東京メトロ丸ノ内線の新大塚駅から徒歩わずか1分という非常に便利な場所にあります。また、JR山手線の大塚駅も徒歩10分の距離にあり、多方面へのアクセスが容易です。 1990年に竣工されたこのオフィスビルは、鉄骨鉄筋コンクリート造の地上8階建てで、地下1階を含む構造となっています。建物は新耐震基準に基づいて建設されており、耐震性に優れていることが特徴です。外観はミラーガラスを多用し、近隣のビルと比較しても高い視認性を誇ります。エントランスは御影石を使用した高級感あるデザインで、訪れる人々に良い印象を与えます。 オフィスフロアは基準階で約150坪の広さがあり、OAフロアが完備されているため、IT設備のインフラも整っています。天井高は2620mmと広々としており、開放的な作業空間が提供されます。各フロアには男女別トイレが設置されており、清潔で快適な環境が保たれています。また、個別空調システムにより、各テナントのニーズに合わせた温度設定が可能です。 ビルのセキュリティは機械警備システムにより24時間体制で管理されており、安全に業務を行うことができます。エレベーターは2基設置されており、スムーズな移動が可能です。また、駐車場はビル内に機械式で22台分を確保しており、来客や従業員の利便性を高めています。 周辺環境としては、飲食店やコンビニエンスストアが充実しており、日常の買い物や食事に便利です。文京区大塚周辺はビジネスエリアとしても住宅地としても発展しており、様々な業種の企業が集まるエリアです。 新大塚プラザは、優れた立地、充実した設備、そして安全な環境を提供することで、多くの企業にとって魅力的なオフィススペースとなっています。ビジネスの拠点として、また新たな可能性を追求する場として、最適な環境がここにあります。
自分で探すより問い合わせる方が早いことがあります
WEB非公開物件があるから
オーナー様のご希望により「WEBでは非公開」にしている物件があります。 それらはWEBでいくら検索しても見つかりません。 先ずは条件などお知らせ頂けましたら非公開物件含め ピッタリのオフィスをご提案させて頂きます。 無理なお勧めはしておりませんので、お気軽にお問い合わせください。
対面でのご相談も受け付けております
ご来店も歓迎です
オフィス移転は社内・社外ともに非公開に行われることが殆どです。そのためアットオフィスでは、基本的に訪問によるコンサルティングを行っておりますが、ご来店の相談も歓迎です。お一人おひとりに親身にご対応させて頂きたい為、要予約とさせて頂いております。ご来店の際は先ずは下記よりご予約下さい。
湯島/本郷/後楽園エリアで新大塚プラザビルに似た条件の物件
読込中...
新大塚プラザビルと同じ最寄駅の物件
読込中...
| 取扱様態 | 仲介 |
|---|---|
| 取扱会社 | 株式会社 アットオフィス |