※このサイトに記載がある賃貸条件は、敷金・保証金などの預かり金を除き、別途消費税がかかります。
物件情報
設備詳細
| 空調 | - |
|---|---|
| トイレ | - |
| 床仕様 | - |
| エレベータ | 2 基 |
| 駐車場設備 | 空有 |
| その他 | 機械警備 / 大型ビル / 光ファイバー / 新耐震基準 |
八王子第一東京海上日動の賃貸オフィス・事務所に関するお問い合わせ
八王子第一東京海上日動について
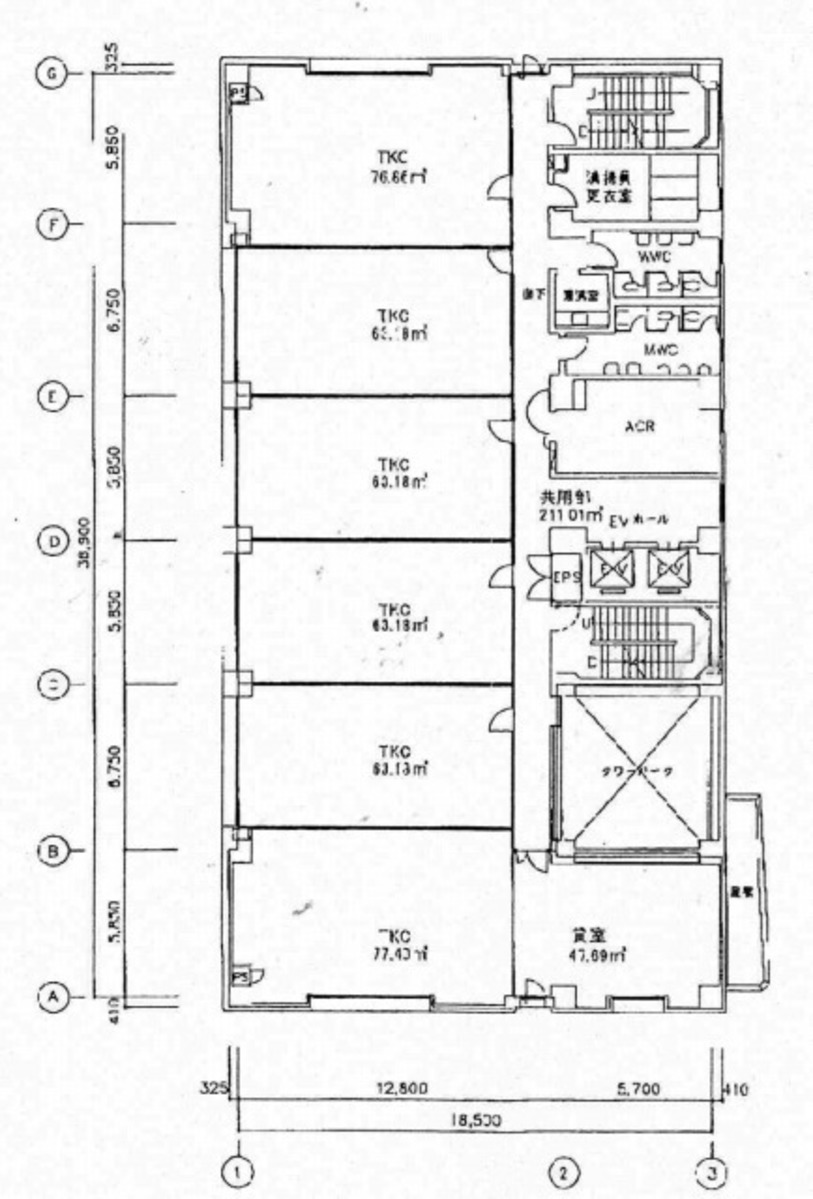
八王子第1東京海上日動ビルは、東京都八王子市横山町に位置し、八王子駅から徒歩わずか4分の好立地にあります。中央本線の八王子駅は、多くのビジネスパーソンや観光客で賑わうターミナル駅で、都心へのアクセスも良好です。このビルは、1984年に竣工した鉄骨鉄筋コンクリート(SRC)構造の建物で、地上8階建ての規模を誇ります。新耐震基準を満たしているため、安心してビジネスを展開できる環境が整っています。 八王子第1東京海上日動ビルは、ビジネスの拠点として最適な条件を備えています。基準階面積は212.05坪(約701.0m2)と広々としており、オフィスのレイアウトを自由に設計することが可能です。さらに、個別空調が完備されており、24時間使用可能なため、業種や働き方に応じた柔軟なオフィス運営ができます。エレベーターは2基設置されており、業務の効率化に寄与します。 駐車場は機械式と平面併用で最大36台収容可能。月額25,000円(税別)で利用できるため、車での通勤や来客にも便利です。また、桑並木通り沿いに位置しており、ビル周辺は商業施設や飲食店が充実しています。ランチやアフターファイブの時間を有効に活用できる環境が整っています。 八王子市は、東京都心から少し離れた場所にありながら、多摩地域の経済や文化の中心地として発展しています。八王子駅周辺は、商業施設、銀行、郵便局などの生活利便施設が揃っており、ビジネスを展開するには理想的な環境です。また、自然も豊かで、少し足を延ばせば高尾山などの観光スポットも楽しむことができます。 八王子第1東京海上日動ビルは、その立地の良さと充実した設備により、企業のオフィス開設や移転を考えている方々にとって非常に魅力的な選択肢です。ビジネスの拠点としての機能性はもちろん、周辺環境の良さも相まって、従業員にとっても働きやすい職場環境を提供します。ぜひこの機会に、八王子での新たなビジネス展開をご検討ください。
自分で探すより問い合わせる方が早いことがあります
WEB非公開物件があるから
オーナー様のご希望により「WEBでは非公開」にしている物件があります。 それらはWEBでいくら検索しても見つかりません。 先ずは条件などお知らせ頂けましたら非公開物件含め ピッタリのオフィスをご提案させて頂きます。 無理なお勧めはしておりませんので、お気軽にお問い合わせください。
対面でのご相談も受け付けております
ご来店も歓迎です
オフィス移転は社内・社外ともに非公開に行われることが殆どです。そのためアットオフィスでは、基本的に訪問によるコンサルティングを行っておりますが、ご来店の相談も歓迎です。お一人おひとりに親身にご対応させて頂きたい為、要予約とさせて頂いております。ご来店の際は先ずは下記よりご予約下さい。
募集終了のテナント区画
| 階数 | 坪数 | 賃料 + 共益費 | 敷金/礼金敷金 礼金 | 検討 |
|---|---|---|---|---|
| 1階 | 10.27坪 (33.95m²) | 募集終了 | - | - |
| 2階 | 124.69坪 (412.2m²) | 募集終了 | - | - |
| 2階 | 14.43坪 (47.7m²) | 募集終了 | - | - |
| 3階 | 102.11坪 (337.55m²) | 募集終了 | - | - |
| 3階 | 20.77坪 (68.66m²) | 募集終了 | - | - |
| 3階 | 25.26坪 (83.5m²) | 募集終了 | - | - |
| 4階 | 41.55坪 (137.34m²) | 募集終了 | - | - |
| 4階 | 39.7坪 (131.23m²) | 募集終了 | - | - |
| 4階 | 20.77坪 (68.66m²) | 募集終了 | - | - |
| 6階 | 20.77坪 (68.67m²) | 募集終了 | - | - |
| 6階 | 39.7坪 (131.24m²) | 募集終了 | - | - |
| 6階 | 20.77坪 (68.67m²) | 募集終了 | - | - |
| 6階 | 60.57坪 (200.23m²) | 募集終了 | - | - |
| 7階 | 41.55坪 (137.34m²) | 募集終了 | - | - |
| 8階 | 102.17坪 (337.76m²) | 募集終了 | - | - |
| 8階 | 147.12坪 (486.34m²) | 募集終了 | - | - |
| 8階 | 44.95坪 (148.58m²) | 募集終了 | - | - |
読込中...
八王子市エリアで八王子第一東京海上日動に似た条件の物件
読込中...
| 取扱様態 | 仲介 |
|---|---|
| 取扱会社 | 株式会社 アットオフィス |