※このサイトに記載がある賃貸条件は、敷金・保証金などの預かり金を除き、別途消費税がかかります。
物件情報
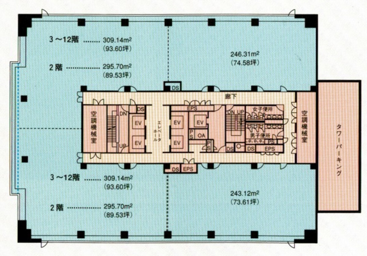
設備詳細
| 空調 | セントラル空調 |
|---|---|
| トイレ | - |
| 床仕様 | OA対応床(2way/3way) |
| エレベータ | 4 基 |
| 駐車場設備 | 空有 |
| その他 | 機械警備 / 24時間利用可 / 新耐震基準 / 1階の物件 |
八王子ファーストスクエアの賃貸オフィス・事務所に関するお問い合わせ
八王子ファーストスクエアについて
八王子ファーストスクエアは、明神町3丁目にあるオフィスビルです。京王八王子駅から徒歩1分の駅近物件です。八王子駅からは徒歩4分です。1996年に竣工しました。鉄骨造により耐震性があります。エレベーターは4基です。セントラル空調のため、静かな環境で作業できます。セキュリティ設備付きです。駐車場があります。24時間利用できます。周辺に飲食店やコンビニがあり、急用時も困りません。パーキングやカーシェアリングに近いため、車が利用しやすい環境です。広い通りに位置しており、見通しの良い場所です。駅前商業地のため、移動時間が短縮しやすいエリアです。
八王子ファーストスクエアのこだわり
自分で探すより問い合わせる方が早いことがあります
WEB非公開物件があるから
オーナー様のご希望により「WEBでは非公開」にしている物件があります。 それらはWEBでいくら検索しても見つかりません。 先ずは条件などお知らせ頂けましたら非公開物件含め ピッタリのオフィスをご提案させて頂きます。 無理なお勧めはしておりませんので、お気軽にお問い合わせください。
対面でのご相談も受け付けております
ご来店も歓迎です
オフィス移転は社内・社外ともに非公開に行われることが殆どです。そのためアットオフィスでは、基本的に訪問によるコンサルティングを行っておりますが、ご来店の相談も歓迎です。お一人おひとりに親身にご対応させて頂きたい為、要予約とさせて頂いております。ご来店の際は先ずは下記よりご予約下さい。
募集終了のテナント区画
読込中...
八王子市エリアで八王子ファーストスクエアに似た条件の物件
読込中...
| 取扱様態 | 仲介 |
|---|---|
| 取扱会社 | 株式会社 アットオフィス |