※このサイトに記載がある賃貸条件は、敷金・保証金などの預かり金を除き、別途消費税がかかります。
物件情報
設備詳細
| 空調 | 個別空調 |
|---|---|
| トイレ | - |
| 床仕様 | OA対応床(フリーアクセス) |
| エレベータ | 2 基 |
| 駐車場設備 | 空有 |
| その他 | 機械警備 / 24時間利用可 / 管理人常駐 / 光ファイバー / 新耐震基準 |
新横浜第一ビルの賃貸オフィス・事務所に関するお問い合わせ
新横浜第一ビルについて
グレー基調の外観でエントランスを入るとリニューアルされており、清潔感ある物件となっております。 駐車場もついており、セキュリティも充実。室内は柱などなく使いやすい間取りとなっております。 新横浜すぐの好立地です。 エントランス・共用部はリニューアルしており、豪華できらびやかな印象を与えます。室内も天高高く、OA・機械警備などの設備はもちろん、ビルには喫煙所や駐車場も設けてあり、希少価値抜群となっております。室内は柱もなく、かなり広く自由な空間を与える物件となっております。
新横浜第一ビルのこだわり
自分で探すより問い合わせる方が早いことがあります
WEB非公開物件があるから
オーナー様のご希望により「WEBでは非公開」にしている物件があります。 それらはWEBでいくら検索しても見つかりません。 先ずは条件などお知らせ頂けましたら非公開物件含め ピッタリのオフィスをご提案させて頂きます。 無理なお勧めはしておりませんので、お気軽にお問い合わせください。
対面でのご相談も受け付けております
ご来店も歓迎です
オフィス移転は社内・社外ともに非公開に行われることが殆どです。そのためアットオフィスでは、基本的に訪問によるコンサルティングを行っておりますが、ご来店の相談も歓迎です。お一人おひとりに親身にご対応させて頂きたい為、要予約とさせて頂いております。ご来店の際は先ずは下記よりご予約下さい。
募集終了のテナント区画
| 階数 | 坪数 | 賃料 + 共益費 | 敷金/礼金敷金 礼金 | 検討 |
|---|---|---|---|---|
| 1階 | 53坪 (176.3m²) | 募集終了 | - | - |
| 2階 | 81.97坪 (271m²) | 募集終了 | - | - |
| 2階 | 30坪 (99.17m²) | 募集終了 | - | - |
| 3階 | 105.56坪 (348.96m²) | 募集終了 | - | - |
| 3階 | 19.24坪 (63.6m²) | 募集終了 | - | - |
| 3階 | 38.48坪 (127.2m²) | 募集終了 | - | - |
| 4階 | 76.99坪 (254.51m²) | 募集終了 | - | - |
| 4階 | 28.57坪 (94.45m²) | 募集終了 | - | - |
| 4階 | 11.9坪 (39.34m²) | 募集終了 | - | - |
| 4階 | 65.08坪 (215.14m²) | 募集終了 | - | - |
| 5階 | 55.71坪 (184.17m²) | 募集終了 | - | - |
| 5階 | 76.99坪 (254.51m²) | 募集終了 | - | - |
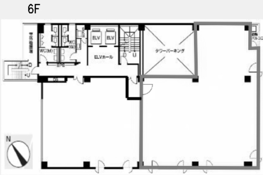
| 6階 | 40.47坪 (133.8m²) | 募集終了 | - | - |
| 6階 | 63.93坪 (211.35m²) | 募集終了 | - | - |
| 7階 | 105.56坪 (348.96m²) | 募集終了 | - | - |
| 8階 | 40.47坪 (133.8m²) | 募集終了 | - | - |
| 8階 | 64坪 (211.57m²) | 募集終了 | - | - |
| 9階 | 85坪 (279.93m²) | 募集終了 | - | - |
読込中...
港北区エリアで新横浜第一ビルに似た条件の物件
読込中...
| 取扱様態 | 仲介 |
|---|---|
| 取扱会社 | 株式会社 アットオフィス |