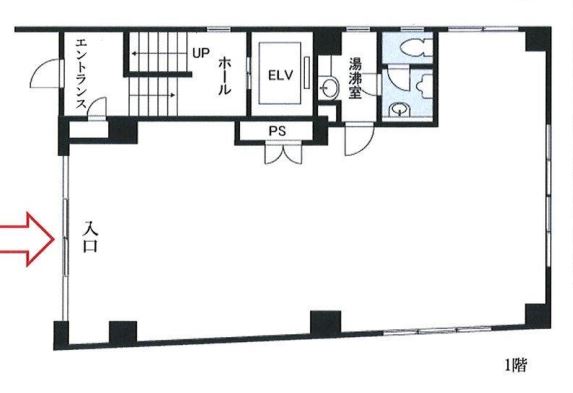
NMビル1階の賃貸情報
23.45 坪 (77.52m²)
※このサイトに記載がある賃貸条件は、敷金・保証金などの預かり金を除き、別途消費税がかかります。
NMビルの建物概要
設備詳細
| 空調 | - |
|---|---|
| トイレ | - |
| 床仕様 | - |
| エレベータ | 1 基 |
| 駐車場設備 | 空有 |
| その他 | 新耐震基準 / 24時間利用可 / 東京賃料が坪11000円以下 / 1階の物件 |
NMビル1階の賃貸オフィス・事務所に関するお問い合わせ
NMビルについて
NMビルは、賃貸オフィス市場において、その立地と設備の高さで際立つ物件です。千代田区東神田に位置し、1990年に竣工したこのビルは、新耐震基準に適合した構造で建てられており、安全性においても安心してご利用いただける設計となっています。 立地に関して言えば、このビルは複数の駅から容易にアクセス可能で、最寄りの岩本町駅からは徒歩5~6分、秋葉原駅からも徒歩5分という好立地にあります。3駅以上を利用できる立地は、ビジネスの柔軟性を高め、従業員やクライアントのアクセスにも優れています。 ビルの設備についても特筆すべき点が多くあります。24時間利用可能なため、様々なビジネススタイルに対応できる柔軟性を持ち合わせています。また、月極駐車場がビル内に設けられており、車での通勤やビジネス用途での利用に便利です。エレベーターは1基設置されており、スムーズな移動が可能です。 オフィススペースに関しては、基準階約25坪のコンパクトながらも使いやすい間取りが特徴で、柱がないため自由度の高いレイアウトが可能です。窓は2面に設けられ、自然光がたっぷりと入る明るいオフィス環境を提供します。個別空調システムにより、各テナントが快適な室温を保つことができ、水回りも室内に完備されています。 周辺環境も魅力の一つです。閑静な路地に位置しながら、徒歩圏内には飲食店や便利な店舗が点在し、ビジネスランチや日常の買い物にも便利です。さらに、すぐ近くに流れる神田川のほとりは、オフィスでの忙しい一日の後に散歩を楽しむのに最適な環境を提供しています。 NMビルは、その優れた耐震性、アクセスの良さ、高品質な設備、そして快適な周辺環境を兼ね備えた、ビジネスの成功を支える賃貸オフィス物件です。あらゆるビジネスニーズに応えるこのビルは、あなたのビジネスを次のレベルへと導くでしょう。
自分で探すより問い合わせる方が早いことがあります
WEB非公開物件があるから
オーナー様のご希望により「WEBでは非公開」にしている物件があります。 それらはWEBでいくら検索しても見つかりません。 先ずは条件などお知らせ頂けましたら非公開物件含め ピッタリのオフィスをご提案させて頂きます。 無理なお勧めはしておりませんので、お気軽にお問い合わせください。
対面でのご相談も受け付けております
ご来店も歓迎です
オフィス移転は社内・社外ともに非公開に行われることが殆どです。そのためアットオフィスでは、基本的に訪問によるコンサルティングを行っておりますが、ご来店の相談も歓迎です。お一人おひとりに親身にご対応させて頂きたい為、要予約とさせて頂いております。ご来店の際は先ずは下記よりご予約下さい。
神田/秋葉原エリアでNMビルに似た条件の物件
読込中...
NMビルと同じ最寄駅の物件
読込中...
| 取扱様態 | 仲介 |
|---|---|
| 取扱会社 | 株式会社 アットオフィス |