FRAME日本橋の賃料条件
| 階数 | 坪数 | 賃料 + 共益費 | 敷金/礼金敷金 礼金 | 検討 |
|---|---|---|---|---|
| 7階 | 83.78坪 (276.98m²) | お問合せ下さい (坪:-) | 相談 無相談/無 | |
| 7階 | 64.66坪 (213.74m²) | お問合せ下さい (坪:-) | 相談 無相談/無 |
※このサイトに記載がある賃貸条件は、敷金・保証金などの預かり金を除き、別途消費税がかかります。
物件情報
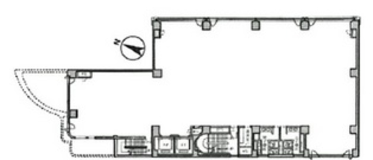
設備詳細
| 空調 | 個別空調 |
|---|---|
| トイレ | - |
| 床仕様 | OA対応床(フリーアクセス) |
| エレベータ | 2 基 |
| 駐車場設備 | 空有 |
| その他 | 機械警備 / 24時間利用可 / 大型ビル / 新耐震基準 / フリーレント / セットアップ |
FRAME日本橋の賃貸オフィス・事務所に関するお問い合わせ
FRAME日本橋について
東京都中央区日本橋久松町に位置するFRAME日本橋ビルは、1988年に竣工し、地上9階建ての鉄骨鉄筋コンクリート造りの賃貸オフィスビルです。このビルは、清洲橋通りに面しており、視認性の高さが特徴の一つです。ビルの基準階面積は約148坪と広々としており、無柱の貸室形状が利用者のレイアウトの自由度を高めます。天井高はおよそ2.6mあり、開放感あふれる空間を提供しています。 FRAME日本橋は、耐震性に優れた構造で1989年に新耐震基準に則って建設されました。これにより、地震発生時の安全性を確保しています。また、ビル内には2基のエレベーターが設置されており、機械警備によるセキュリティも整っています。エレベーターの不停止機能がセキュリティと連動することで、入館管理の効率化と安全性の向上が図られています。 ビル内のオフィスは、個別空調システムを備え、快適な労働環境を提供。また、OAフロアも完備しているため、情報通信設備の導入が容易です。フロアによっては会議室やテレカンブースも設置されており、ビジネスの多様なニーズに対応可能です。 立地においては、複数の駅が徒歩圏内にあり、浜町駅からは徒歩3分の位置にあります。東日本橋駅や馬喰横山駅、人形町駅も徒歩10分以内というアクセスの良さが魅力です。この好立地は、ビジネスの機動性を高め、顧客やビジネスパートナーとのアクセスの利便性を向上させます。 周辺環境も優れており、大通り沿いにはコンビニや飲食店が点在し、日常の買い物や食事に便利です。また、明治座や浜町公園が近くにあり、ビジネスの合間のリラクゼーションにも適しています。 2020年6月には外観・エントランス・ファサードのリニューアルが行われ、より洗練された印象へと生まれ変わりました。このリニューアルにより、企業イメージの向上にも寄与しています。 FRAME日本橋は、その立地の利便性、安全性、快適性を兼ね備えた賃貸オフィスビルです。ビジネスの拠点として、または企業の顔として、多くの企業にとって魅力ある選択肢となるでしょう。
自分で探すより問い合わせる方が早いことがあります
WEB非公開物件があるから
オーナー様のご希望により「WEBでは非公開」にしている物件があります。 それらはWEBでいくら検索しても見つかりません。 先ずは条件などお知らせ頂けましたら非公開物件含め ピッタリのオフィスをご提案させて頂きます。 無理なお勧めはしておりませんので、お気軽にお問い合わせください。
対面でのご相談も受け付けております
ご来店も歓迎です
オフィス移転は社内・社外ともに非公開に行われることが殆どです。そのためアットオフィスでは、基本的に訪問によるコンサルティングを行っておりますが、ご来店の相談も歓迎です。お一人おひとりに親身にご対応させて頂きたい為、要予約とさせて頂いております。ご来店の際は先ずは下記よりご予約下さい。
募集終了のテナント区画
| 階数 | 坪数 | 賃料 + 共益費 | 敷金/礼金敷金 礼金 | 検討 |
|---|---|---|---|---|
| 2階 | 148.44坪 (490.72m²) | 募集終了 | - | - |
| 3階 | 148.44坪 (490.72m²) | 募集終了 | - | - |
| 4階 | 148.44坪 (490.71m²) | 募集終了 | - | - |
| 5階 | 148.44坪 (490.71m²) | 募集終了 | - | - |
| 6階 | 148.44坪 (490.71m²) | 募集終了 | - | - |
| 6階 | 31.45坪 (103.96m²) | 募集終了 | - | - |
| 6階 | 26.91坪 (88.95m²) | 募集終了 | - | - |
| 6階 | 51.46坪 (170.11m²) | 募集終了 | - | - |
| 6階 | 39.34坪 (130.04m²) | 募集終了 | - | - |
| 7階 | 148.44坪 (490.71m²) | 募集終了 | - | - |
| 8階 | 33.54坪 (110.87m²) | 募集終了 | - | - |
| 8階 | 50.24坪 (166.08m²) | 募集終了 | - | - |
| 8階 | 64.66坪 (213.75m²) | 募集終了 | - | - |
| 9階 | 106.96坪 (353.58m²) | 募集終了 | - | - |
読込中...
近くのエリアで探してみる
人形町/馬喰町/浜町エリアでFRAME日本橋に似た条件の物件
読込中...
| 取扱様態 | 仲介 |
|---|---|
| 取扱会社 | 株式会社 アットオフィス |