Biz Feel 東日本橋3階の賃貸情報
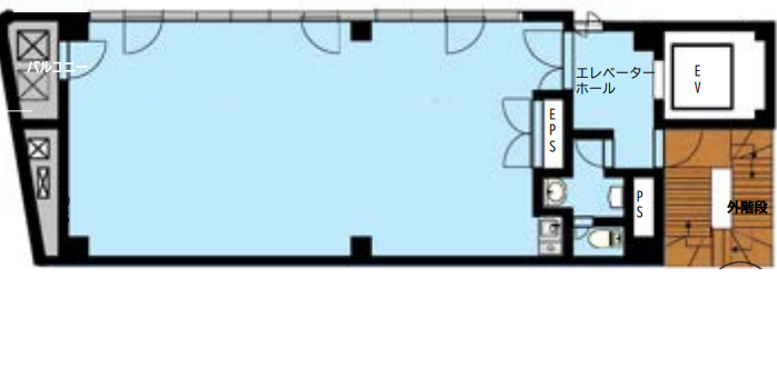
23.48 坪 (77.62m²)
お問合せ下さい (坪:-)
※このサイトに記載がある賃貸条件は、敷金・保証金などの預かり金を除き、別途消費税がかかります。
Biz Feel 東日本橋の建物概要
設備詳細
| 空調 | 個別空調 |
|---|---|
| トイレ | 男女別トイレ室内 |
| 床仕様 | OA対応床(フリーアクセス) |
| エレベータ | 1 基 |
| 駐車場設備 | - |
| その他 | 機械警備 / 新耐震基準 / 天井高3m以上 / セットアップ |
Biz Feel 東日本橋3階の賃貸オフィス・事務所に関するお問い合わせ
Biz Feel 東日本橋について
Biz Feel 東日本橋ビルは、中央区日本橋久松町に位置する、現代的で洗練されたオフィスビルです。この9階建てのハイグレードな建物は、その外観からも分かるように、グレーを基調としており、多くの窓面を持つことで豊富な自然光を室内に取り込む設計となっています。これにより、オフィス内は明るく開放的な作業空間を提供し、働く人々の生産性とクリエイティビティを高める環境を実現しています。 ビルの立地に関して、アーネストビルは複数の交通網に恵まれた非常に便利な位置にあります。「馬喰横山駅」、「馬喰町駅」、「東日本橋駅」から徒歩わずか4分という、アクセスの良さが特徴です。この立地は、ビジネスの拠点としての利便性を大いに高めており、日本の経済の中心地である東京の中心部へのアクセスも容易です。また、清洲橋通りに面しているため、ビルの存在感も抜群で、来訪者にとっても分かりやすい場所にあります。 ビルの内装と設備についても、質の高いオフィス環境を提供しています。貸室内は正方形の間取りでレイアウトがしやすく、柔軟なオフィスデザインを可能にします。また、エレベーターは1機設置されており、ビルのエントランスは24時間利用可能です。これにより、時差通勤や夜間作業が必要な業務にも対応しており、多様な働き方を支援します。 Biz Feel 東日本橋ビルは、その外観の美しさ、利便性の高い立地、柔軟なオフィスレイアウト、そして24時間アクセス可能な環境といった特徴を備えており、ビジネスシーンにおいて高いパフォーマンスを発揮する企業に最適な場所です。このビルは、日本橋エリアでのビジネス拡大を目指す企業にとって、優れた選択肢となることでしょう。
Biz Feel 東日本橋のこだわり
自分で探すより問い合わせる方が早いことがあります
WEB非公開物件があるから
オーナー様のご希望により「WEBでは非公開」にしている物件があります。 それらはWEBでいくら検索しても見つかりません。 先ずは条件などお知らせ頂けましたら非公開物件含め ピッタリのオフィスをご提案させて頂きます。 無理なお勧めはしておりませんので、お気軽にお問い合わせください。
対面でのご相談も受け付けております
ご来店も歓迎です
オフィス移転は社内・社外ともに非公開に行われることが殆どです。そのためアットオフィスでは、基本的に訪問によるコンサルティングを行っておりますが、ご来店の相談も歓迎です。お一人おひとりに親身にご対応させて頂きたい為、要予約とさせて頂いております。ご来店の際は先ずは下記よりご予約下さい。
近くのエリアで探してみる
人形町/馬喰町/浜町エリアでBiz Feel 東日本橋に似た条件の物件
読込中...
Biz Feel 東日本橋と同じ最寄駅の物件
読込中...
| 取扱様態 | 仲介 |
|---|---|
| 取扱会社 | 株式会社 アットオフィス |