神楽坂外堀通りビル3階の賃貸情報
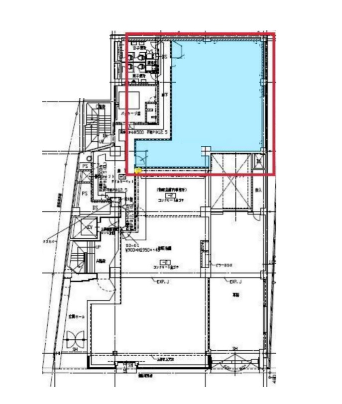
42.31 坪 (139.87m²)
※このサイトに記載がある賃貸条件は、敷金・保証金などの預かり金を除き、別途消費税がかかります。
神楽坂外堀通りビルの建物概要
設備詳細
| 空調 | 個別空調 |
|---|---|
| トイレ | 男女別トイレ |
| 床仕様 | OA対応床(フリーアクセス) |
| エレベータ | 1 基 / エレベーター有 |
| 駐車場設備 | 空有 / 敷地内駐車場 |
| その他 | 大型ビル / 光ファイバー / 24時間利用可 / オートロック / 新耐震基準 |
神楽坂外堀通りビル3階の賃貸オフィス・事務所に関するお問い合わせ
神楽坂外堀通りビルについて
神楽坂外堀通りビルは、東京都新宿区神楽坂1丁目1に位置する視認性の高い大型オフィスビルです。1983年に竣工し、2023年9月にリニューアルされたこのビルは、最新の設備と快適なオフィス環境を提供します。地上10階、地下1階の鉄骨鉄筋コンクリート(SRC)構造で、新耐震基準を満たしているため、安全性にも優れています。 このビルの最大の魅力は、何と言ってもその立地です。外堀通りに面しており、周囲には川が流れ、街路樹が立ち並ぶ穏やかで開放的な雰囲気のエリアにあります。最寄り駅の飯田橋駅からは徒歩わずか7分でアクセス可能です。さらに、JR総武線、有楽町線、南北線、東西線、都営大江戸線など複数の路線が利用できるため、都内各地への移動も非常に便利です。また、牛込神楽坂駅や市ヶ谷駅も徒歩圏内にあり、ビジネスの拠点として非常に利便性の高い場所に位置しています。 ビル内には、24時間利用可能なオフィススペースがあり、機械警備やオートロックなどのセキュリティ設備も充実しています。個別空調やOAフロアなど、快適なビジネス環境を整えるための設備も完備されており、特に柱のないレイアウトしやすい室内空間は、自由なオフィスデザインを可能にします。基準階坪数は約50坪で、さまざまな業種やビジネススタイルに対応可能です。 また、エレベーターが1基設置されており、土曜日も開放されているため、週末を利用した業務やイベント開催にも対応可能です。駐車場設備も整っており、車での通勤や来客にも対応しやすい環境です。 神楽坂外堀通りビルは、立地の良さだけでなく、周辺の豊かな自然環境と便利なアクセスを兼ね備えた、ビジネスに最適なオフィススペースです。オフィスの開設や移転を考えている方にとって、理想的な選択肢となることでしょう。
自分で探すより問い合わせる方が早いことがあります
WEB非公開物件があるから
オーナー様のご希望により「WEBでは非公開」にしている物件があります。 それらはWEBでいくら検索しても見つかりません。 先ずは条件などお知らせ頂けましたら非公開物件含め ピッタリのオフィスをご提案させて頂きます。 無理なお勧めはしておりませんので、お気軽にお問い合わせください。
対面でのご相談も受け付けております
ご来店も歓迎です
オフィス移転は社内・社外ともに非公開に行われることが殆どです。そのためアットオフィスでは、基本的に訪問によるコンサルティングを行っておりますが、ご来店の相談も歓迎です。お一人おひとりに親身にご対応させて頂きたい為、要予約とさせて頂いております。ご来店の際は先ずは下記よりご予約下さい。
近くのエリアで探してみる
市ヶ谷/神楽坂/飯田橋エリアで神楽坂外堀通りビルに似た条件の物件
読込中...
神楽坂外堀通りビルと同じ最寄駅の物件
読込中...
| 取扱様態 | 仲介 |
|---|---|
| 取扱会社 | 株式会社 アットオフィス |