※このサイトに記載がある賃貸条件は、敷金・保証金などの預かり金を除き、別途消費税がかかります。
設備詳細
| 空調 | - |
|---|---|
| トイレ | - |
| 床仕様 | - |
| エレベータ | 1 基 |
| 駐車場設備 | - |
| その他 | 新耐震基準 |
京王聖蹟桜ヶ丘東口ビルの賃貸オフィス・事務所に関するお問い合わせ
京王聖蹟桜ヶ丘東口ビルについて
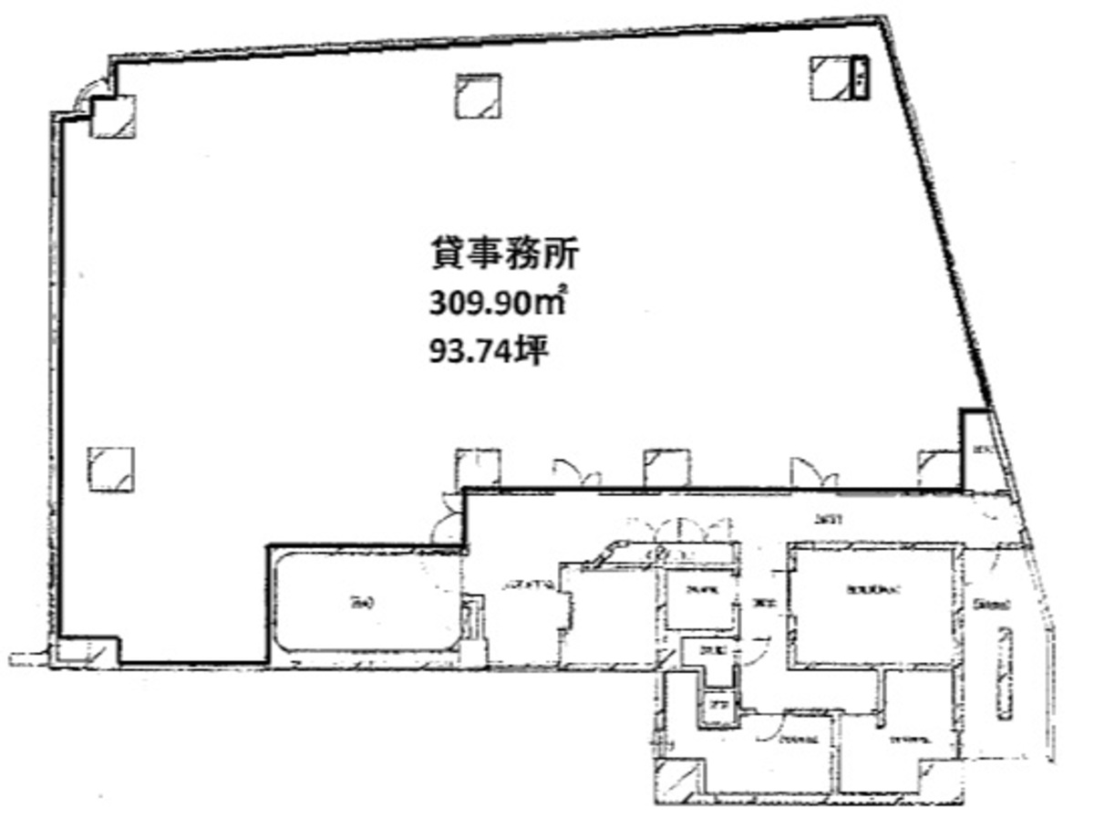
京王聖蹟桜ヶ丘東口は、多摩市関戸2丁目に位置する地上8階建ての事業用建物です。最寄り駅は京王電鉄京王線「聖蹟桜ヶ丘駅」となっており、駅から徒歩1分の距離にあります。また、「中河原駅」からも徒歩16分でアクセスが可能です。駅前エリアのため、周辺には商業施設や各種店舗が集積しています。 基準階面積は94㎡で、ワンフロアを利用した事務所やサービス店舗としての利用が想定されます。清掃や維持管理のしやすさが考慮された構造で、エレベーター1基が設置されており、移動もスムーズです。建物は新耐震基準に準拠しており、安全面にも配慮されています。 周囲の環境や駅からの動線を活かした様々な事業展開が可能な点も特徴です。業種や用途に応じて、柔軟なレイアウトが検討できる建物です。詳細はお問い合わせください。
京王聖蹟桜ヶ丘東口ビルのこだわり
自分で探すより問い合わせる方が早いことがあります
WEB非公開物件があるから
オーナー様のご希望により「WEBでは非公開」にしている物件があります。 それらはWEBでいくら検索しても見つかりません。 先ずは条件などお知らせ頂けましたら非公開物件含め ピッタリのオフィスをご提案させて頂きます。 無理なお勧めはしておりませんので、お気軽にお問い合わせください。
対面でのご相談も受け付けております
ご来店も歓迎です
オフィス移転は社内・社外ともに非公開に行われることが殆どです。そのためアットオフィスでは、基本的に訪問によるコンサルティングを行っておりますが、ご来店の相談も歓迎です。お一人おひとりに親身にご対応させて頂きたい為、要予約とさせて頂いております。ご来店の際は先ずは下記よりご予約下さい。
読込中...
多摩市エリアで京王聖蹟桜ヶ丘東口ビルに似た条件の物件
読込中...
| 取扱様態 | 仲介 |
|---|---|
| 取扱会社 | 株式会社 アットオフィス |