※このサイトに記載がある賃貸条件は、敷金・保証金などの預かり金を除き、別途消費税がかかります。
物件情報
設備詳細
| 空調 | - |
|---|---|
| トイレ | - |
| 床仕様 | OA対応床(フリーアクセス) |
| エレベータ | 2 基 |
| 駐車場設備 | 空有 |
| その他 | 大型ビル / 新耐震基準 |
ヤマタネ箱崎ビルの賃貸オフィス・事務所に関するお問い合わせ
ヤマタネ箱崎ビルについて
ヤマタネ箱崎ビルは、ビジネスの中心地である東京の心臓部、日本橋箱崎町(中央区)に誇りを持って立地しております。この地域は、都市の活力と歴史が融合する独特の雰囲気を持ち、多くの企業が集まるビジネスハブとして知られています。1992年に新耐震基準に準拠して建設された当ビルは、地震発生時にも入居企業様と従業員の安全を守るための最新の技術と設計に基づいております。 ヤマタネ箱崎ビルは、その大型の構造により、多種多様な企業ニーズに柔軟に対応できる広々としたオフィススペースを提供しています。ビル内に2機のエレベーターがあり、スムーズな移動を保証し、ビジネスの効率化に貢献します。また、ビル内駐車場が完備されており、来客や社員の方々が利用するにあたって大きな利便性を提供しています。駐車場の空き状況につきましては、お気軽にお問い合わせください。 立地につきましては、ヤマタネ箱崎ビルは交通の便が非常に良好であり、複数の鉄道路線が利用可能です。これにより、都内各地へのアクセスが容易であり、ビジネスの機会を広げる上で大きな強みとなります。また、周辺には様々な飲食店や商業施設があり、ビジネスの合間にリフレッシュやクライアントとの会食を楽しむことができます。 さらに、ヤマタネ箱崎ビルは、緑豊かな環境に囲まれ、働く人々にとって心地よい職場環境を提供しています。これは、生産性の向上や社員の満足度向上に貢献する重要な要素となります。 総合的に、ヤマタネ箱崎ビルは、優れた耐震性、広々としたオフィススペース、ビル内駐車場の利便性、抜群の立地条件、そして快適な職場環境を提供していることで、ビジネスの成功をサポートする理想的なオフィスビルです。これらの特性を生かし、あなたのビジネスを次のレベルへと押し上げることができるでしょう。ヤマタネ箱崎ビルで新たなビジネスの舞台を築きましょう。
自分で探すより問い合わせる方が早いことがあります
WEB非公開物件があるから
オーナー様のご希望により「WEBでは非公開」にしている物件があります。 それらはWEBでいくら検索しても見つかりません。 先ずは条件などお知らせ頂けましたら非公開物件含め ピッタリのオフィスをご提案させて頂きます。 無理なお勧めはしておりませんので、お気軽にお問い合わせください。
対面でのご相談も受け付けております
ご来店も歓迎です
オフィス移転は社内・社外ともに非公開に行われることが殆どです。そのためアットオフィスでは、基本的に訪問によるコンサルティングを行っておりますが、ご来店の相談も歓迎です。お一人おひとりに親身にご対応させて頂きたい為、要予約とさせて頂いております。ご来店の際は先ずは下記よりご予約下さい。
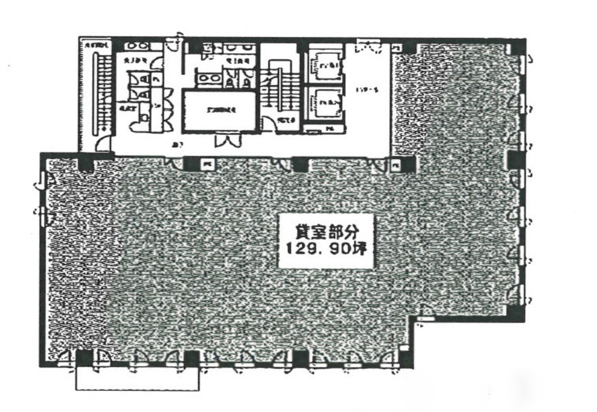
募集終了のテナント区画
| 階数 | 坪数 | 賃料 + 共益費 | 敷金/礼金敷金 礼金 | 検討 |
|---|---|---|---|---|
| 5階 | 129.89坪 (429.42m²) | 募集終了 | - | - |
読込中...
近くのエリアで探してみる
人形町/馬喰町/浜町エリアでヤマタネ箱崎ビルに似た条件の物件
読込中...
| 取扱様態 | 仲介 |
|---|---|
| 取扱会社 | 株式会社 アットオフィス |