※このサイトに記載がある賃貸条件は、敷金・保証金などの預かり金を除き、別途消費税がかかります。
物件情報
設備詳細
| 空調 | 個別空調 |
|---|---|
| トイレ | - |
| 床仕様 | OA対応床(フリーアクセス) |
| エレベータ | 2 基 |
| 駐車場設備 | - |
| その他 | 機械警備 / 24時間利用可 / 新耐震基準 |
神田センタービルディングの賃貸オフィス・事務所に関するお問い合わせ
神田センタービルディングについて
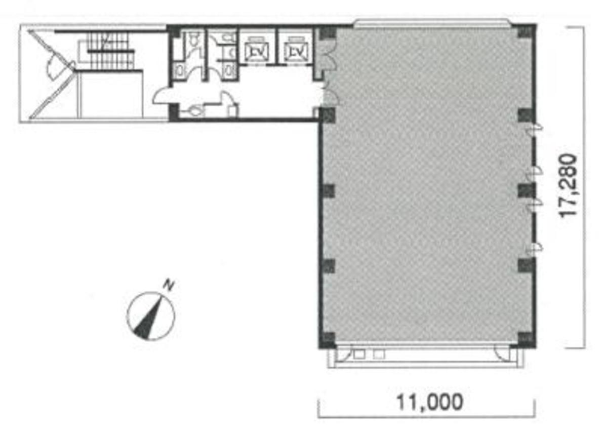
神田センタービルディングは、千代田区鍛冶町2-3-2に位置する、1989年に竣工した、新耐震基準に適合したモダンなオフィスビルです。このビルは、ビジネスの中心地である神田エリアの活気あるオフィス街に立地しており、ビルの設備とスペックの高さは、テナント企業にとって最適な環境を提供します。 まず、アクセスの利便性に関しては、JR山手線、中央線、京浜東北線の神田駅から徒歩わずか3分という立地にあります。さらに、東京メトロ銀座線神田駅からは徒歩4分、複数の駅と路線が利用可能で、都心へのアクセスが非常に便利です。この地の交通の利便性は、ビジネスチャンスを最大限に引き出すための重要な要素です。 ビル自体のスペックに目を向けると、基準階約57坪の広々としたオフィススペースが特徴で、天井高は2550mmとゆとりがあります。個別空調システムにより、各テナントは自社のニーズに合わせて快適な環境を作り出すことができます。また、OAフロア仕様となっており、IT機器の設置やレイアウト変更も容易に行えるため、柔軟なオフィス環境の構築が可能です。 セキュリティ面では、機械警備システムを導入しており、24時間体制で安全が確保されています。これにより、テナント企業は安心してビジネスを行うことができます。さらに、ビル内には駐車場が設けられており、車でのアクセスも考慮されています。 ビルの立地するエリアは、飲食店やコンビニ、銀行や郵便局などが充実しており、ビジネスに必要なサポート環境が整っています。このような利便性の高さは、従業員の日々の生活をサポートし、ビジネスの効率化にも寄与します。 総じて、神田センタービルディングは、優れたアクセス性、高スペックなオフィス環境、充実した周辺環境を兼ね備えた、ビジネスの成功をサポートする理想的なオフィスビルです。新しいビジネスの拠点として、または企業の成長を加速させるステージとして、最適な選択肢となるでしょう。
神田センタービルディングのこだわり
自分で探すより問い合わせる方が早いことがあります
WEB非公開物件があるから
オーナー様のご希望により「WEBでは非公開」にしている物件があります。 それらはWEBでいくら検索しても見つかりません。 先ずは条件などお知らせ頂けましたら非公開物件含め ピッタリのオフィスをご提案させて頂きます。 無理なお勧めはしておりませんので、お気軽にお問い合わせください。
対面でのご相談も受け付けております
ご来店も歓迎です
オフィス移転は社内・社外ともに非公開に行われることが殆どです。そのためアットオフィスでは、基本的に訪問によるコンサルティングを行っておりますが、ご来店の相談も歓迎です。お一人おひとりに親身にご対応させて頂きたい為、要予約とさせて頂いております。ご来店の際は先ずは下記よりご予約下さい。
募集終了のテナント区画
| 階数 | 坪数 | 賃料 + 共益費 | 敷金/礼金敷金 礼金 | 検討 |
|---|---|---|---|---|
| B1階 | 23.44坪 (77.48m²) | 募集終了 | - | - |
| B1階 | 5.42坪 (17.92m²) | 募集終了 | - | - |
| 1階 | 51.94坪 (171.7m²) | 募集終了 | - | - |
| 2階 | 66.21坪 (218.89m²) | 募集終了 | - | - |
| 3階 | 57.49坪 (190.04m²) | 募集終了 | - | - |
| 4階 | 66.18坪 (218.77m²) | 募集終了 | - | - |
| 5階 | 66.12坪 (218.57m²) | 募集終了 | - | - |
| 6階 | 66.18坪 (218.78m²) | 募集終了 | - | - |
| 8階 | 66.18坪 (218.78m²) | 募集終了 | - | - |
| 9階 | 57.5坪 (190.08m²) | 募集終了 | - | - |
読込中...
神田/秋葉原エリアで神田センタービルディングに似た条件の物件
読込中...
| 取扱様態 | 仲介 |
|---|---|
| 取扱会社 | 株式会社 アットオフィス |