※このサイトに記載がある賃貸条件は、敷金・保証金などの預かり金を除き、別途消費税がかかります。
物件情報
設備詳細
| 空調 | 個別空調 |
|---|---|
| トイレ | 男女共用トイレ・室内 |
| 床仕様 | - |
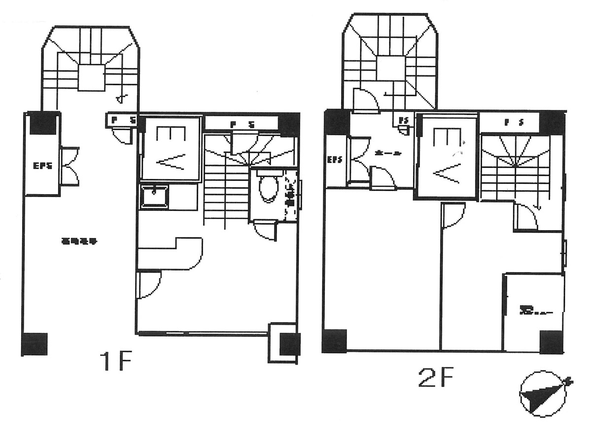
| エレベータ | 1 基 |
| 駐車場設備 | - |
| その他 | 新耐震基準 / 店舗可(飲食不可) / 1階の物件 |
大久保ビルの賃貸オフィス・事務所に関するお問い合わせ
大久保ビルについて
タカシマビルは、ビジネスの中心地である千代田区鍛冶町2丁目に位置する、アクセス抜群のオフィスビルです。このビルは、最新の設備と快適なオフィス環境を求める企業に最適な選択肢を提供します。 立地の面では、タカシマビルは東京の中心部に位置しており、周辺には多数の商業施設、飲食店、銀行などがあります。これにより、従業員の生活環境が向上し、ビジネスの機会も広がります。また、複数の鉄道路線が利用可能であり、都内はもちろん、郊外へのアクセスも容易です。これにより、クライアントや従業員の通勤にも便利な立地条件を備えています。 ビルの設備面では、タカシマビルは最新の技術を導入しており、企業が求める様々なニーズに応えることができます。エレベーターは1機ですが、最新鋭のものを導入しており、快適でスムーズな移動を保証します。さらに、ビルは高度なセキュリティシステムを備えており、入居企業とその従業員の安全を守ります。このように、タカシマビルは安全性と機能性を兼ね備えたオフィス環境を提供しています。 また、タカシマビルは環境にも配慮しており、省エネルギー設備を導入することで、企業の運営コストを削減するとともに、地球環境への貢献も実現しています。これにより、環境意識が高い企業にとっても魅力的な選択肢となります。 総じて、タカシマビルはその優れた立地、先進的な設備、環境への配慮という特徴を活かし、ビジネスの成功をサポートする理想的なオフィススペースを提供します。これらの特性が組み合わさることで、タカシマビルは企業が成長し続けるための最高の環境を提供し、ビジネスの可能性を最大限に広げることができます。
大久保ビルのこだわり
自分で探すより問い合わせる方が早いことがあります
WEB非公開物件があるから
オーナー様のご希望により「WEBでは非公開」にしている物件があります。 それらはWEBでいくら検索しても見つかりません。 先ずは条件などお知らせ頂けましたら非公開物件含め ピッタリのオフィスをご提案させて頂きます。 無理なお勧めはしておりませんので、お気軽にお問い合わせください。
対面でのご相談も受け付けております
ご来店も歓迎です
オフィス移転は社内・社外ともに非公開に行われることが殆どです。そのためアットオフィスでは、基本的に訪問によるコンサルティングを行っておりますが、ご来店の相談も歓迎です。お一人おひとりに親身にご対応させて頂きたい為、要予約とさせて頂いております。ご来店の際は先ずは下記よりご予約下さい。
募集終了のテナント区画
| 階数 | 坪数 | 賃料 + 共益費 | 敷金/礼金敷金 礼金 | 検討 |
|---|---|---|---|---|
| 1階 | 17.14坪 (50.06m²) | 募集終了 | - | - |
| 3階 | 13.22坪 (43.7m²) | 募集終了 | - | - |
| 4階 | 13.22坪 (43.7m²) | 募集終了 | - | - |
| 7階 | 9.22坪 (30.48m²) | 募集終了 | - | - |
読込中...
神田/秋葉原エリアで大久保ビルに似た条件の物件
読込中...
| 取扱様態 | 仲介 |
|---|---|
| 取扱会社 | 株式会社 アットオフィス |