日本橋浜町Kビル11階の賃貸情報
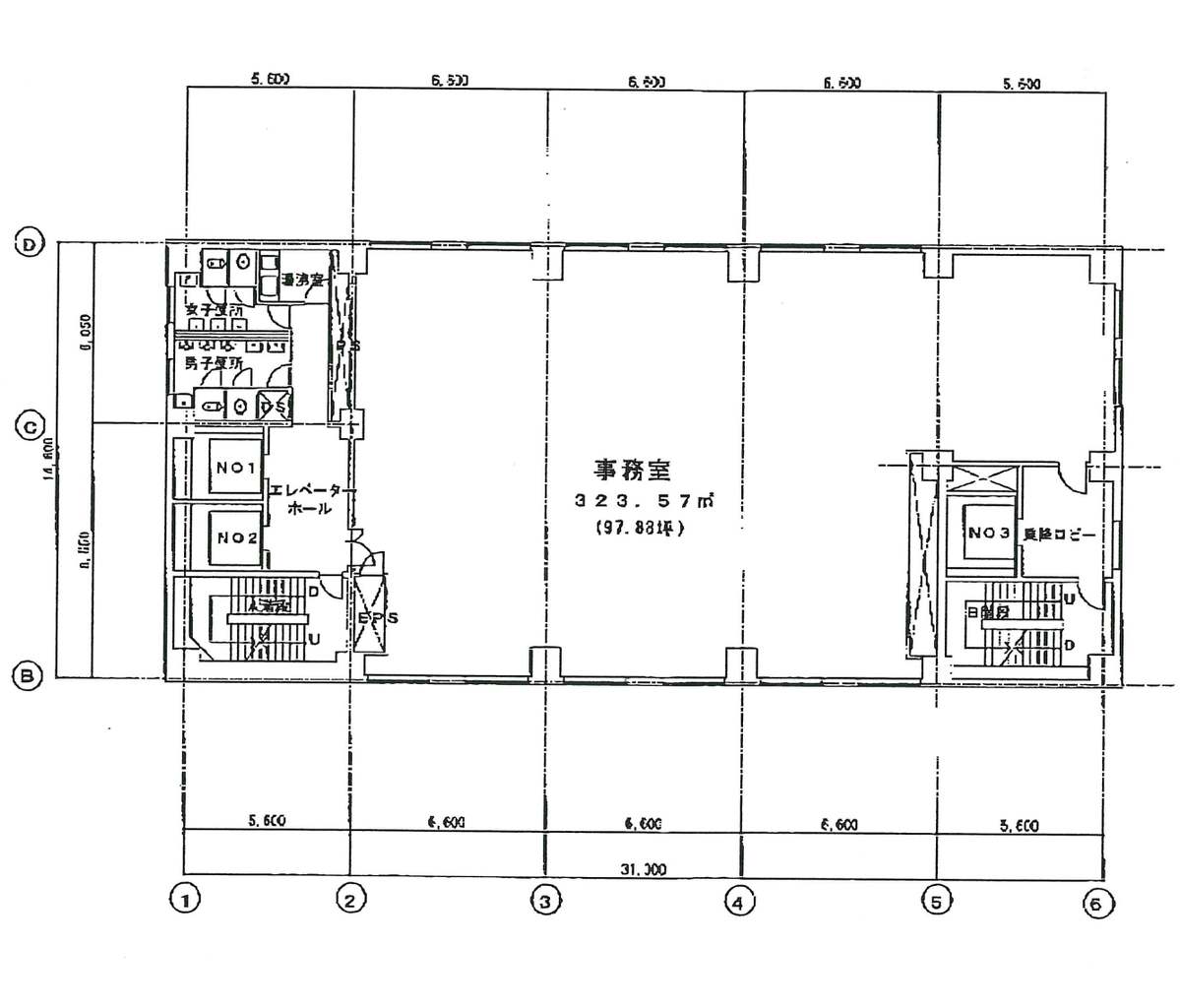
97.88 坪 (323.57m²)
※このサイトに記載がある賃貸条件は、敷金・保証金などの預かり金を除き、別途消費税がかかります。
日本橋浜町Kビルの建物概要
設備詳細
| 空調 | セントラル空調 |
|---|---|
| トイレ | - |
| 床仕様 | OA対応床(フリーアクセス) |
| エレベータ | 2 基 |
| 駐車場設備 | 空有 / 機械式駐車場 |
| その他 | 24時間利用可 / 大型ビル / 光ファイバー / 新耐震基準 |
日本橋浜町Kビル11階の賃貸オフィス・事務所に関するお問い合わせ
日本橋浜町Kビルについて
日本橋浜町Kビルのご紹介 東京都中央区、歴史と近代が融合する日本橋浜町2丁目に位置する「日本橋浜町Kビル」は、ビジネスの拠点として理想的なオフィス賃貸物件でございます。1986年に竣工した本物件は、新耐震基準に則った施工がなされており、安心してご利用いただける構造となっております。ビルの立地は、浜町エリアを代表する賃貸オフィスビルとして、その名を馳せております。 本ビルは、リバーサイドに面した開放的な眺望を誇り、働く人々にとっては清々しい気持ちで業務に取り組める環境を提供しています。また、ビルの重厚感あふれる広々としたエントランスは、訪れるすべての人に威厳と信頼感を与えます。大手企業様にもおすすめの本物件は、ビジネスイメージを高める上で非常に効果的です。 設備面では、ビル内に駐車場を完備しており、利用者の利便性を高めております。空き状況については、お問い合わせいただければ、迅速にご案内いたします。さらに、エレベーターは2機設置されており、スムーズな移動を支援します。 アクセスにおいても、最寄駅である浜町駅と東日本橋駅からの利便性は抜群で、都心へのアクセスも容易です。これにより、ビジネスの幅が広がり、クライアントとのアポイントメントもスムーズに行えます。 「日本橋浜町Kビル」は、新耐震基準に準拠した安全性、リバーサイドの開放感あふれる環境、高いビジネスイメージを持ったエントランス、利便性の高い駐車場とエレベーター、そして都心への優れたアクセスと、ビジネスにおける様々なニーズを満たす賃貸オフィスビルです。ご関心のある方は、ぜひお気軽にお問い合わせください。ビジネスの成功のための最適な環境を、ここ日本橋浜町Kビルで見つけていただけることでしょう。
自分で探すより問い合わせる方が早いことがあります
WEB非公開物件があるから
オーナー様のご希望により「WEBでは非公開」にしている物件があります。 それらはWEBでいくら検索しても見つかりません。 先ずは条件などお知らせ頂けましたら非公開物件含め ピッタリのオフィスをご提案させて頂きます。 無理なお勧めはしておりませんので、お気軽にお問い合わせください。
対面でのご相談も受け付けております
ご来店も歓迎です
オフィス移転は社内・社外ともに非公開に行われることが殆どです。そのためアットオフィスでは、基本的に訪問によるコンサルティングを行っておりますが、ご来店の相談も歓迎です。お一人おひとりに親身にご対応させて頂きたい為、要予約とさせて頂いております。ご来店の際は先ずは下記よりご予約下さい。
近くのエリアで探してみる
人形町/馬喰町/浜町エリアで日本橋浜町Kビルに似た条件の物件
読込中...
日本橋浜町Kビルと同じ最寄駅の物件
読込中...
| 取扱様態 | 仲介 |
|---|---|
| 取扱会社 | 株式会社 アットオフィス |