※このサイトに記載がある賃貸条件は、敷金・保証金などの預かり金を除き、別途消費税がかかります。
物件情報
設備詳細
| 空調 | - |
|---|---|
| トイレ | - |
| 床仕様 | - |
| エレベータ | 1 基 |
| 駐車場設備 | - |
| その他 | 機械警備 / 光ファイバー / 新耐震基準 |
井桁ビルの賃貸オフィス・事務所に関するお問い合わせ
井桁ビルについて
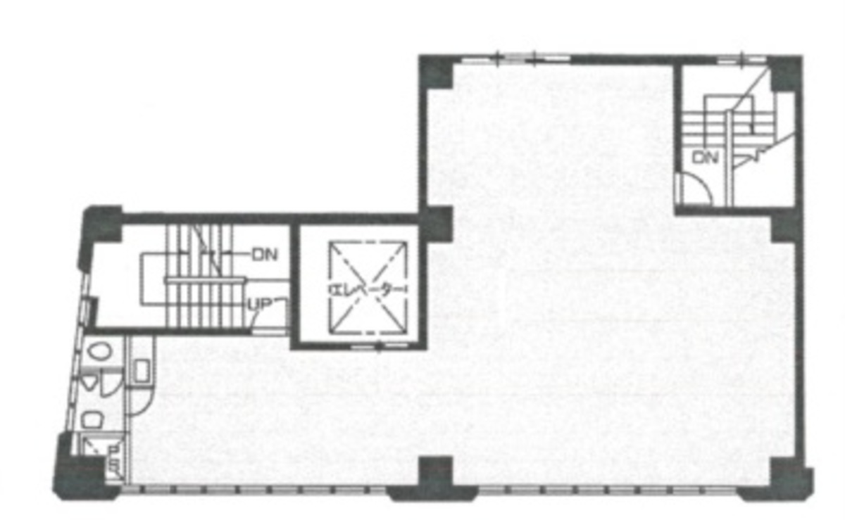
井桁ビルは、千代田区岩本町2丁目に位置する、ビジネスの中心地に相応しい、高スペックのオフィスビルです。1986年に竣工したこの耐震オフィスビルは、地上7階、地下1階建てで、基準階坪数は約35坪となっており、L字型の間取りが特徴です。室内にはトイレや給湯スペースが設置されており、個別空調や光回線にも対応しています。これにより、働く人々の快適性と効率性が格段に向上します。 ビルのセキュリティは万全で、機械警備やエレベーターの不停止機能が導入されており、貸室は24時間使用可能です。これにより、様々なビジネスシーンにおける柔軟な対応が可能となり、働く人々の安心安全を保障します。エレベーターは16人乗りの大型サイズが1基設置されており、スムーズな移動を実現します。 立地においても、井桁ビルは非常に優れています。小伝馬町駅と岩本町駅から徒歩5分というアクセスの良さに加え、神田金物通り沿いに位置することで、周辺には飲食店やコンビニ、銀行ATMなどの生活利便施設が充実しています。また、ビルの前面にある銀杏並木は紅葉のシーズンには美しい景観を楽しむことができ、ビジネス環境に華やかさを添えます。 さらに、1階にはカフェが入居しており、ビジネスの合間にリフレッシュ可能な空間が提供されています。このような利便性と快適性を兼ね備えた井桁ビルは、企業にとって最適なオフィス環境を提供します。 井桁ビルの魅力は、その高いスペックと優れた立地、そして働く人々の生活を豊かにする設備と環境にあります。ビジネスの成功に直結するこのような条件を備えた井桁ビルは、企業が成長し続けるための理想的な場所であると言えるでしょう。
井桁ビルのこだわり
自分で探すより問い合わせる方が早いことがあります
WEB非公開物件があるから
オーナー様のご希望により「WEBでは非公開」にしている物件があります。 それらはWEBでいくら検索しても見つかりません。 先ずは条件などお知らせ頂けましたら非公開物件含め ピッタリのオフィスをご提案させて頂きます。 無理なお勧めはしておりませんので、お気軽にお問い合わせください。
対面でのご相談も受け付けております
ご来店も歓迎です
オフィス移転は社内・社外ともに非公開に行われることが殆どです。そのためアットオフィスでは、基本的に訪問によるコンサルティングを行っておりますが、ご来店の相談も歓迎です。お一人おひとりに親身にご対応させて頂きたい為、要予約とさせて頂いております。ご来店の際は先ずは下記よりご予約下さい。
募集終了のテナント区画
| 階数 | 坪数 | 賃料 + 共益費 | 敷金/礼金敷金 礼金 | 検討 |
|---|---|---|---|---|
| B1階 | 30.4坪 (100.49m²) | 募集終了 | - | - |
| 1階 | 29.93坪 (98.94m²) | 募集終了 | - | - |
| 2階 | 31.05坪 (102.64m²) | 募集終了 | - | - |
| 3階 | 32.76坪 (108.29m²) | 募集終了 | - | - |
| 5階 | 35.9坪 (118.67m²) | 募集終了 | - | - |
| 6階 | 35.9坪 (118.67m²) | 募集終了 | - | - |
| 7階 | 34.37坪 (118.67m²) | 募集終了 | - | - |
読込中...
神田/秋葉原エリアで井桁ビルに似た条件の物件
読込中...
| 取扱様態 | 仲介 |
|---|---|
| 取扱会社 | 株式会社 アットオフィス |