※このサイトに記載がある賃貸条件は、敷金・保証金などの預かり金を除き、別途消費税がかかります。
物件情報
設備詳細
| 空調 | 個別空調 |
|---|---|
| トイレ | 男女共用トイレ・室内 |
| 床仕様 | OA対応床(フリーアクセス) |
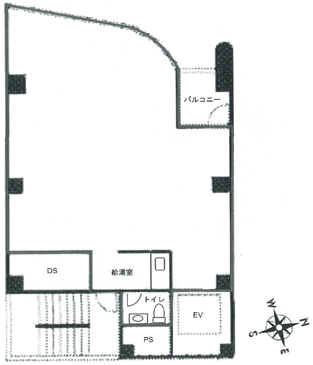
| エレベータ | 1 基 |
| 駐車場設備 | - |
| その他 | 機械警備 / 光ファイバー / 新耐震基準 |
ワイ・エヌ銀座ビルの賃貸オフィス・事務所に関するお問い合わせ
ワイ・エヌ銀座ビルについて
【ワイエヌ銀座ビルのご紹介】 今日は銀座8丁目、昭和通りに面した、アクセス抜群のオフィスビル「ワイエヌ銀座ビル」をご紹介します。このビルは、銀座エリアでのビジネス拠点をお探しの皆様にとって、最適な選択肢の一つとなること間違いなしです。 まず、立地についてですが、3つの駅と3路線が利用可能という、圧倒的なアクセスの良さを誇ります。この立地条件は、ビジネスでの移動の利便性を大きく高めるものであり、お客様やビジネスパートナーとのミーティングもスムーズに行えるでしょう。 建物の外観は、総ミラー仕立てとなっており、銀座らしい洗練された美しい姿を見せています。また、1面採光で大通り沿いということもあって、室内は常に明るく、作業効率も上がることでしょう。ビル内には1機のエレベーターが設置されており、スムーズな移動をサポートします。 さらに、このオフィスビルは、クリニックとしての利用も可能です。綺麗な室内は様々なビジネスシーンに対応可能で、新たなビジネスの拠点として、多くの可能性を秘めています。 【ワイエヌ銀座ビルの魅力ポイント】 - アクセスの良さ: 3つの駅と3つの路線が利用可能 - 立地: 昭和通りに面し、銀座8丁目というビジネスと文化の中心地 - 外観: 洗練された総ミラーの外観 - 室内: 明るく、清潔感があり、クリニックとしても利用可能 - 設備: スムーズな移動を支えるエレベーター1機設置 この「ワイエヌ銀座ビル」は、銀座エリアでの新たなビジネスの舞台として、また文化的な発信地としてもその機能を十分に果たしてくれることでしょう。銀座でのビジネス展開をお考えのこの機会に是非、ワイエヌ銀座ビルをご内覧ください。詳細につきましては、お気軽にオフィスナビまでお問い合わせください。あなたのビジネスの成功を、この素晴らしい立地と設備がサポートします。
ワイ・エヌ銀座ビルのこだわり
自分で探すより問い合わせる方が早いことがあります
WEB非公開物件があるから
オーナー様のご希望により「WEBでは非公開」にしている物件があります。 それらはWEBでいくら検索しても見つかりません。 先ずは条件などお知らせ頂けましたら非公開物件含め ピッタリのオフィスをご提案させて頂きます。 無理なお勧めはしておりませんので、お気軽にお問い合わせください。
対面でのご相談も受け付けております
ご来店も歓迎です
オフィス移転は社内・社外ともに非公開に行われることが殆どです。そのためアットオフィスでは、基本的に訪問によるコンサルティングを行っておりますが、ご来店の相談も歓迎です。お一人おひとりに親身にご対応させて頂きたい為、要予約とさせて頂いております。ご来店の際は先ずは下記よりご予約下さい。
募集終了のテナント区画
| 階数 | 坪数 | 賃料 + 共益費 | 敷金/礼金敷金 礼金 | 検討 |
|---|---|---|---|---|
| 1階 | 16.77坪 (55.43m²) | 募集終了 | - | - |
| 2階 | 20.96坪 (69.3m²) | 募集終了 | - | - |
| 4階 | 20.96坪 (69.28m²) | 募集終了 | - | - |
| 5階 | 20.96坪 (69.3m²) | 募集終了 | - | - |
| 6階 | 20.96坪 (69.29m²) | 募集終了 | - | - |
| 7階 | 20.96坪 (69.28m²) | 募集終了 | - | - |
| 8階 | 20.96坪 (69.3m²) | 募集終了 | - | - |
| 9階 | 20.96坪 (69.29m²) | 募集終了 | - | - |
| 10階 | 20.96坪 (69.28m²) | 募集終了 | - | - |
読込中...
銀座エリアでワイ・エヌ銀座ビルに似た条件の物件
読込中...
| 取扱様態 | 仲介 |
|---|---|
| 取扱会社 | 株式会社 アットオフィス |