イトーピア岩本町一丁目ビルB1階の賃貸情報
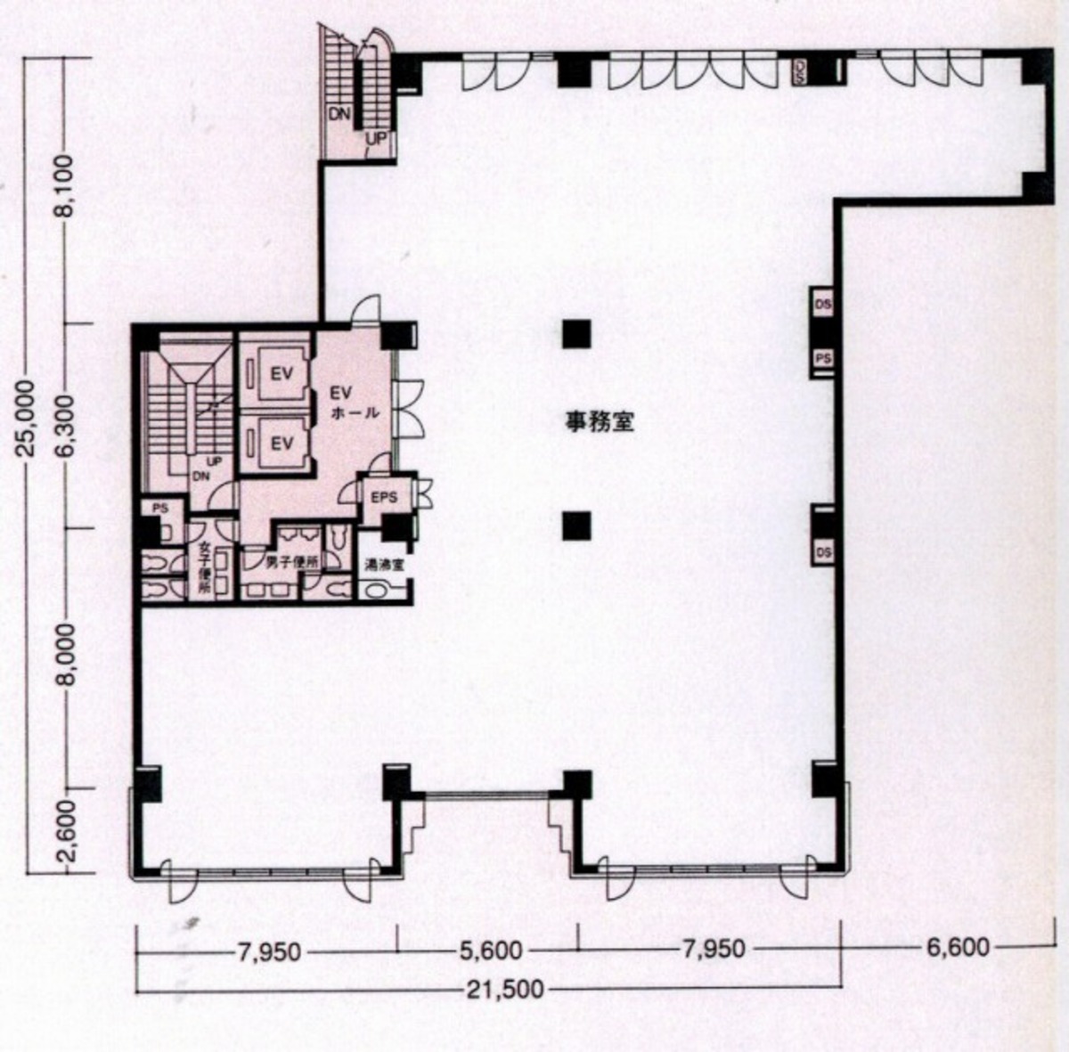
51.72 坪 (170.98m²)
※このサイトに記載がある賃貸条件は、敷金・保証金などの預かり金を除き、別途消費税がかかります。
イトーピア岩本町一丁目ビルの建物概要
設備詳細
| 空調 | 個別空調 |
|---|---|
| トイレ | - |
| 床仕様 | - |
| エレベータ | 2 基 |
| 駐車場設備 | - |
| その他 | 大型ビル / 光ファイバー / 新耐震基準 |
イトーピア岩本町一丁目ビルB1階の賃貸オフィス・事務所に関するお問い合わせ
イトーピア岩本町一丁目ビルについて
イトーピア岩本町1丁目ビルは、東京都千代田区岩本町に位置する、1991年に竣工した高スペックの賃貸オフィスビルです。このビルの最大の魅力は、その立地の良さと、充実した設備にあります。小伝馬町駅から徒歩わずか3分、加えて岩本町駅や馬喰町駅、東日本橋駅も徒歩圏内という、4つの駅が使えるアクセスの利便性は、ビジネスの拠点として最適な条件を備えています。 外観は、重厚な石張りが印象的で、エントランスには高さがあり、ステンドグラスがはめ込まれた豪華な造りです。このような美しい外観は、ビジネスの顔としての信頼性と権威を高める効果を持ち、来訪者に良い第一印象を与えることでしょう。 ビル内の設備もまた、テナント企業のニーズに応える仕様となっています。エレベーターは2基設置されており、スムーズな移動を実現します。基準階約134坪の広々としたオフィススペースは、個別空調システムで快適な作業環境を提供します。また、OAフロアの設置により、オフィス内のレイアウト変更や配線作業が容易に行え、柔軟なオフィス設計が可能です。 セキュリティ面では、カード式の機械警備システムが導入されており、24時間体制で安全が確保されています。トイレは男女別でリニューアル工事が行われており、使い勝手が良いことも特徴です。加えて、ビル内には約20台を収容できる機械式駐車場も完備されており、来訪者や従業員にとっても大きな利点となります。 周辺環境も魅力的で、オフィスビルや店舗が立ち並ぶ岩本町エリアに位置しています。コンビニや飲食店が多数あり、ビジネスの日常の中で必要なサービスやランチスポットが充実しています。このように、イトーピア岩本町1丁目ビルは、優れた立地、豪華な外観、高スペックな設備を兼ね備え、ビジネスの成功を支える理想的なオフィス環境を提供します。
自分で探すより問い合わせる方が早いことがあります
WEB非公開物件があるから
オーナー様のご希望により「WEBでは非公開」にしている物件があります。 それらはWEBでいくら検索しても見つかりません。 先ずは条件などお知らせ頂けましたら非公開物件含め ピッタリのオフィスをご提案させて頂きます。 無理なお勧めはしておりませんので、お気軽にお問い合わせください。
対面でのご相談も受け付けております
ご来店も歓迎です
オフィス移転は社内・社外ともに非公開に行われることが殆どです。そのためアットオフィスでは、基本的に訪問によるコンサルティングを行っておりますが、ご来店の相談も歓迎です。お一人おひとりに親身にご対応させて頂きたい為、要予約とさせて頂いております。ご来店の際は先ずは下記よりご予約下さい。
神田/秋葉原エリアでイトーピア岩本町一丁目ビルに似た条件の物件
読込中...
イトーピア岩本町一丁目ビルと同じ最寄駅の物件
読込中...
| 取扱様態 | 仲介 |
|---|---|
| 取扱会社 | 株式会社 アットオフィス |