KITEN岩本町5階の賃貸情報
23.81 坪 (78.72m²)
※このサイトに記載がある賃貸条件は、敷金・保証金などの預かり金を除き、別途消費税がかかります。
KITEN岩本町の建物概要
設備詳細
| 空調 | 個別空調 |
|---|---|
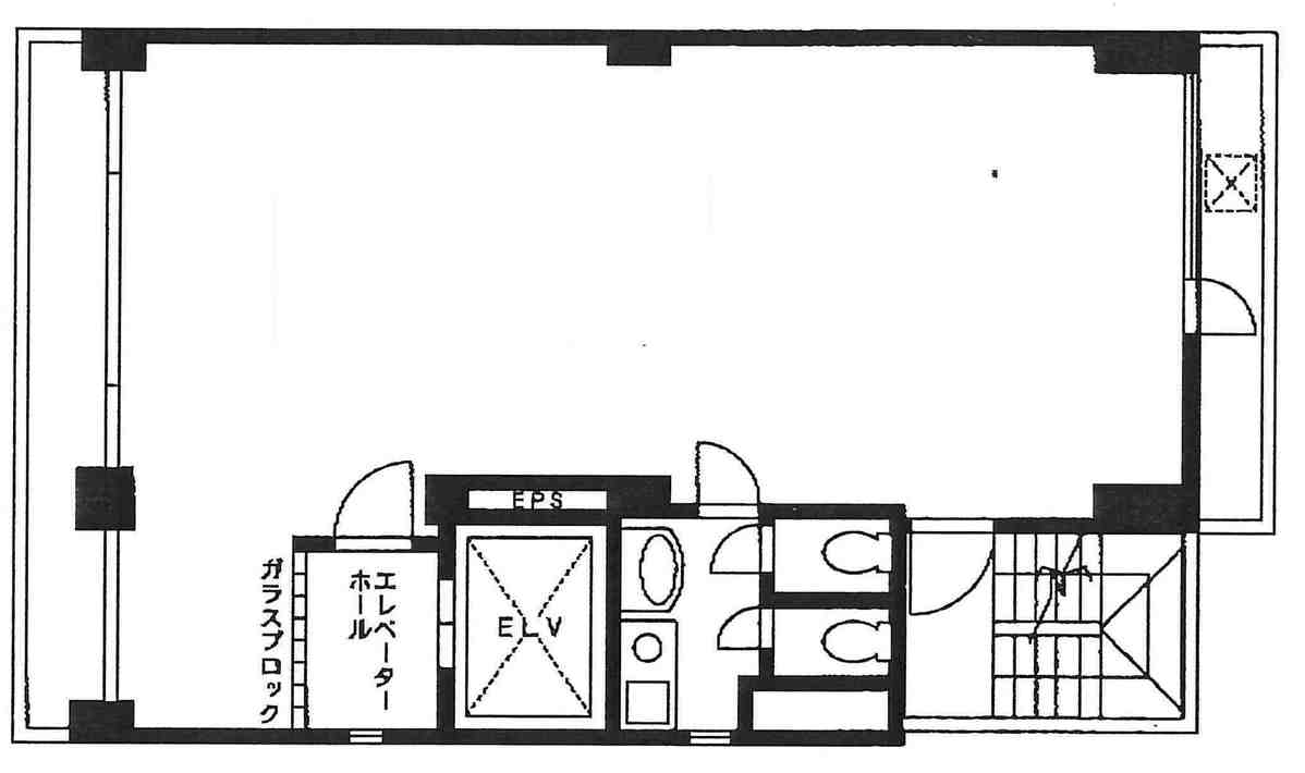
| トイレ | 男女共用トイレ・室内 |
| 床仕様 | OA対応床(フリーアクセス) |
| エレベータ | 1 基 |
| 駐車場設備 | - |
| その他 | 新耐震基準 / 光ファイバー / 機械警備 / セットアップ |
KITEN岩本町5階の賃貸オフィス・事務所に関するお問い合わせ
KITEN岩本町について
東京都千代田区、ビジネスの中心地に位置するムラトクビルは、先進性と機能性を兼ね備えた賃貸オフィスビルの傑作です。住所は東京都千代田区岩本町1-7-6、都心の利便性と落ち着いた環境が交わる絶好のロケーションにあります。1989年に竣工したこのビルは、黒のガラス張りのモダンな外観と、高級感あふれる大理石のエントランスが特徴です。築年数を感じさせない清潔感と、洗練されたデザインは、ビジネスのフロントラインに立つ皆様に相応しい印象を与えることでしょう。 アクセス面では、小伝馬町駅をはじめ、馬喰町駅、馬喰横山駅など、複数の駅から徒歩5分以内という抜群の立地を誇ります。また、昭和通りや江戸通りなどの大通りに近接しており、ビジネスに必要なサービスや飲食店などが豊富に揃っています。ビル前面の落ち着いた雰囲気は、静かで集中できる仕事環境を求める方々にとって理想的です。 本ビルの設備面でも、利便性と快適性を追求しています。エレベーターは高速かつ1機を配置し、スムーズな移動をサポート。エレベーターホールはガラスブロックタイルで明るく開放的な空間を演出しており、室内に一歩足を踏み入れれば、明るく開放感あふれるオフィス空間が広がります。さらに、貴重な男女別トイレやOAフロアを完備しており、長時間の業務にも対応できる環境を整えています。 ムラトクビルは、ビジネスの成功をサポートするための最適な環境と設備を備えています。立地の利便性、デザイン性、機能性を兼ね備えたこのビルで、皆様のビジネスを一歩先へと進めましょう。是非一度、ムラトクビルの魅力を実感するために内見をお勧めします。ビジネスの新たな拠点として、最高の選択をしていただけることを自信を持ってお約束します。
KITEN岩本町のこだわり
自分で探すより問い合わせる方が早いことがあります
WEB非公開物件があるから
オーナー様のご希望により「WEBでは非公開」にしている物件があります。 それらはWEBでいくら検索しても見つかりません。 先ずは条件などお知らせ頂けましたら非公開物件含め ピッタリのオフィスをご提案させて頂きます。 無理なお勧めはしておりませんので、お気軽にお問い合わせください。
対面でのご相談も受け付けております
ご来店も歓迎です
オフィス移転は社内・社外ともに非公開に行われることが殆どです。そのためアットオフィスでは、基本的に訪問によるコンサルティングを行っておりますが、ご来店の相談も歓迎です。お一人おひとりに親身にご対応させて頂きたい為、要予約とさせて頂いております。ご来店の際は先ずは下記よりご予約下さい。
神田/秋葉原エリアでKITEN岩本町に似た条件の物件
読込中...
KITEN岩本町と同じ最寄駅の物件
読込中...
| 取扱様態 | 仲介 |
|---|---|
| 取扱会社 | 株式会社 アットオフィス |