※このサイトに記載がある賃貸条件は、敷金・保証金などの預かり金を除き、別途消費税がかかります。
物件情報
設備詳細
| 空調 | 個別空調 |
|---|---|
| トイレ | 男女別トイレ室内 |
| 床仕様 | - |
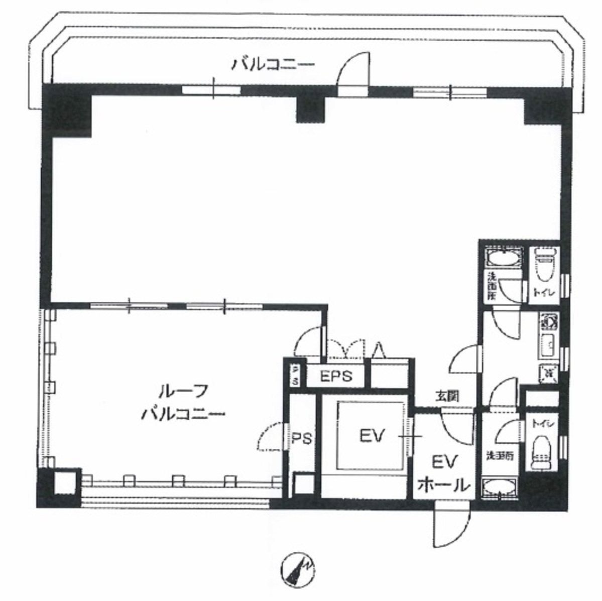
| エレベータ | 1 基 |
| 駐車場設備 | - |
| その他 | 機械警備 / オートロック / 新耐震基準 / クリニック |
住泉KMビルの賃貸オフィス・事務所に関するお問い合わせ
住泉KMビルについて
住泉KMビルのご紹介です。このビルは、1990年に竣工した耐震性に優れたオフィスビルであり、東京都千代田区岩本町1丁目の金物通りに面しています。この立地は、小伝馬町駅から徒歩4分というアクセスの良さを誇り、岩本町駅や神田駅も徒歩圏内にあり、都心でビジネスを行うにあたって非常に便利です。3駅以上が利用可能な好立地は、従業員やクライアント様の通勤・訪問の利便性を大いに高めることでしょう。 このオフィスビルは、24時間利用可能で機械警備が完備されているため、セキュリティ面でも安心して業務を行うことができます。また、男女別トイレが設置されており、利用者の快適性も考慮されています。エレベーターは1機設置されており、スムーズな移動をサポートします。 住泉KMビルは、耐震性に優れた建物としての安全性、金物通りに面した抜群の立地、3駅以上のアクセス可能性を兼ね備えたオフィスビルです。これらの特性は、ビジネスの発展に欠かせない要素であり、どの企業にとっても魅力的な選択肢となるでしょう。また、24時間利用可能であり、機械警備が完備されているため、セキュリティ面でも安心してビジネスを行うことができる環境を提供しています。 このビルの立地は、神田金物通り沿いということで、多くのビジネスチャンスに恵まれたエリアに位置しています。この地の利を生かし、ビジネスをさらに発展させることが可能です。日々の業務においても、周辺環境がビジネスの効率を高め、従業員の満足度を向上させることに寄与するでしょう。 住泉KMビルは、その設備の高さとスペックの良さ、立地の優位性を活かし、ビジネスの拠点として最適な選択となります。ビルの安全性、アクセスの便利さ、利便性を重視する企業様には、特におすすめの物件です。このビルで、新たなビジネスの歴史を刻んでみませんか?ぜひ一度、ご内見ください。
住泉KMビルのこだわり
自分で探すより問い合わせる方が早いことがあります
WEB非公開物件があるから
オーナー様のご希望により「WEBでは非公開」にしている物件があります。 それらはWEBでいくら検索しても見つかりません。 先ずは条件などお知らせ頂けましたら非公開物件含め ピッタリのオフィスをご提案させて頂きます。 無理なお勧めはしておりませんので、お気軽にお問い合わせください。
対面でのご相談も受け付けております
ご来店も歓迎です
オフィス移転は社内・社外ともに非公開に行われることが殆どです。そのためアットオフィスでは、基本的に訪問によるコンサルティングを行っておりますが、ご来店の相談も歓迎です。お一人おひとりに親身にご対応させて頂きたい為、要予約とさせて頂いております。ご来店の際は先ずは下記よりご予約下さい。
募集終了のテナント区画
| 階数 | 坪数 | 賃料 + 共益費 | 敷金/礼金敷金 礼金 | 検討 |
|---|---|---|---|---|
| 1階 | 19.42坪 (64.2m²) | 募集終了 | - | - |
| 2階 | 32.5坪 (107.53m²) | 募集終了 | - | - |
| 3階 | 32.52坪 (107.52m²) | 募集終了 | - | - |
| 4階 | 32.52坪 (107.53m²) | 募集終了 | - | - |
| 5階 | 32.52坪 (107.5m²) | 募集終了 | - | - |
| 6階 | 32.52坪 (107.53m²) | 募集終了 | - | - |
| 7階 | 32.52坪 (107.5m²) | 募集終了 | - | - |
| 8階 | 32.52坪 (107.5m²) | 募集終了 | - | - |
| 8階 | 18.27坪 (60.4m²) | 募集終了 | - | - |
| 8階 | 14.25坪 (47.12m²) | 募集終了 | - | - |
読込中...
神田/秋葉原エリアで住泉KMビルに似た条件の物件
読込中...
| 取扱様態 | 仲介 |
|---|---|
| 取扱会社 | 株式会社 アットオフィス |