※このサイトに記載がある賃貸条件は、敷金・保証金などの預かり金を除き、別途消費税がかかります。
物件情報
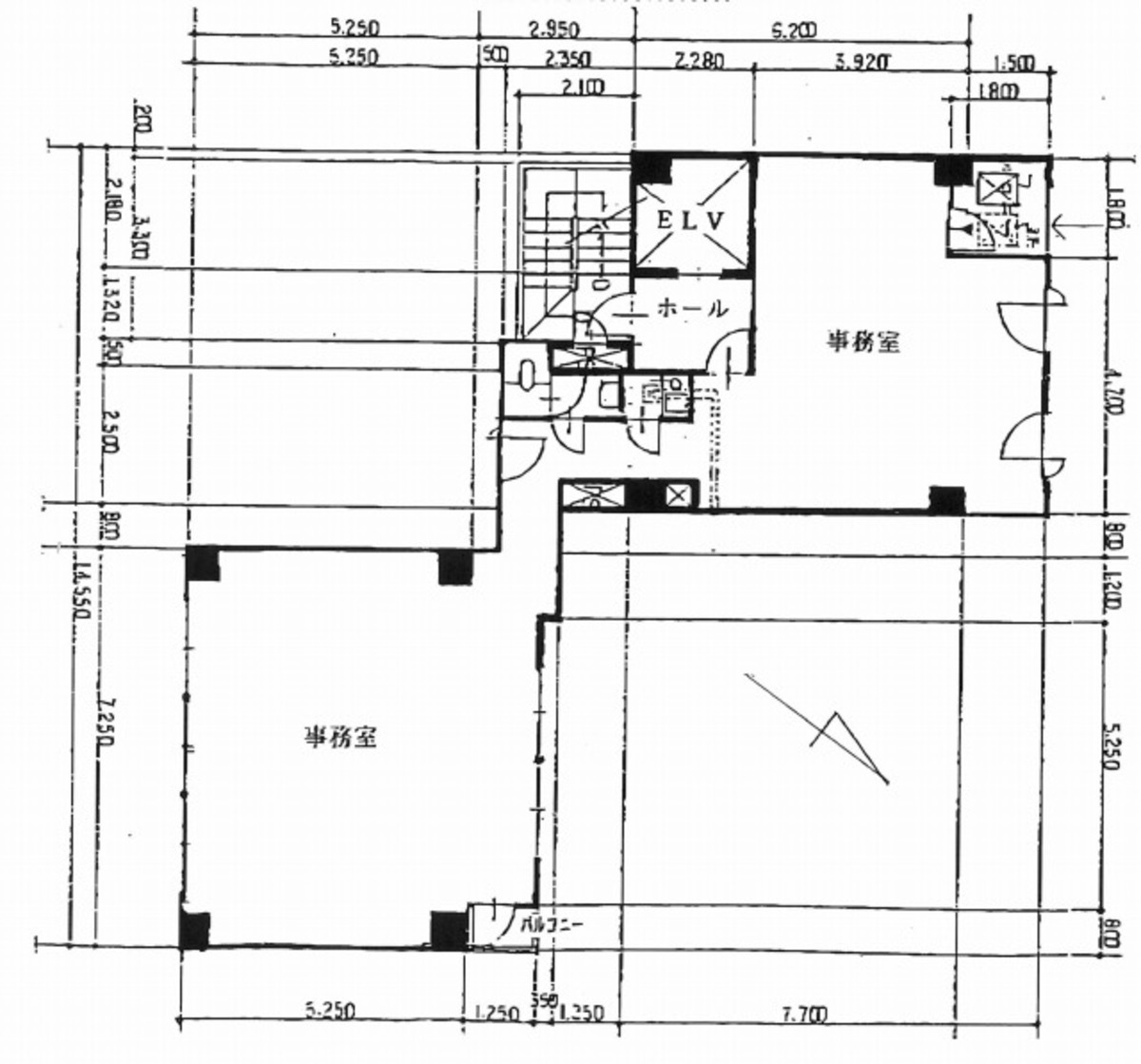
設備詳細
| 空調 | 個別空調 |
|---|---|
| トイレ | 男女共用トイレ・室内 |
| 床仕様 | - |
| エレベータ | 1 基 |
| 駐車場設備 | - |
| その他 | 新耐震基準 / 24時間利用可 / スケルトン |
TK人形町ビルディングの賃貸オフィス・事務所に関するお問い合わせ
TK人形町ビルディングについて
TK人形町ビルは、東京都中央区日本橋人形町1丁目に位置する、ビジネスの中核を担う洗練されたオフィスビルです。この地域は、歴史と現代が融合する活気ある商業地域であり、多彩な業界の企業が集まるビジネスのハブとして知られています。TK人形町ビルは、その中心に位置し、優れたアクセス性と設備の良さを兼ね備えています。 まず、このビルの外観について触れますと、前面に使用されている大理石は、堂々たる印象を与え、訪れるクライアントに対してプロフェッショナルなイメージを確立します。また、1階に入居する美容室は、ビルの洗練された雰囲気に一役買っており、オフィスワーカーにとっては、仕事終わりのリラクゼーションの場としても便利です。 設備面では、このビルはエレベーターを1機備えており、快適な移動を保証します。さらに、ワンフロア・ワンテナント制を取り入れているため、入居企業はプライバシーと専有性を高め、自社のブランドイメージを構築しやすい環境が整っています。このような設計は、特にクリエイティブな業界やプライバシーを重視するビジネスにとって理想的です。 立地においては、TK人形町ビルは複数の交通網に恵まれております。近隣には複数の駅が存在し、都心へのアクセスも非常に良好です。この地点からは、東京都内はもちろん、首都圏外へも容易に移動できるため、ビジネスの拡張にも最適な立地条件を備えています。加えて、ビル周辺は飲食店や小売店が豊富に揃い、日々の業務に必要なあらゆるニーズを満たすことが可能です。 総じて、TK人形町ビルは、その優れた設備、スペックの良さ、そして絶好の立地条件により、企業が成長を遂げるための理想的な環境を提供します。入居企業は、このビルが提供する高品質なオフィス空間と便利な周辺環境を最大限に活用し、ビジネスの成功を加速させることができるでしょう。
TK人形町ビルディングのこだわり
自分で探すより問い合わせる方が早いことがあります
WEB非公開物件があるから
オーナー様のご希望により「WEBでは非公開」にしている物件があります。 それらはWEBでいくら検索しても見つかりません。 先ずは条件などお知らせ頂けましたら非公開物件含め ピッタリのオフィスをご提案させて頂きます。 無理なお勧めはしておりませんので、お気軽にお問い合わせください。
対面でのご相談も受け付けております
ご来店も歓迎です
オフィス移転は社内・社外ともに非公開に行われることが殆どです。そのためアットオフィスでは、基本的に訪問によるコンサルティングを行っておりますが、ご来店の相談も歓迎です。お一人おひとりに親身にご対応させて頂きたい為、要予約とさせて頂いております。ご来店の際は先ずは下記よりご予約下さい。
募集終了のテナント区画
| 階数 | 坪数 | 賃料 + 共益費 | 敷金/礼金敷金 礼金 | 検討 |
|---|---|---|---|---|
| 1階 | 24.69坪 (81.61m²) | 募集終了 | - | - |
| 2階 | 26.17坪 (86.51m²) | 募集終了 | - | - |
| 3階 | 26.17坪 (86.51m²) | 募集終了 | - | - |
読込中...
近くのエリアで探してみる
人形町/馬喰町/浜町エリアでTK人形町ビルディングに似た条件の物件
読込中...
| 取扱様態 | 仲介 |
|---|---|
| 取扱会社 | 株式会社 アットオフィス |