水道橋フロント4階の賃貸情報
51.03 坪 (168.7m²)
※このサイトに記載がある賃貸条件は、敷金・保証金などの預かり金を除き、別途消費税がかかります。
水道橋フロントの建物概要
設備詳細
| 空調 | 個別空調 |
|---|---|
| トイレ | 男女別トイレ / 男女別トイレ室内 |
| 床仕様 | OA対応床(フリーアクセス) |
| エレベータ | 1 基 / エレベーター有 |
| 駐車場設備 | - |
| その他 | 機械警備 / 24時間利用可 / 光ファイバー / 大通り面する / 天井高2600mm以上 / 新耐震基準 / セットアップ / 天井高3m以上 |
水道橋フロントについて
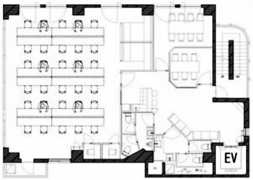
水道橋フロントは、千代田区神田三崎町に位置する、ビジネスの中心地にふさわしい賃貸オフィス物件です。JR中央線・総武線の水道橋駅から徒歩わずか1分というアクセスの良さが、日々の通勤を大きくスムーズにします。さらに九段下駅、飯田橋駅、神保町駅も徒歩9分の範囲内にあり、複数路線の利用が可能です。これにより、都内各所への移動が容易になります。 この物件は1985年に竣工し、7階建てで基準階面積は約51坪。ワンフロアワンテナント制で、他のテナントを気にすることなく、プライベートなビジネス空間を享受できます。セットアップオフィスとして利用可能で、初期コストを抑えながらスタイリッシュで機能的なオフィス環境を整えることができます。室内はデザイン性に優れ、開放感あふれる高い天井が特徴です。また、屋上テラスが利用可能で、仕事の合間にリフレッシュする場所としても最適です。 最新の設備も整っており、機械警備、エレベーターの不停止機能、顔認証システムなど、セキュリティ面も万全です。これらの設備は、テナント企業の安全性とプライバシーをしっかりと守ります。オフィス内にはテレカンブースやソファスペースが設置されており、様々な働き方に対応できる柔軟性を備えています。 周辺環境も魅力の一つで、水道橋西通り沿いに位置し、飲食店や銀行ATMが充実しています。日々のランチやアフター5の時間も充実させることができるでしょう。 水道橋フロントは、デザイン性と機能性を兼ね備えたオフィス空間を求める企業にとって、理想的な選択肢です。立地の便利さ、セキュリティの確実性、そして働きやすい環境が、ビジネスの成功へと導くでしょう。
水道橋フロントのこだわり
その他の区画
| 階数 | 坪数 | 賃料 + 共益費 | 敷金/礼金敷金 礼金 | 検討 |
|---|---|---|---|---|
| 2階 | 51.03坪 (168.7m²) | 1,377,810円 (坪:27,000 円) | 6ヶ月 無6ヶ月/無 | |
| 3階 | 53.11坪 (175.6m²) | 1,433,970円 (坪:27,000 円) | 6ヶ月 無6ヶ月/無 |
自分で探すより問い合わせる方が早いことがあります
WEB非公開物件があるから
オーナー様のご希望により「WEBでは非公開」にしている物件があります。 それらはWEBでいくら検索しても見つかりません。 先ずは条件などお知らせ頂けましたら非公開物件含め ピッタリのオフィスをご提案させて頂きます。 無理なお勧めはしておりませんので、お気軽にお問い合わせください。
対面でのご相談も受け付けております
ご来店も歓迎です
オフィス移転は社内・社外ともに非公開に行われることが殆どです。そのためアットオフィスでは、基本的に訪問によるコンサルティングを行っておりますが、ご来店の相談も歓迎です。お一人おひとりに親身にご対応させて頂きたい為、要予約とさせて頂いております。ご来店の際は先ずは下記よりご予約下さい。
近くのエリアで探してみる
飯田橋/神保町/水道橋エリアで水道橋フロントに似た条件の物件
読込中...
水道橋フロントと同じ最寄駅の物件
読込中...
| 取扱様態 | 仲介 |
|---|---|
| 取扱会社 | 株式会社 アットオフィス |