日比谷国際ビル14階の賃貸情報
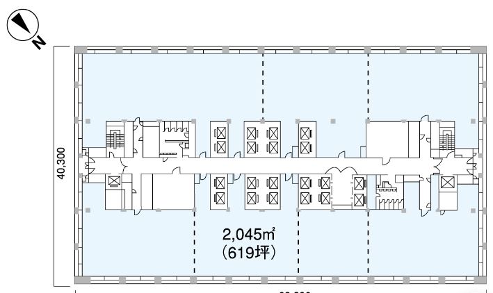
82.3 坪 (272.05m²)
※このサイトに記載がある賃貸条件は、敷金・保証金などの預かり金を除き、別途消費税がかかります。
日比谷国際ビルの建物概要
設備詳細
| 空調 | - |
|---|---|
| トイレ | - |
| 床仕様 | - |
| エレベータ | 24 基 |
| 駐車場設備 | 空有 |
| その他 | 駅直結 |
日比谷国際ビル14階の賃貸オフィス・事務所に関するお問い合わせ
日比谷国際ビルについて
千代田区内幸町に位置する日比谷国際ビルは、都心のビジネスシーンをリードする洗練されたオフィスビルです。1981年に竣工し、2009年にはリニューアルを経て、現代のオフィスニーズに合わせた最先端設備と機能性を誇ります。高さ31階建てのこのビルは、600坪を超える広々としたオフィスフロア、24時間365日利用可能な295台収容の駐車場、そして22台の高速エレベーターを備え、ビジネスの効率性と快適性を両立させています。 日比谷国際ビルの最大の魅力はその立地にあります。都営三田線・内幸町駅から徒歩約4分、さらに新橋駅や虎ノ門駅も徒歩10分圏内と、都内主要エリアへのアクセスが抜群に良好です。また、日比谷公園に隣接し、日比谷通り沿いに建つことで、ビジネス環境としてはもちろん、自然を身近に感じることができる、非常にバランスの取れたロケーションを提供しています。 ビル内はセキュリティーが24時間体制で管理されており、テナントとその従業員の安全を確保。オフィスフロアは天井高2450mm、高さ50mmのOAフロアを採用しており、柔軟なレイアウト変更が可能です。これにより、様々な業種の企業が最適なオフィス環境を実現できます。 また、ビルの地下には飲食店街が広がり、ランチやアフター5の利便性も抜群。ビルのコンセプト「都会の真ん中で、働く・食べる・ふれあう街」を体現し、ビジネスとプライベートの両面で快適な時間を提供します。 日比谷国際ビルは、その高い設備スペックと利便性の高い立地、そして利用者のニーズに応える細やかなサービスにより、ビジネスの成功をサポートする理想的な環境を提供します。今日のビジネスリーダーたちにとって、日比谷国際ビルはただのオフィスビルではなく、成功へのステップアップを実現する場所であり、それを証明する多くの企業がここにオフィスを構えています。
日比谷国際ビルのこだわり
自分で探すより問い合わせる方が早いことがあります
WEB非公開物件があるから
オーナー様のご希望により「WEBでは非公開」にしている物件があります。 それらはWEBでいくら検索しても見つかりません。 先ずは条件などお知らせ頂けましたら非公開物件含め ピッタリのオフィスをご提案させて頂きます。 無理なお勧めはしておりませんので、お気軽にお問い合わせください。
対面でのご相談も受け付けております
ご来店も歓迎です
オフィス移転は社内・社外ともに非公開に行われることが殆どです。そのためアットオフィスでは、基本的に訪問によるコンサルティングを行っておりますが、ご来店の相談も歓迎です。お一人おひとりに親身にご対応させて頂きたい為、要予約とさせて頂いております。ご来店の際は先ずは下記よりご予約下さい。
近くのエリアで探してみる
霞が関/日比谷/永田町エリアで日比谷国際ビルに似た条件の物件
読込中...
日比谷国際ビルと同じ最寄駅の物件
読込中...
| 取扱様態 | 仲介 |
|---|---|
| 取扱会社 | 株式会社 アットオフィス |