BRICK GATE 水道橋5階の賃貸情報
30.31 坪 (100.2m²)
※このサイトに記載がある賃貸条件は、敷金・保証金などの預かり金を除き、別途消費税がかかります。
BRICK GATE 水道橋の建物概要
設備詳細
| 空調 | 個別空調 |
|---|---|
| トイレ | 男女別トイレ |
| 床仕様 | OA対応床(フリーアクセス) |
| エレベータ | 1 基 / エレベーター有 |
| 駐車場設備 | - |
| その他 | 光ファイバー / 機械警備 / 24時間利用可 / 居抜き / 新耐震基準 / オフィス居抜き特集 / セットアップ |
BRICK GATE 水道橋について
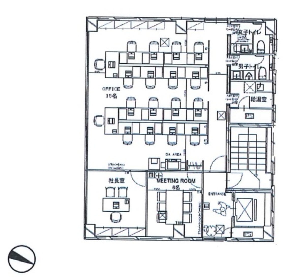
BRICKGATE水道橋(旧:天龍ビル)は、東京都千代田区神田三崎町に位置する賃貸オフィス物件です。本ビルは1985年に竣工し、2017年にはエントランスおよび室内の大規模なリニューアルを施しております。各階約50坪のワンフロア構成で、現代ビジネスのニーズに合わせた設備とサービスを提供することを目的としております。 立地としては、水道橋駅から徒歩4分、神保町駅から徒歩7分というアクセスの利便性があります。また、九段下駅も徒歩圏内にあるため、複数の交通網を利用することが可能です。この立地は、都心へのアクセスが容易でありながら、日本大学をはじめとする学校や予備校が集まる文教地区にも近接しており、飲食店やコンビニエンスストアが充実していることも特徴的です。 リニューアルにより、ビルのエントランスは明るくモダンな雰囲気を醸し出し、入居企業にとって好印象を与えるファサードを提供しています。オフィスフロアは個別空調システムとOAフロアを完備し、作業環境の快適性と効率性を考慮した設計となっております。天井高2,800mmの広々とした空間は、オープンな働き方を支援します。 5階には居抜き状態での貸出しもあり、受付と2つの会議室が設けられているため、即戦力としてのオフィス利用が可能です。また、屋上には入居者専用のテラスを設置し、ここで働く人々がリフレッシュできる空間を提供しています。 この物件の特長は、アクセスの良さ、リニューアルによる現代的な設備とデザイン、そして多様な働き方に対応できる柔軟性にあります。BRICKGATE水道橋は、都心でビジネスを展開する企業にとって、機能性と快適さを兼ね備えた理想的なオフィス空間を提供します。
BRICK GATE 水道橋のこだわり
その他の区画
| 階数 | 坪数 | 賃料 + 共益費 | 敷金/礼金敷金 礼金 | 検討 |
|---|---|---|---|---|
| 2階 | 50.83坪 (168.06m²) | 1,219,920円 (坪:24,000 円) | 6ヶ月 無6ヶ月/無 |
自分で探すより問い合わせる方が早いことがあります
WEB非公開物件があるから
オーナー様のご希望により「WEBでは非公開」にしている物件があります。 それらはWEBでいくら検索しても見つかりません。 先ずは条件などお知らせ頂けましたら非公開物件含め ピッタリのオフィスをご提案させて頂きます。 無理なお勧めはしておりませんので、お気軽にお問い合わせください。
対面でのご相談も受け付けております
ご来店も歓迎です
オフィス移転は社内・社外ともに非公開に行われることが殆どです。そのためアットオフィスでは、基本的に訪問によるコンサルティングを行っておりますが、ご来店の相談も歓迎です。お一人おひとりに親身にご対応させて頂きたい為、要予約とさせて頂いております。ご来店の際は先ずは下記よりご予約下さい。
近くのエリアで探してみる
飯田橋/神保町/水道橋エリアでBRICK GATE 水道橋に似た条件の物件
読込中...
BRICK GATE 水道橋と同じ最寄駅の物件
読込中...
| 取扱様態 | 仲介 |
|---|---|
| 取扱会社 | 株式会社 アットオフィス |