山王グランドビルの賃料条件
| 階数 | 坪数 | 賃料 + 共益費 | 敷金/礼金敷金 礼金 | 検討 |
|---|---|---|---|---|
| B1階 | 46.19坪 (152.69m²) | お問合せ下さい (坪:-) | 相談 無相談/無 | |
| 1階 | 46.77坪 (154.61m²) | お問合せ下さい (坪:-) | 相談 無相談/無 | |
| 3階 | 81.04坪 (267.9m²) | お問合せ下さい (坪:-) | 相談 無相談/無 |
※このサイトに記載がある賃貸条件は、敷金・保証金などの預かり金を除き、別途消費税がかかります。
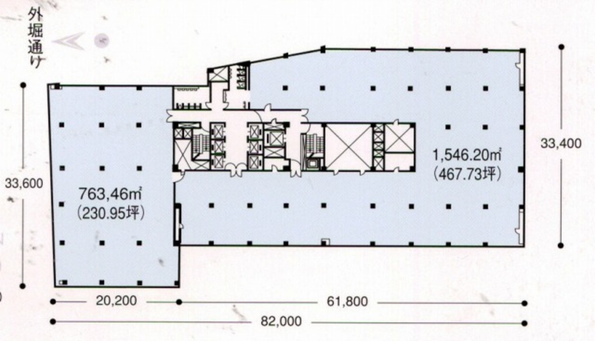
物件情報
設備詳細
| 空調 | セントラル空調 |
|---|---|
| トイレ | - |
| 床仕様 | OA対応床(フリーアクセス) |
| エレベータ | 7 基 |
| 駐車場設備 | 空有 |
| その他 | 光ファイバー / クリニック / 1階の物件 |
山王グランドビルの賃貸オフィス・事務所に関するお問い合わせ
山王グランドビルについて
山王グランドビルは東京都千代田区永田町、赤坂見附駅からわずか徒歩1分という抜群のアクセスを誇る賃貸オフィスビルです。このビルは、1966年に竣工し、新耐震基準にも対応した耐震補強工事済みの物件として、安心感を提供します。基準階面積は600坪を超える大規模オフィスで、ワンフロア700坪を越える広大なスペースには、開放感あふれるオフィス環境が広がります。また、全面リニューアルを経て、最新のオフィスニーズに応じた設備が整っています。 その立地は、東京メトロ銀座線、丸ノ内線の赤坂見附駅のほか、永田町駅、溜池山王駅といった複数の駅が徒歩圏内にあり、東京メトロ5路線が利用可能な交通至便な環境です。ビジネスの拠点として、また従業員の通勤にも最適な立地条件を提供します。 山王グランドビルの主な設備として、OAフロア、光ファイバー完備、セントラル空調、給湯設備、男女別トイレなどが挙げられます。これらの設備は、現代のビジネス環境に必要不可欠なものばかりであり、快適なオフィスライフをサポートします。また、エレベーターは6基設置され、日々の移動の利便性を高めています。 周辺環境も魅力の一つで、ビルの至近には飲食店やショッピング施設が豊富にあり、ビジネスアフターも楽しむことができます。また、青山通りへのアクセスも良好で、ビジネスだけでなく、プライベートの充実も期待できる立地です。 山王グランドビルは、その高い耐震性、豊富な設備、便利な立地など、ビジネスの成功を支えるあらゆる要素を兼ね備えたビルです。ビジネスの拠点として最適な環境を求める企業にとって、これ以上ない選択肢と言えるでしょう。このビルが、あなたのビジネスをさらなる高みへと導くことを私たちは確信しています。
山王グランドビルのこだわり
自分で探すより問い合わせる方が早いことがあります
WEB非公開物件があるから
オーナー様のご希望により「WEBでは非公開」にしている物件があります。 それらはWEBでいくら検索しても見つかりません。 先ずは条件などお知らせ頂けましたら非公開物件含め ピッタリのオフィスをご提案させて頂きます。 無理なお勧めはしておりませんので、お気軽にお問い合わせください。
対面でのご相談も受け付けております
ご来店も歓迎です
オフィス移転は社内・社外ともに非公開に行われることが殆どです。そのためアットオフィスでは、基本的に訪問によるコンサルティングを行っておりますが、ご来店の相談も歓迎です。お一人おひとりに親身にご対応させて頂きたい為、要予約とさせて頂いております。ご来店の際は先ずは下記よりご予約下さい。
募集終了のテナント区画
読込中...
近くのエリアで探してみる
霞が関/日比谷/永田町エリアで山王グランドビルに似た条件の物件
読込中...
| 取扱様態 | 仲介 |
|---|---|
| 取扱会社 | 株式会社 アットオフィス |