※このサイトに記載がある賃貸条件は、敷金・保証金などの預かり金を除き、別途消費税がかかります。
物件情報
設備詳細
| 空調 | 個別空調 / セントラル空調 |
|---|---|
| トイレ | - |
| 床仕様 | OA対応床(フリーアクセス) |
| エレベータ | 2 基 / エレベーター有 |
| 駐車場設備 | 空有 / 敷地内駐車場 |
| その他 | 新耐震基準 / 居抜き |
日本橋ライフサイエンスビルディング8の賃貸オフィス・事務所に関するお問い合わせ
日本橋ライフサイエンスビルディング8について
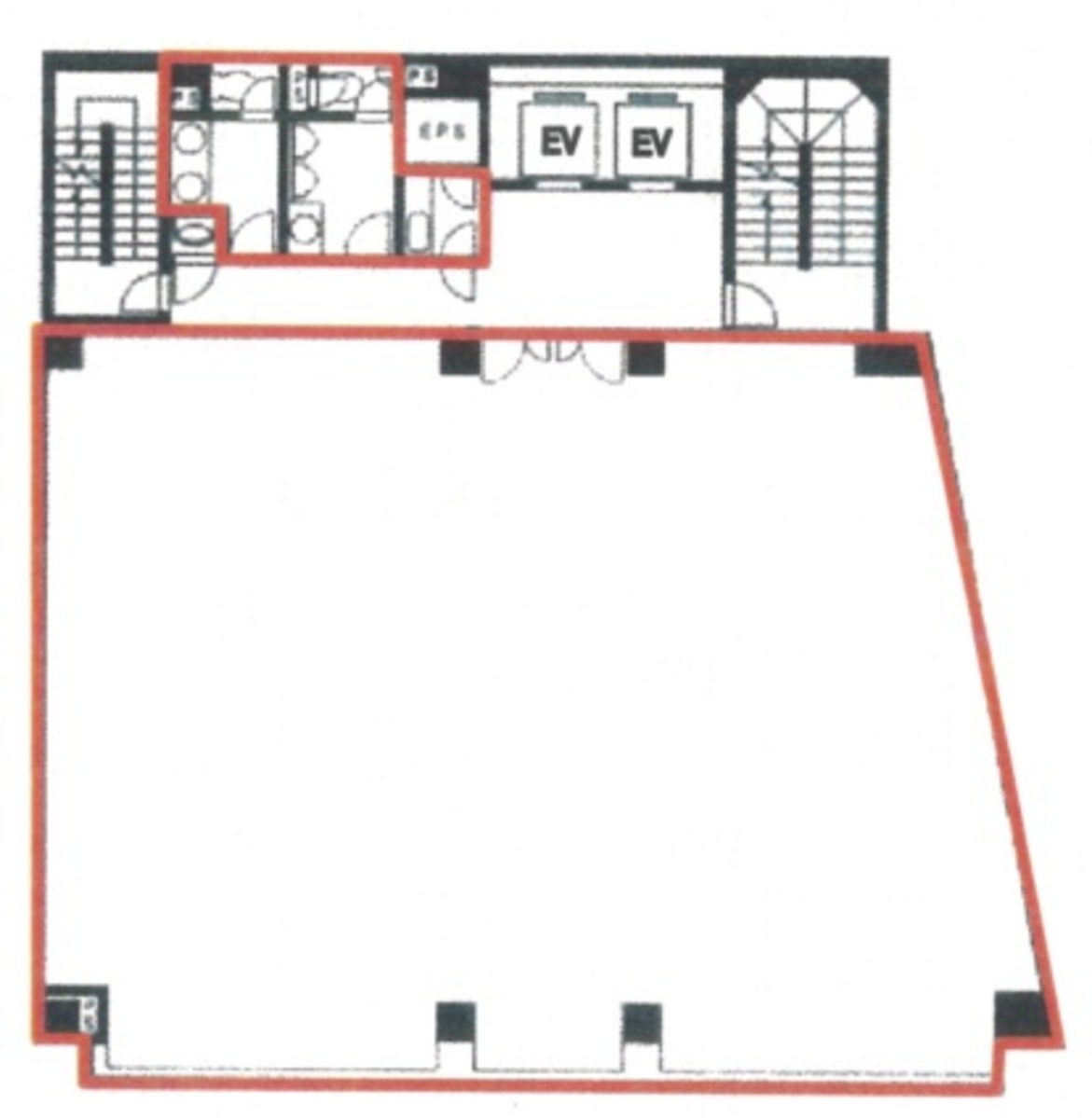
日本橋ライフサイエンスビルディング8は、東京都中央区日本橋堀留町1丁目に位置する、ビジネスと快適性を兼ね備えた賃貸オフィスビルです。このビルは1988年に竣工し、地上8階・地下1階建ての構造を有しております。外壁は深みのあるグレー色で、上階がセットバックしているデザインが特徴的です。基準階面積は約80坪で、室内はほぼ正方形に近い間取りとなっており、床荷重は300kg/㎡となっています。 アクセス面では、小伝馬町駅から徒歩3分、人形町駅からは徒歩6分という非常に便利な立地にあります。さらに、三越前駅からもアクセス可能で、周辺には飲食店やコンビニ、銀行などの生活に必要な施設が充実しています。特に、人形町通りから路地を入った場所に位置しており、ビジネスに必要な静けさと都会の利便性を併せ持っています。 ビル内の設備については、鉄骨鉄筋コンクリート造の耐震性に優れた建物であり、エレベーターは2基設置されています。また、セントラル空調と個別空調の両方が利用可能で、フロアや区画ごとに温度管理ができる点も魅力の一つです。OAフロアを採用しているため、フレキシブルなオフィスレイアウトが可能となっており、ビジネスの多様なニーズに応えることができます。 セキュリティ面では、機械警備システムを採用しており、安心して業務を行うことができます。1階には飲食店が入居しており、建物のエントランスやロビー、トイレ、給湯室、エレベーターホールは2014年にリニューアルされ、清潔感と品質の高さを保っています。 日本橋ライフサイエンスビルディング8は、その立地、設備、セキュリティにおいて、多様なビジネスの要求に応えることができる賃貸オフィスビルです。周辺環境の充実と、ビル自体の機能性・利便性が融合したこの物件は、ビジネスの成功に欠かせない優れた選択肢と言えるでしょう。
自分で探すより問い合わせる方が早いことがあります
WEB非公開物件があるから
オーナー様のご希望により「WEBでは非公開」にしている物件があります。 それらはWEBでいくら検索しても見つかりません。 先ずは条件などお知らせ頂けましたら非公開物件含め ピッタリのオフィスをご提案させて頂きます。 無理なお勧めはしておりませんので、お気軽にお問い合わせください。
対面でのご相談も受け付けております
ご来店も歓迎です
オフィス移転は社内・社外ともに非公開に行われることが殆どです。そのためアットオフィスでは、基本的に訪問によるコンサルティングを行っておりますが、ご来店の相談も歓迎です。お一人おひとりに親身にご対応させて頂きたい為、要予約とさせて頂いております。ご来店の際は先ずは下記よりご予約下さい。
募集終了のテナント区画
| 階数 | 坪数 | 賃料 + 共益費 | 敷金/礼金敷金 礼金 | 検討 |
|---|---|---|---|---|
| 1階 | 22.74坪 (75.2m²) | 募集終了 | - | - |
| 2階 | 73.34坪 (242.47m²) | 募集終了 | - | - |
| 2階 | 4.12坪 (13.65m²) | 募集終了 | - | - |
| 3階 | 78.54坪 (259.64m²) | 募集終了 | - | - |
| 3階 | 30.46坪 (100.69m²) | 募集終了 | - | - |
| 4階 | 36.73坪 (121.42m²) | 募集終了 | - | - |
| 4階 | 73.34坪 (242.47m²) | 募集終了 | - | - |
| 6階 | 78.57坪 (259.73m²) | 募集終了 | - | - |
| 6階 | 69.49坪 (229.72m²) | 募集終了 | - | - |
| 6階 | 64.29坪 (212.54m²) | 募集終了 | - | - |
| 7階 | 56.53坪 (186.88m²) | 募集終了 | - | - |
| 7階 | 23.85坪 (78.84m²) | 募集終了 | - | - |
| 8階 | 44.05坪 (145.61m²) | 募集終了 | - | - |
読込中...
近くのエリアで探してみる
人形町/馬喰町/浜町エリアで日本橋ライフサイエンスビルディング8に似た条件の物件
読込中...
| 取扱様態 | 仲介 |
|---|---|
| 取扱会社 | 株式会社 アットオフィス |