※このサイトに記載がある賃貸条件は、敷金・保証金などの預かり金を除き、別途消費税がかかります。
物件情報
設備詳細
| 空調 | - |
|---|---|
| トイレ | - |
| 床仕様 | - |
| エレベータ | 1 基 |
| 駐車場設備 | 空有 |
| その他 | 新耐震基準 / 機械警備 / 24時間利用可 |
能楽書林ビルの賃貸オフィス・事務所に関するお問い合わせ
能楽書林ビルについて
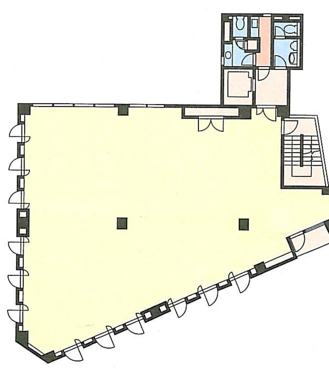
能楽書林ビルは、東京都千代田区神田神保町に位置する、賃貸オフィスビルの一つです。1990年に建設され、新耐震基準に準拠したこの物件は、ビジネスの中心地において安心してご利用いただける環境を提供します。本ビルは地上6階、地下1階建てで、基準となるオフィスフロアの広さは約65坪です。台形に近い特異な形状の執務スペースは、多様なオフィスレイアウトを可能にし、企業のニーズに合わせた柔軟な空間利用を実現します。 立地においては、能楽書林ビルは九段下駅から徒歩4分、神保町駅からは徒歩5分の距離にあり、複数の交通機関へのアクセスが容易で、ビジネスの拠点として非常に魅力的です。また、水道橋駅も徒歩10分程度で、JR線の利用も可能です。この立地は、ビジネスパーソンにとって通勤の便利さだけでなく、クライアントとのアクセスの良さをもたらします。 設備面では、ビル内には光ケーブルが引かれており、高速インターネット環境が整っています。OAフロアを採用しているため、オフィス内の配線作業が容易になり、作業空間の自由度が向上します。また、個別空調システムにより、各テナントは自社の快適な環境を容易に管理できます。男女別のトイレや機械警備システムなど、ビルの設備はテナントのニーズに応えるために細やかな配慮がされています。 周辺環境もビルの魅力の一つです。ビルの近くにはコンビニが徒歩1分の距離にあり、飲食店が充実している神保町エリアは、ランチやアフター5の時間を充実させます。また、靖国通りから1本入った場所に位置しており、ビジネスの中心地でありながら、落ち着いた環境で業務に集中できます。 能楽書林ビルは、その立地の良さ、充実した設備、そして快適な周辺環境を兼ね備えた賃貸オフィスビルです。ビジネスの拠点としての機能性と快適性を追求する企業にとって、最適な選択肢の一つであることは間違いありません。
能楽書林ビルのこだわり
自分で探すより問い合わせる方が早いことがあります
WEB非公開物件があるから
オーナー様のご希望により「WEBでは非公開」にしている物件があります。 それらはWEBでいくら検索しても見つかりません。 先ずは条件などお知らせ頂けましたら非公開物件含め ピッタリのオフィスをご提案させて頂きます。 無理なお勧めはしておりませんので、お気軽にお問い合わせください。
対面でのご相談も受け付けております
ご来店も歓迎です
オフィス移転は社内・社外ともに非公開に行われることが殆どです。そのためアットオフィスでは、基本的に訪問によるコンサルティングを行っておりますが、ご来店の相談も歓迎です。お一人おひとりに親身にご対応させて頂きたい為、要予約とさせて頂いております。ご来店の際は先ずは下記よりご予約下さい。
募集終了のテナント区画
| 階数 | 坪数 | 賃料 + 共益費 | 敷金/礼金敷金 礼金 | 検討 |
|---|---|---|---|---|
| 1階 | 34.46坪 (113.93m²) | 募集終了 | - | - |
| 2階 | 64.96坪 (214.74m²) | 募集終了 | - | - |
| 3階 | 64.96坪 (214.74m²) | 募集終了 | - | - |
| 4階 | 64.96坪 (214.74m²) | 募集終了 | - | - |
| 5階 | 56.22坪 (185.85m²) | 募集終了 | - | - |
| 6階 | 35.5坪 (117.35m²) | 募集終了 | - | - |
読込中...
近くのエリアで探してみる
飯田橋/神保町/水道橋エリアで能楽書林ビルに似た条件の物件
読込中...
| 取扱様態 | 仲介 |
|---|---|
| 取扱会社 | 株式会社 アットオフィス |