※このサイトに記載がある賃貸条件は、敷金・保証金などの預かり金を除き、別途消費税がかかります。
物件情報
設備詳細
| 空調 | 個別空調 |
|---|---|
| トイレ | 男女共用トイレ・室内 |
| 床仕様 | - |
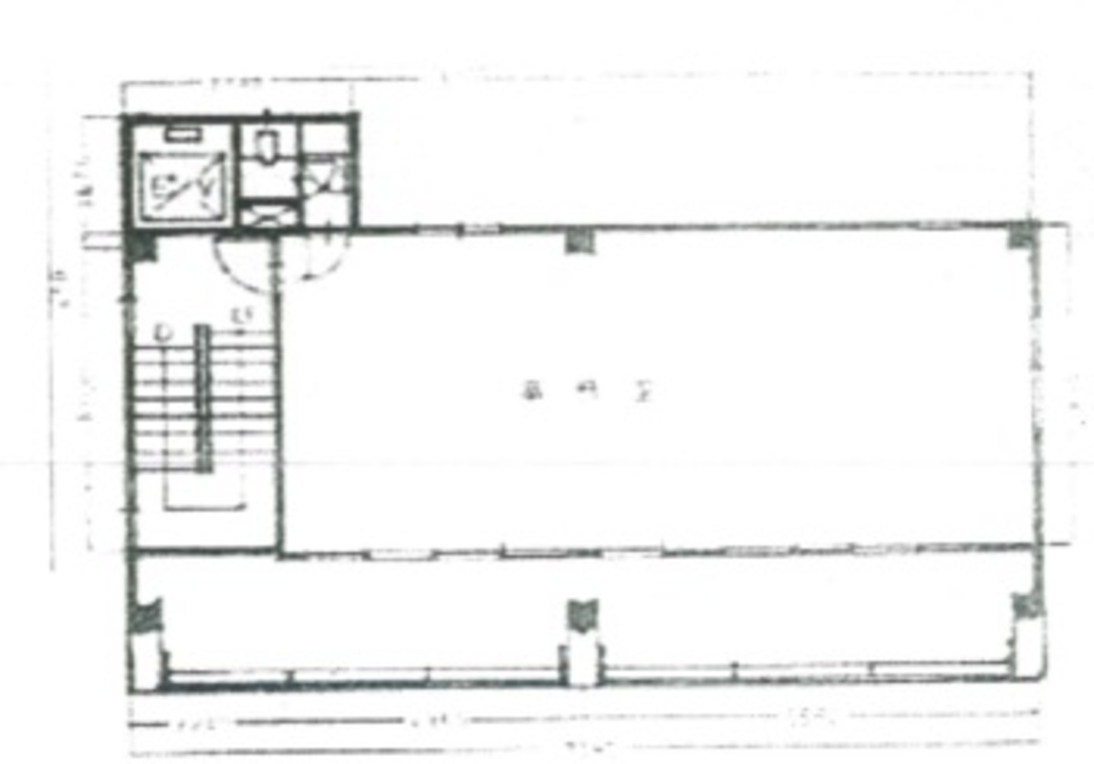
| エレベータ | 1 基 |
| 駐車場設備 | - |
| その他 | 光ファイバー / 24時間利用可 |
高遠ビルの賃貸オフィス・事務所に関するお問い合わせ
高遠ビルについて
高遠ビルは、東京都千代田区神田鍛冶町3丁目に位置するオフィスビルであり、その立地と機能性に優れた設備がビジネスのさまざまなニーズに応える設計となっています。この文書では、高遠ビルの特徴、立地、設備の重要な点を簡潔にまとめ、ビルの独自の魅力やビジネスにおける利点を強調していきます。 まず、高遠ビルの最も顕著な特徴の一つは、その抜群の立地条件です。千代田区は東京都の中心部に位置し、政府機関や多数の企業の本社が集まる地域です。高遠ビルはこの中心地に位置しており、ビジネスの拠点として最適な環境を提供します。また、ビル周辺には飲食店や商業施設が豊富にあり、日常の利便性も非常に高いです。 次に、高遠ビルの設備について触れます。このビルは、ビジネスの効率を最大限に高めるための設備を整えています。エレベーターは1機設置されており、スムーズな移動をサポートします。また、オフィススペースは、機能性と快適性を追求した設計となっており、長時間の業務でも疲労を感じにくい環境です。 さらに、高遠ビルは、ビジネスの成長と発展を支えるための柔軟な賃貸オプションを提供しています。小規模なスタートアップから中規模の企業まで、様々なビジネスの規模に応じたオフィススペースを選択することができます。これにより、企業は成長段階に応じた最適なオフィス環境を確保でき、効率的なビジネス運営が可能となります。 総じて、高遠ビルは、その優れた立地条件、機能的な設備、柔軟な賃貸オプションを通じて、ビジネスの成功を支えるための最適な環境を提供します。ビジネスの拠点としての要件を満たすだけでなく、従業員の働きやすさや利便性も考慮されたこのビルは、企業の成長と発展を加速させるための理想的な選択肢と言えるでしょう。
高遠ビルのこだわり
自分で探すより問い合わせる方が早いことがあります
WEB非公開物件があるから
オーナー様のご希望により「WEBでは非公開」にしている物件があります。 それらはWEBでいくら検索しても見つかりません。 先ずは条件などお知らせ頂けましたら非公開物件含め ピッタリのオフィスをご提案させて頂きます。 無理なお勧めはしておりませんので、お気軽にお問い合わせください。
対面でのご相談も受け付けております
ご来店も歓迎です
オフィス移転は社内・社外ともに非公開に行われることが殆どです。そのためアットオフィスでは、基本的に訪問によるコンサルティングを行っておりますが、ご来店の相談も歓迎です。お一人おひとりに親身にご対応させて頂きたい為、要予約とさせて頂いております。ご来店の際は先ずは下記よりご予約下さい。
募集終了のテナント区画
| 階数 | 坪数 | 賃料 + 共益費 | 敷金/礼金敷金 礼金 | 検討 |
|---|---|---|---|---|
| B1階 | 25.66坪 (84.82m²) | 募集終了 | - | - |
| 1階 | 23.93坪 (79.1m²) | 募集終了 | - | - |
| 2階 | 25坪 (82.64m²) | 募集終了 | - | - |
| 3階 | 29.19坪 (96.49m²) | 募集終了 | - | - |
| 3階 | 16.83坪 (55.65m²) | 募集終了 | - | - |
| 5階 | 16.84坪 (55.66m²) | 募集終了 | - | - |
| 6階 | 12坪 (39.66m²) | 募集終了 | - | - |
| 6階 | 10坪 (33.05m²) | 募集終了 | - | - |
読込中...
神田/秋葉原エリアで高遠ビルに似た条件の物件
読込中...
| 取扱様態 | 仲介 |
|---|---|
| 取扱会社 | 株式会社 アットオフィス |