KTビル7階の賃貸情報
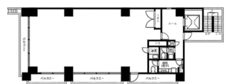
35.9 坪 (118.68m²)
※このサイトに記載がある賃貸条件は、敷金・保証金などの預かり金を除き、別途消費税がかかります。
KTビルの建物概要
設備詳細
| 空調 | 個別空調 |
|---|---|
| トイレ | 男女別トイレ室外 |
| 床仕様 | - |
| エレベータ | 1 基 |
| 駐車場設備 | - |
| その他 | 光ファイバー / オートロック / 機械警備 / 新耐震基準 / 東京賃料が坪11000円以下 |
KTビル7階の賃貸オフィス・事務所に関するお問い合わせ
KTビルについて
東京の活気ある台東区にあり、ビジネスの中心地として理想的な立地を誇る二つのオフィスビル、KTビルと東上野KTビルをご紹介します。これらの物件は、それぞれ独自の魅力とビジネスにおける利点を持ち、どのような企業にも最適なオフィスソリューションを提供します。 まず、KTビルは1993年に竣工された7階建ての耐震オフィスビルで、基準階約64坪の広々としたオフィススペースを提供しています。シルバーブルーのタイル張りの外装が特徴的で、ビルの存在感を際立たせています。エントランスは24時間利用可能で、夜間はオートロック機能が付いており、安全性にも配慮されています。ビル内には1基のエレベーターがあり、上野駅から徒歩3分、稲荷町駅からもアクセス可能という抜群の立地条件を誇ります。周辺にはコンビニや飲食店が多く、ビジネス利用に便利な環境です。このビルは、その利便性と機能性を兼ね備え、あらゆるビジネスニーズに応える理想的なオフィス空間と言えるでしょう。 一方、東上野KTビルは1985年竣工の比較的コンパクトな5階建てのオフィスビルで、エレベーターは設置されておらず、建物内は階段での移動となります。黄色のレンガ調のシンプルな外観が特徴で、清洲橋通りから少し入った落ち着いたエリアに位置しています。稲荷町駅から徒歩5分、上野駅からもアクセスが可能で、周辺にはコンビニやスーパーマーケットがあるなど、生活に必要な施設が揃っています。このビルは、規模こそ小さいものの、低コストでビジネスをスタートさせたい起業家や小規模企業にとって理想的な選択肢となるでしょう。 それぞれのビルは、立地、設備、周辺環境の面で異なる特徴を持ち、様々なタイプのビジネスニーズに対応できるよう設計されています。KTビルは、その利便性とセキュリティの高さが魅力で、中規模から大規模な企業に適しています。一方、東上野KTビルは、より個人的なビジネスやスタートアップに適した、コンパクトで経済的なオフィススペースを提供します。どちらのビルも、台東区というビジネスの中心地に位置しており、企業活動に必要なあらゆるサポートを周辺環境が提供しています。 ビジネスの成功は立地と環境に大きく依存します。KTビルと東上野KTビルは、そのどちらもが提供する独自の特性と利点を活かし、企業がそのポテンシャルを最大限に引き出せるようサポートする理想的なオフィス空間です。これらのビルがビジネスの新たな拠点として、皆様の成功に貢献できることを心から願っています。
自分で探すより問い合わせる方が早いことがあります
WEB非公開物件があるから
オーナー様のご希望により「WEBでは非公開」にしている物件があります。 それらはWEBでいくら検索しても見つかりません。 先ずは条件などお知らせ頂けましたら非公開物件含め ピッタリのオフィスをご提案させて頂きます。 無理なお勧めはしておりませんので、お気軽にお問い合わせください。
対面でのご相談も受け付けております
ご来店も歓迎です
オフィス移転は社内・社外ともに非公開に行われることが殆どです。そのためアットオフィスでは、基本的に訪問によるコンサルティングを行っておりますが、ご来店の相談も歓迎です。お一人おひとりに親身にご対応させて頂きたい為、要予約とさせて頂いております。ご来店の際は先ずは下記よりご予約下さい。
上野/台東/東上野エリアでKTビルに似た条件の物件
読込中...
KTビルと同じ最寄駅の物件
読込中...
| 取扱様態 | 仲介 |
|---|---|
| 取扱会社 | 株式会社 アットオフィス |