※このサイトに記載がある賃貸条件は、敷金・保証金などの預かり金を除き、別途消費税がかかります。
物件情報
設備詳細
| 空調 | 個別空調 |
|---|---|
| トイレ | 男女共用トイレ・室内 |
| 床仕様 | - |
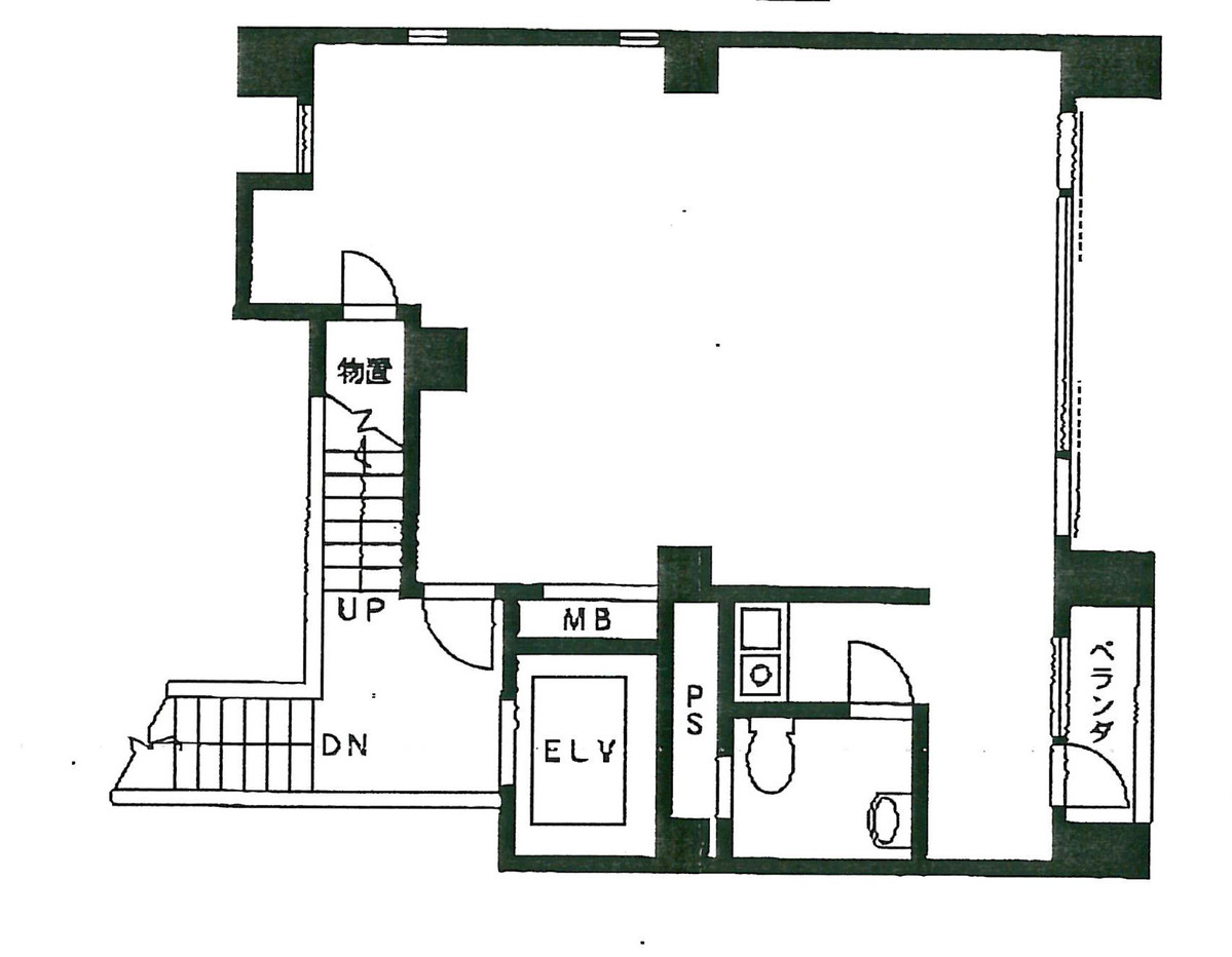
| エレベータ | 1 基 |
| 駐車場設備 | - |
| その他 | 新耐震基準 |
アソルティ人形町ビルの賃貸オフィス・事務所に関するお問い合わせ
アソルティ人形町ビルについて
アソルティ人形町ビルは、東京都中央区日本橋富沢町に位置し、1988年に竣工した耐震性に優れたオフィスビルです。このビルの最大の特徴は、その立地とデザインにあります。人形町駅からわずか徒歩3分というアクセスの良さは、ビジネスの機動性を高める上で非常に重要な要素です。また、ビルの白い外壁と黒のエントランスは、洗練されたシックな雰囲気を演出し、企業のブランドイメージを高めるのに一役買っています。 ビル内の設備においても、現代のオフィスニーズに応える機能が整っています。エレベーターは1機ですが、スムーズな運行によりビル内の移動効率を保っています。また、オフィスの窓が2面に設置されているため、自然光がたっぷりと入る明るいオフィス環境を提供しており、働く従業員の心地よさや生産性の向上に貢献します。 立地に関しても、アソルティ人形町ビルはその静かな環境で知られています。ビジネスに集中するための静けさと、都心の利便性を兼ね備えているため、多様な業種の企業にとって魅力的な選択肢となるでしょう。また、周辺には飲食店や商業施設が充実しており、ビジネスアフターのリラックスタイムやクライアントとの会食にも便利な立地条件を備えています。 耐震性をはじめとする安全面の配慮、アクセスの良さ、効率的なオフィス環境、そして快適な周辺環境と、アソルティ人形町ビルはビジネスの成功に必要な要素を総合的に提供しています。企業が新たなオフィスを検討する際、アソルティ人形町ビルは、その優れた機能性と環境により、選択肢の一つとして高い魅力を持っています。このビルで、あなたのビジネスがより一層の成功を収めることを願っています。
アソルティ人形町ビルのこだわり
自分で探すより問い合わせる方が早いことがあります
WEB非公開物件があるから
オーナー様のご希望により「WEBでは非公開」にしている物件があります。 それらはWEBでいくら検索しても見つかりません。 先ずは条件などお知らせ頂けましたら非公開物件含め ピッタリのオフィスをご提案させて頂きます。 無理なお勧めはしておりませんので、お気軽にお問い合わせください。
対面でのご相談も受け付けております
ご来店も歓迎です
オフィス移転は社内・社外ともに非公開に行われることが殆どです。そのためアットオフィスでは、基本的に訪問によるコンサルティングを行っておりますが、ご来店の相談も歓迎です。お一人おひとりに親身にご対応させて頂きたい為、要予約とさせて頂いております。ご来店の際は先ずは下記よりご予約下さい。
募集終了のテナント区画
| 階数 | 坪数 | 賃料 + 共益費 | 敷金/礼金敷金 礼金 | 検討 |
|---|---|---|---|---|
| 3階 | 27坪 (83.83m²) | 募集終了 | - | - |
| 4階 | 27坪 (89.26m²) | 募集終了 | - | - |
| 5階 | 27坪 (89.26m²) | 募集終了 | - | - |
読込中...
近くのエリアで探してみる
人形町/馬喰町/浜町エリアでアソルティ人形町ビルに似た条件の物件
読込中...
| 取扱様態 | 仲介 |
|---|---|
| 取扱会社 | 株式会社 アットオフィス |