キャロットタワー15階の賃貸情報
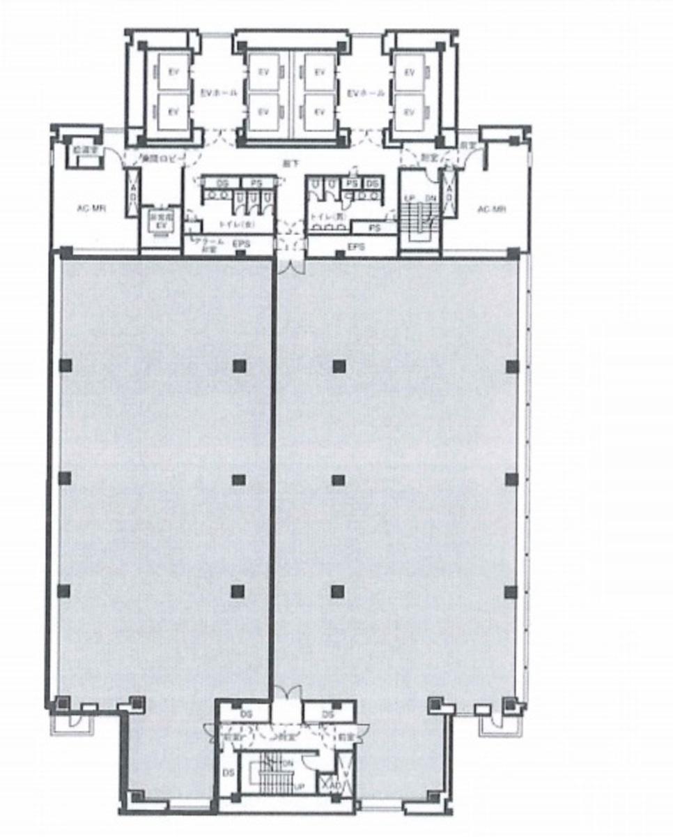
153.14 坪 (506.24m²)
※このサイトに記載がある賃貸条件は、敷金・保証金などの預かり金を除き、別途消費税がかかります。
キャロットタワーの建物概要
設備詳細
| 空調 | セントラル空調 |
|---|---|
| トイレ | - |
| 床仕様 | OA対応床(フリーアクセス) |
| エレベータ | 8 基 |
| 駐車場設備 | 空有 |
| その他 | 光ファイバー / 駅直結 / 新耐震基準 |
キャロットタワー15階の賃貸オフィス・事務所に関するお問い合わせ
キャロットタワーについて
世田谷区太子堂4丁目に位置するキャロットタワーは、東急世田谷線「三軒茶屋駅」から徒歩1分、「西太子堂駅」からは徒歩3分に立地しています。駅直結のため、建物内への移動がスムーズに行える点が特徴です。地上27階、地下5階建ての構造となっており、基準階面積は310.14㎡です。光ファイバーを備えていることから、通信インフラを必要とされる用途にも対応しています。新耐震基準を満たしていることが記載されています。周辺は飲食店や商業施設も点在するエリアで、建物の規模を活かした多様な事業活動の場としてご利用いただけます。詳細はお問い合わせください。
自分で探すより問い合わせる方が早いことがあります
WEB非公開物件があるから
オーナー様のご希望により「WEBでは非公開」にしている物件があります。 それらはWEBでいくら検索しても見つかりません。 先ずは条件などお知らせ頂けましたら非公開物件含め ピッタリのオフィスをご提案させて頂きます。 無理なお勧めはしておりませんので、お気軽にお問い合わせください。
対面でのご相談も受け付けております
ご来店も歓迎です
オフィス移転は社内・社外ともに非公開に行われることが殆どです。そのためアットオフィスでは、基本的に訪問によるコンサルティングを行っておりますが、ご来店の相談も歓迎です。お一人おひとりに親身にご対応させて頂きたい為、要予約とさせて頂いております。ご来店の際は先ずは下記よりご予約下さい。
世田谷区エリアでキャロットタワーに似た条件の物件
読込中...
キャロットタワーと同じ最寄駅の物件
読込中...
| 取扱様態 | 仲介 |
|---|---|
| 取扱会社 | 株式会社 アットオフィス |