日本橋N&Kビル1-2階の賃貸情報
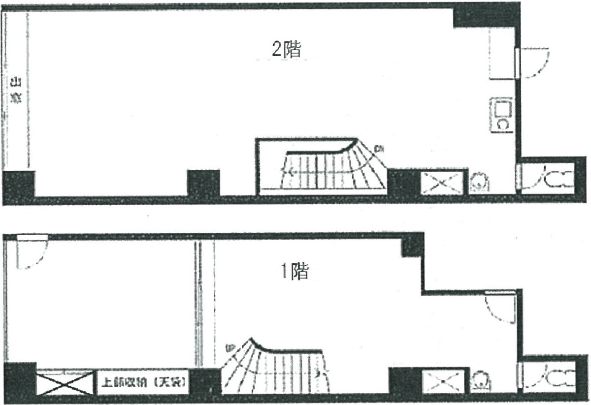
40.44 坪 (115.04m²)
※このサイトに記載がある賃貸条件は、敷金・保証金などの預かり金を除き、別途消費税がかかります。
日本橋N&Kビルの建物概要
設備詳細
| 空調 | 個別空調 |
|---|---|
| トイレ | - |
| 床仕様 | - |
| エレベータ | 1 基 / エレベーター有 |
| 駐車場設備 | 空有 |
| その他 | 1階の物件 / 店舗可(飲食不可) |
日本橋N&Kビル1-2階の賃貸オフィス・事務所に関するお問い合わせ
日本橋N&Kビルについて
日本橋N&Kビルは、東京都中央区日本橋富沢町に位置する、地上7階建てのオフィス賃貸物件です。1988年に新耐震基準に基づき竣工されたこのビルは、基準階約21坪の広さを誇り、現代のビジネスニーズに適応した設計がなされています。ビル内には1基のエレベーターが設置されており、ビルの構造と機能性を高める設備が整っています。 立地において、日本橋N&Kビルはオフィス街の中心に位置しており、複数の駅が徒歩5~10分の範囲内にあります。小伝馬町駅や馬喰横山駅からは徒歩約5分、東日本橋駅や人形町駅、馬喰町駅からも徒歩10分以内でアクセス可能であり、都心へのアクセスの良さはビジネスを展開する上で大きな利点となります。 また、周辺環境もビジネスにとって理想的です。ビルの近くには日本橋大伝馬郵便局があり、日常の業務に必要な郵便手続きをスムーズに行えます。さらに、近隣にはコンビニや銀行なども位置しており、ビジネスの日々の運営に便利な環境が整っています。 物件の設備面では、給湯設備や個室トイレ、洗面台が完備されており、オフィス内での快適な作業環境を提供します。さらに、ビル内に駐車場があるため、車を利用する従業員や来客の利便性も高められています。 日本橋N&Kビルは、耐震性に優れた構造、アクセスの良さ、そして快適なオフィス環境の提供という三つの大きな魅力を持つ物件です。ビジネスの拠点として、または新たなオフィスの立地として最適な選択肢の一つであることは間違いありません。このビルが提供する利便性と快適性は、あなたのビジネスをさらに成長させるための強力なサポートとなるでしょう。
日本橋N&Kビルのこだわり
自分で探すより問い合わせる方が早いことがあります
WEB非公開物件があるから
オーナー様のご希望により「WEBでは非公開」にしている物件があります。 それらはWEBでいくら検索しても見つかりません。 先ずは条件などお知らせ頂けましたら非公開物件含め ピッタリのオフィスをご提案させて頂きます。 無理なお勧めはしておりませんので、お気軽にお問い合わせください。
対面でのご相談も受け付けております
ご来店も歓迎です
オフィス移転は社内・社外ともに非公開に行われることが殆どです。そのためアットオフィスでは、基本的に訪問によるコンサルティングを行っておりますが、ご来店の相談も歓迎です。お一人おひとりに親身にご対応させて頂きたい為、要予約とさせて頂いております。ご来店の際は先ずは下記よりご予約下さい。
近くのエリアで探してみる
人形町/馬喰町/浜町エリアで日本橋N&Kビルに似た条件の物件
読込中...
日本橋N&Kビルと同じ最寄駅の物件
読込中...
| 取扱様態 | 仲介 |
|---|---|
| 取扱会社 | 株式会社 アットオフィス |