※このサイトに記載がある賃貸条件は、敷金・保証金などの預かり金を除き、別途消費税がかかります。
物件情報
設備詳細
| 空調 | 個別空調 |
|---|---|
| トイレ | 男女共用トイレ・室内 |
| 床仕様 | - |
| エレベータ | 1 基 |
| 駐車場設備 | - |
| その他 | 機械警備 / 光ファイバー / 新耐震基準 |
ME内神田ビルの賃貸オフィス・事務所に関するお問い合わせ
ME内神田ビルについて
【ME内神田ビルのご紹介】 ビジネスの中心地、千代田区内神田に位置する魅力あふれるオフィスビル、「ME内神田ビル」をご紹介します。このビルは、1984年に竣工し、耐震性に優れた鉄筋コンクリート造の5階建てであり、仕事に集中できる落ち着いた環境を提供しています。 【アクセスの良さ】 まず注目したいのは、その絶好の立地です。神田駅から徒歩わずか4分、大手町駅からは徒歩5分と、複数の鉄道路線が利用可能で非常に便利。ビジネスの機動性を高めるこの立地は、企業にとって大きな強みとなります。 【設備の充実】 ME内神田ビルでは、快適なオフィスライフをサポートするために、高速通信が可能な光ファイバーを完備。また、1基設置されたエレベーター、男女共用トイレ、さらにはセキュリティ設備も整っており、安全かつスムーズなオフィス環境を提供します。 【初期費用の軽減】 このビルのもう一つの魅力は、設備や家具が付いた居抜き物件であること。初期設置コストを抑えながら、すぐにビジネスを開始できる点は、特に新しい事業やクリニックを開業される方にとって大きなメリットです。 【周辺環境の充実】 周辺には、飲食店やコンビニが充実しており、日々の業務で急に何かが必要になった場合でも安心です。また、車の利用も考えたカーシェアリングへのアクセスが良好な点も見逃せません。 【まとめ】 ME内神田ビルは、優れたアクセス、快適なオフィス環境、利便性の高い周辺環境を兼ね備え、ビジネスの成長をサポートする理想的なオフィススペースです。このビルで新たなスタートを切り、ビジネスチャンスを最大限に引き出しましょう。ご興味のある方は、ぜひ一度足を運んでみてください。ME内神田ビルで、あなたのビジネスの未来を描きましょう!
ME内神田ビルのこだわり
自分で探すより問い合わせる方が早いことがあります
WEB非公開物件があるから
オーナー様のご希望により「WEBでは非公開」にしている物件があります。 それらはWEBでいくら検索しても見つかりません。 先ずは条件などお知らせ頂けましたら非公開物件含め ピッタリのオフィスをご提案させて頂きます。 無理なお勧めはしておりませんので、お気軽にお問い合わせください。
対面でのご相談も受け付けております
ご来店も歓迎です
オフィス移転は社内・社外ともに非公開に行われることが殆どです。そのためアットオフィスでは、基本的に訪問によるコンサルティングを行っておりますが、ご来店の相談も歓迎です。お一人おひとりに親身にご対応させて頂きたい為、要予約とさせて頂いております。ご来店の際は先ずは下記よりご予約下さい。
募集終了のテナント区画
| 階数 | 坪数 | 賃料 + 共益費 | 敷金/礼金敷金 礼金 | 検討 |
|---|---|---|---|---|
| 1階 | 17.25坪 (57.02m²) | 募集終了 | - | - |
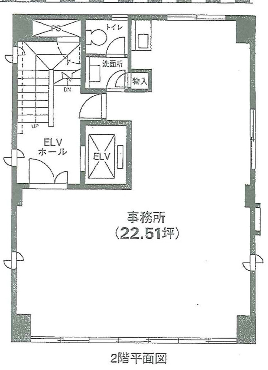
| 2階 | 22.51坪 (74.41m²) | 募集終了 | - | - |
| 4階 | 22.51坪 (74.41m²) | 募集終了 | - | - |
| 5階 | 18.54坪 (61.29m²) | 募集終了 | - | - |
読込中...
神田/秋葉原エリアでME内神田ビルに似た条件の物件
読込中...
| 取扱様態 | 仲介 |
|---|---|
| 取扱会社 | 株式会社 アットオフィス |