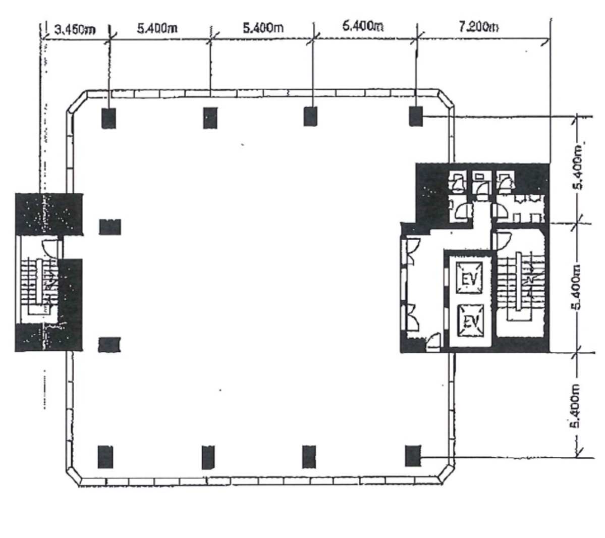
廣瀬ビル4階の賃貸情報
110.36 坪 (364.82m²)
※このサイトに記載がある賃貸条件は、敷金・保証金などの預かり金を除き、別途消費税がかかります。
廣瀬ビルの建物概要
設備詳細
| 空調 | 個別空調 |
|---|---|
| トイレ | - |
| 床仕様 | OA対応床(フリーアクセス) |
| エレベータ | 2 基 |
| 駐車場設備 | - |
| その他 | 機械警備 / 光ファイバー / 会議室 / オートロック |
廣瀬ビルについて
【廣瀬第1ビル:ビジネスの中心地、千代田区神田錦町に位置する至便のオフィス空間】 今回ご紹介するのは、東京都心、千代田区神田錦町に鎮座する「廣瀬第1ビル」です。このビルは、ビジネスの要とも言える立地にありながら、快適なオフィスライフをサポートする充実した設備を備えております。ビルの特徴や魅力、そしてビジネスにおける利点を詳しくご紹介しますので、最適なオフィス選びの参考にしてください。 【アクセスの便利さ】 廣瀬第1ビルは、東京メトロ東西線「竹橋駅」からわずか徒歩2分という非常に近い距離にあります。さらにJR「神田駅」や都営新宿線・三田線「神保町駅」からもアクセス可能で、3駅以上が徒歩圏内にあるという、まさにビジネスパーソンにとって理想的な立地条件を備えています。周辺には皇居もあり、落ち着いた環境で仕事に集中できるでしょう。 【設備の充実】 このビルは、地上12階建てで基準階面積は約110坪。1971年の竣工ながら、2019年12月には耐震補強工事が完了し、古さを感じさせない最新の設備と安心を提供しています。オフィス内はOAフロアを採用し、光ファイバーによる高速インターネット環境も完備。エレベーターは快適な移動のため2基設置されています。 【ビル内の利便性】 ビル内には貸会議室があり、必要に応じて利用することができます。また、男女別トイレや月極駐車場も完備しており、ビジネスに必要なサポート環境が整っています。1階には宅配便業者が入居しており、荷物の受け取りや発送もスムーズに行えます。 【周辺環境】 ビルの周辺には、カフェやコンビニ、お弁当屋などがあり、日々のランチやちょっとした買い物にも困りません。さらに、横路地にはカレー屋などの飲食店が並んでおり、アフター5のリフレッシュにも最適です。 【まとめ】 廣瀬第1ビルは、抜群の立地、充実した設備、便利な周辺環境と、ビジネスに必要なすべてを兼ね備えた賃貸オフィスビルです。ビジネスの成功を支える最高のパートナーとなること間違いなし。お問い合わせはお早めにどうぞ。あなたのビジネスライフを、廣瀬第1ビルで一層輝かせましょう!
廣瀬ビルのこだわり
その他の区画
| 階数 | 坪数 | 賃料 + 共益費 | 敷金/礼金敷金 礼金 | 検討 |
|---|---|---|---|---|
| 5階 | 110.36坪 (364.82m²) | 2,538,280円 (坪:23,000 円) | 相談 無相談/無 |
自分で探すより問い合わせる方が早いことがあります
WEB非公開物件があるから
オーナー様のご希望により「WEBでは非公開」にしている物件があります。 それらはWEBでいくら検索しても見つかりません。 先ずは条件などお知らせ頂けましたら非公開物件含め ピッタリのオフィスをご提案させて頂きます。 無理なお勧めはしておりませんので、お気軽にお問い合わせください。
対面でのご相談も受け付けております
ご来店も歓迎です
オフィス移転は社内・社外ともに非公開に行われることが殆どです。そのためアットオフィスでは、基本的に訪問によるコンサルティングを行っておりますが、ご来店の相談も歓迎です。お一人おひとりに親身にご対応させて頂きたい為、要予約とさせて頂いております。ご来店の際は先ずは下記よりご予約下さい。
神田/秋葉原エリアで廣瀬ビルに似た条件の物件
読込中...
廣瀬ビルと同じ最寄駅の物件
読込中...
| 取扱様態 | 仲介 |
|---|---|
| 取扱会社 | 株式会社 アットオフィス |