飯田橋セントラルビル7階の賃貸情報
50.52 坪 (167.02m²)
※このサイトに記載がある賃貸条件は、敷金・保証金などの預かり金を除き、別途消費税がかかります。
飯田橋セントラルビルの建物概要
設備詳細
| 空調 | - |
|---|---|
| トイレ | - |
| 床仕様 | OA対応床(フリーアクセス) |
| エレベータ | 1 基 |
| 駐車場設備 | - |
| その他 | 機械警備 / 光ファイバー / 新耐震基準 / オートロック |
飯田橋セントラルビルについて
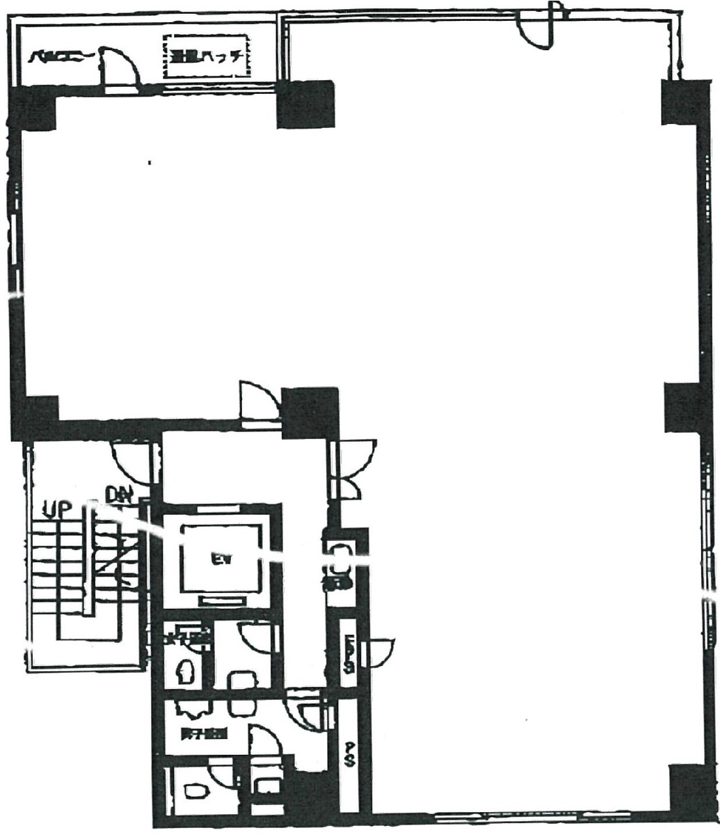
飯田橋セントラルビルは、千代田区飯田橋4丁目に誇りを持って立地しており、ビジネスシーンにおいて最適な空間を提供しています。1983年に竣工したこの9階建てのオフィスビルは、基準階約50坪の賃貸オフィス物件として、様々なビジネスニーズに対応可能です。目白通り沿いの位置にあり、周辺には豊富な飲食店が点在し、ビジネスアフターも充実。さらに、最寄りの飯田橋駅へのアクセスも良好で、通勤やビジネスシーンでの移動に便利です。 ビルの特徴として、エレベーターが1基設置されており、スムーズな移動をサポート。セキュリティ面では、機械警備システムを導入しており、入居者の安全と安心を守ります。また、執務形状がL字型で、無柱空間のため、オフィスレイアウトを自由にデザインすることができます。これにより、効率的なオフィス環境の構築が可能です。水回りは共用部に設置されており、男女別のトイレが利用できるため、快適なオフィスライフをサポートします。 外観はタイル張りで、清潔感とモダンな雰囲気を醸し出しており、ビジネスの顔としても最適です。個別空調やOAフロアを完備しており、快適なオフィス環境を実現しています。 飯田橋セントラルビルは、その立地、設備、セキュリティといった点で、ビジネスを展開する企業にとって最適な環境を提供します。ビジネスの成功を支える重要なパートナーとして、皆様のビジネス展開を力強くサポートいたします。飯田橋での新しいオフィスライフを、飯田橋セントラルビルで始めませんか?
飯田橋セントラルビルのこだわり
自分で探すより問い合わせる方が早いことがあります
WEB非公開物件があるから
オーナー様のご希望により「WEBでは非公開」にしている物件があります。 それらはWEBでいくら検索しても見つかりません。 先ずは条件などお知らせ頂けましたら非公開物件含め ピッタリのオフィスをご提案させて頂きます。 無理なお勧めはしておりませんので、お気軽にお問い合わせください。
対面でのご相談も受け付けております
ご来店も歓迎です
オフィス移転は社内・社外ともに非公開に行われることが殆どです。そのためアットオフィスでは、基本的に訪問によるコンサルティングを行っておりますが、ご来店の相談も歓迎です。お一人おひとりに親身にご対応させて頂きたい為、要予約とさせて頂いております。ご来店の際は先ずは下記よりご予約下さい。
近くのエリアで探してみる
飯田橋/神保町/水道橋エリアで飯田橋セントラルビルに似た条件の物件
読込中...
飯田橋セントラルビルと同じ最寄駅の物件
読込中...
| 取扱様態 | 仲介 |
|---|---|
| 取扱会社 | 株式会社 アットオフィス |