IMI千葉富士見の賃料条件
| 階数 | 坪数 | 賃料 + 共益費 | 敷金/礼金敷金 礼金 | 検討 |
|---|---|---|---|---|
| 4階 | 33.69坪 (111.37m²) | お問合せ下さい (坪:-) | 12ヶ月 無12ヶ月/無 | |
| 8階 | 125.26坪 (414.08m²) | お問合せ下さい (坪:-) | 相談 無相談/無 |
※このサイトに記載がある賃貸条件は、敷金・保証金などの預かり金を除き、別途消費税がかかります。
物件情報
設備詳細
| 空調 | 個別空調 |
|---|---|
| トイレ | 男女別トイレ室外 |
| 床仕様 | OA対応床(フリーアクセス) |
| エレベータ | 2 基 |
| 駐車場設備 | 空有 / 機械式駐車場 |
| その他 | 大型ビル |
IMI千葉富士見の賃貸オフィス・事務所に関するお問い合わせ
IMI千葉富士見について
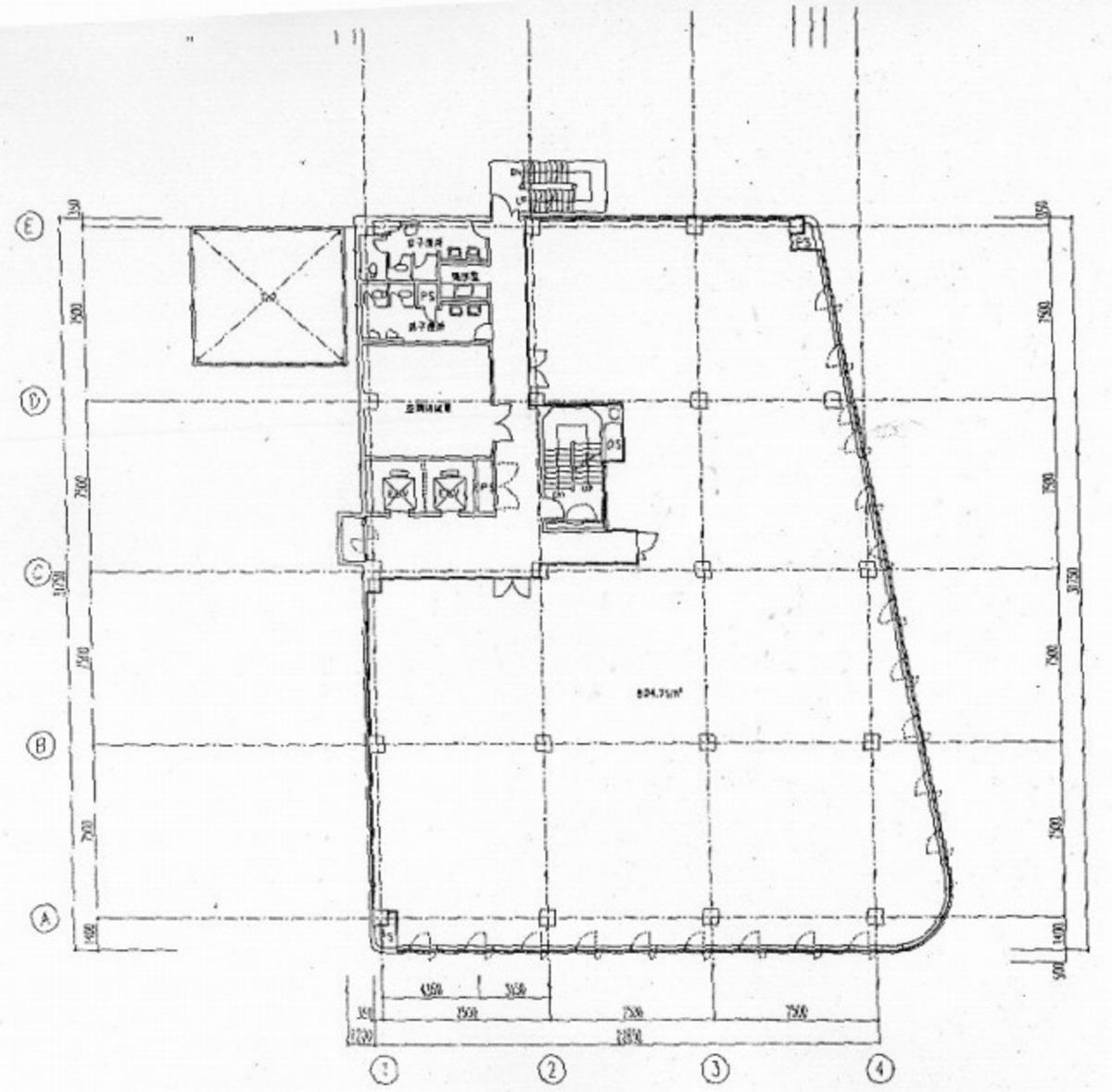
IMI千葉富士見は、千葉市中央区富士見2丁目に位置する地上9階建ての大型ビルです。千原線「千葉中央駅」まで徒歩2分、千葉都市モノレール1号線「葭川公園駅」や京成電鉄千葉線「千葉中央駅」も徒歩3分の距離にあり、複数の路線利用が可能な立地です。周辺には商業施設や各種サービスが集まり、オフィス利用に適した環境となっています。 1フロアあたり約604.96㎡の基準階面積が確保されており、レイアウトの自由度が高い設計です。大規模なオフィス展開や事業所の一体利用など、各種法人ニーズに対応できる広さを有しています。2基のエレベーターが設置されているため、複数の部署やテナントによる利用を想定した動線計画にも配慮されています。 機械式駐車場を備えており、車両を利用される場合にも対応可能です。ビルの規模や周辺環境を活かし、業務効率や組織運営を重視される企業にとって利便性の高い選択肢となります。 詳細はお問い合わせください。
自分で探すより問い合わせる方が早いことがあります
WEB非公開物件があるから
オーナー様のご希望により「WEBでは非公開」にしている物件があります。 それらはWEBでいくら検索しても見つかりません。 先ずは条件などお知らせ頂けましたら非公開物件含め ピッタリのオフィスをご提案させて頂きます。 無理なお勧めはしておりませんので、お気軽にお問い合わせください。
対面でのご相談も受け付けております
ご来店も歓迎です
オフィス移転は社内・社外ともに非公開に行われることが殆どです。そのためアットオフィスでは、基本的に訪問によるコンサルティングを行っておりますが、ご来店の相談も歓迎です。お一人おひとりに親身にご対応させて頂きたい為、要予約とさせて頂いております。ご来店の際は先ずは下記よりご予約下さい。
募集終了のテナント区画
| 階数 | 坪数 | 賃料 + 共益費 | 敷金/礼金敷金 礼金 | 検討 |
|---|---|---|---|---|
| 2階 | 36.25坪 (119.83m²) | 募集終了 | - | - |
| 2階 | 86.2坪 (285m²) | 募集終了 | - | - |
| 3階 | 122.2坪 (404m²) | 募集終了 | - | - |
| 4階 | 103.1坪 (341m²) | 募集終了 | - | - |
| 5階 | 58.31坪 (192.76m²) | 募集終了 | - | - |
| 6階 | 37.5坪 (124m²) | 募集終了 | - | - |
| 6階 | 58.9坪 (195m²) | 募集終了 | - | - |
| 7階 | 182.7坪 (604m²) | 募集終了 | - | - |
| 8階 | 58.31坪 (192.76m²) | 募集終了 | - | - |
| 9階 | 140.9坪 (466m²) | 募集終了 | - | - |
読込中...
中央区エリアでIMI千葉富士見に似た条件の物件
読込中...
| 取扱様態 | 仲介 |
|---|---|
| 取扱会社 | 株式会社 アットオフィス |