オーキッドプレイス八丁堀2階の賃貸情報
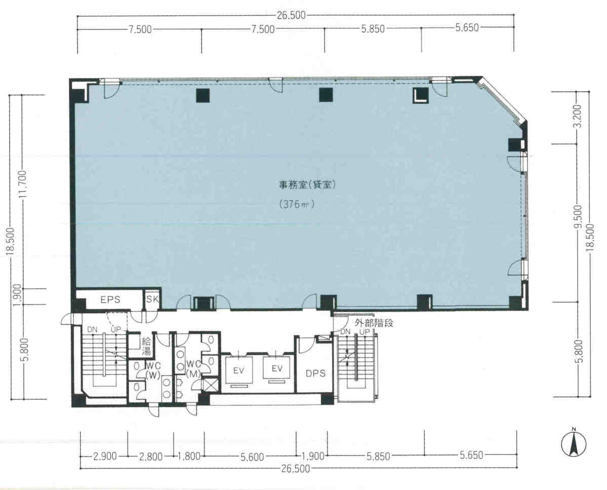
112.83 坪 (372.99m²)
お問合せ下さい (坪:-)
※このサイトに記載がある賃貸条件は、敷金・保証金などの預かり金を除き、別途消費税がかかります。
オーキッドプレイス八丁堀の建物概要
設備詳細
| 空調 | - |
|---|---|
| トイレ | - |
| 床仕様 | - |
| エレベータ | 2 基 |
| 駐車場設備 | 空有 / 機械式駐車場 |
| その他 | 24時間利用可 / 光ファイバー / 新耐震基準 / 駅直結 |
オーキッドプレイス八丁堀2階の賃貸オフィス・事務所に関するお問い合わせ
オーキッドプレイス八丁堀について
ヒューリック八丁堀第2ビルは、ビジネスの中心地、東京都中央区八丁堀4-10-4に位置する、質の高いオフィススペースを提供するオフィスビルです。このビルは、1990年に竣工し、新耐震基準を満たす構造で設計されているため、安心してビジネスを行なうことができます。その立地は、八丁堀駅から徒歩1分という、アクセスの良さを誇ります。駅直結の好立地は、従業員や来訪者にとっての利便性を大きく向上させ、ビジネスの機会を拡大します。 ビル内の設備は、現代のオフィスニーズに応えるために細心の注意を払って設計されています。機械警備システムにより、24時間体制で安全が確保されており、入居企業とその従業員は安心して業務に専念できます。また、個別空調システムにより、各テナントは自社の快適な環境を自由にコントロールできます。これは、従業員の満足度を高め、生産性の向上に寄与します。 男女別トイレやOAフロアなどの設備も整っており、ビジネスのあらゆるニーズに対応可能です。ビル内に駐車場が設けられているため、車でのアクセスも容易であり、ビジネスの幅を広げる上で重要な要素となります。エレベーターは2機設置されており、スムーズな移動を保証します。 ヒューリック八丁堀第2ビルは、その優れた耐震性、抜群の立地、充実した設備により、多様なビジネスニーズに応えることができるオフィスビルです。ビルの特性を理解し、それを最大限に活用することで、ビジネスの成功に大きく貢献することが期待できます。このビルが、企業の成長と発展を支える基盤となることでしょう。
自分で探すより問い合わせる方が早いことがあります
WEB非公開物件があるから
オーナー様のご希望により「WEBでは非公開」にしている物件があります。 それらはWEBでいくら検索しても見つかりません。 先ずは条件などお知らせ頂けましたら非公開物件含め ピッタリのオフィスをご提案させて頂きます。 無理なお勧めはしておりませんので、お気軽にお問い合わせください。
対面でのご相談も受け付けております
ご来店も歓迎です
オフィス移転は社内・社外ともに非公開に行われることが殆どです。そのためアットオフィスでは、基本的に訪問によるコンサルティングを行っておりますが、ご来店の相談も歓迎です。お一人おひとりに親身にご対応させて頂きたい為、要予約とさせて頂いております。ご来店の際は先ずは下記よりご予約下さい。
近くのエリアで探してみる
茅場町/新川/八丁堀エリアでオーキッドプレイス八丁堀に似た条件の物件
読込中...
オーキッドプレイス八丁堀と同じ最寄駅の物件
読込中...
| 取扱様態 | 仲介 |
|---|---|
| 取扱会社 | 株式会社 アットオフィス |