※このサイトに記載がある賃貸条件は、敷金・保証金などの預かり金を除き、別途消費税がかかります。
物件情報
設備詳細
| 空調 | 個別空調 |
|---|---|
| トイレ | - |
| 床仕様 | - |
| エレベータ | 1 基 |
| 駐車場設備 | - |
| その他 | 新耐震基準 / 店舗可(飲食不可) / クリニック |
石田ビルの賃貸オフィス・事務所に関するお問い合わせ
石田ビルについて
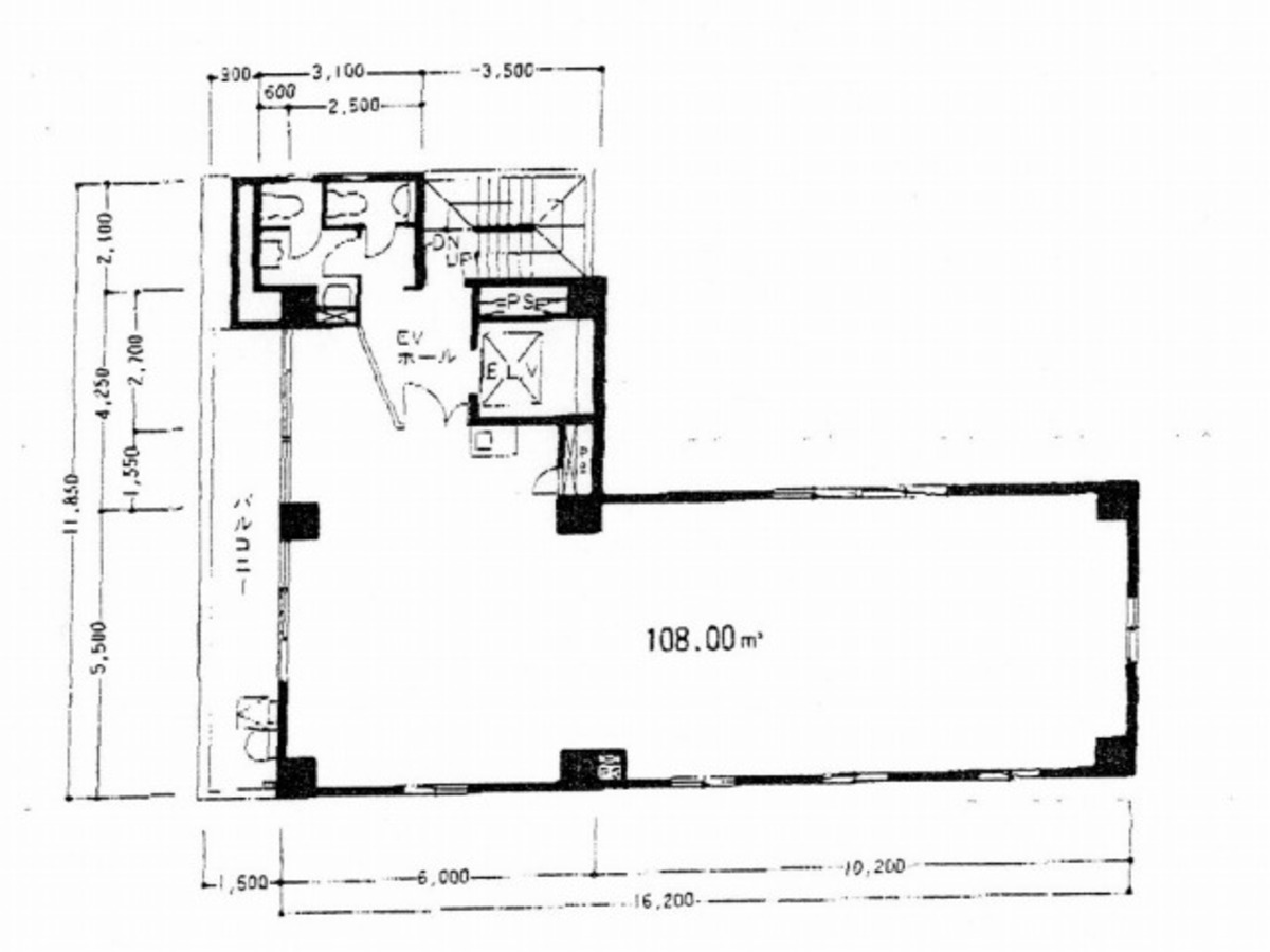
中央区日本橋小伝馬町に位置する石田ビルは、1986年に竣工された耐震性に優れた賃貸オフィスビルです。このビルは、基準階約36坪のコンパクトで効率的なオフィス空間を提供し、特に中小企業やスタートアップ企業にとって理想的な選択肢となります。シンプルでありながら機能的なデザインが特徴で、個々のオフィス空間は特殊な形状をしており、創造的なレイアウトを可能にします。 立地の面では、石田ビルは小伝馬町駅から徒歩1分の距離にあり、馬喰町駅、馬喰横山駅も徒歩圏内という非常に便利な場所に位置しています。3つ以上の駅が利用可能であり、東京都心へのアクセスが容易であることは、ビジネスの機会を広げる上で大きな利点と言えるでしょう。 ビル内の設備に関しては、各階に男女別トイレが設置されており、プライバシーと快適性が保たれています。また、個別空調システムが導入されているため、オフィス内の環境を自由に調整することが可能です。給湯スペースや洗面台も完備されており、オフィスでの日常生活に必要な設備が整っています。 外観はベージュタイルで覆われたシンプルながらも洗練されたデザインとなっており、ビジネスの顔としての印象も良好です。ビルは7階建てで、5階以上はセットバックされており、都市の景観にも配慮されています。エレベーターは1基設置されていますが、ビルの規模に見合った適切な設計となっているため、利用時のストレスは少ないでしょう。 周辺環境も魅力の一つです。ビルは江戸通りを一本入った静かな場所にありながら、周辺には飲食店やコンビニ、郵便局、銀行などがあり、ビジネスに必要なあらゆるサービスが手の届く範囲内にあります。このように、石田ビルは、立地、設備、利便性を兼ね備えた賃貸オフィスビルとして、多様なニーズに応えることができるでしょう。 これらの特徴を踏まえると、石田ビルはビジネスの拠点としてだけでなく、新しいビジネスチャンスを探求する企業にとっても最適な場所と言えます。中央区日本橋小伝馬町エリアでオフィスを検討されている企業様は、ぜひ石田ビルをご検討ください。
石田ビルのこだわり
自分で探すより問い合わせる方が早いことがあります
WEB非公開物件があるから
オーナー様のご希望により「WEBでは非公開」にしている物件があります。 それらはWEBでいくら検索しても見つかりません。 先ずは条件などお知らせ頂けましたら非公開物件含め ピッタリのオフィスをご提案させて頂きます。 無理なお勧めはしておりませんので、お気軽にお問い合わせください。
対面でのご相談も受け付けております
ご来店も歓迎です
オフィス移転は社内・社外ともに非公開に行われることが殆どです。そのためアットオフィスでは、基本的に訪問によるコンサルティングを行っておりますが、ご来店の相談も歓迎です。お一人おひとりに親身にご対応させて頂きたい為、要予約とさせて頂いております。ご来店の際は先ずは下記よりご予約下さい。
読込中...
近くのエリアで探してみる
人形町/馬喰町/浜町エリアで石田ビルに似た条件の物件
読込中...
| 取扱様態 | 仲介 |
|---|---|
| 取扱会社 | 株式会社 アットオフィス |