フジノビル7階の賃貸情報
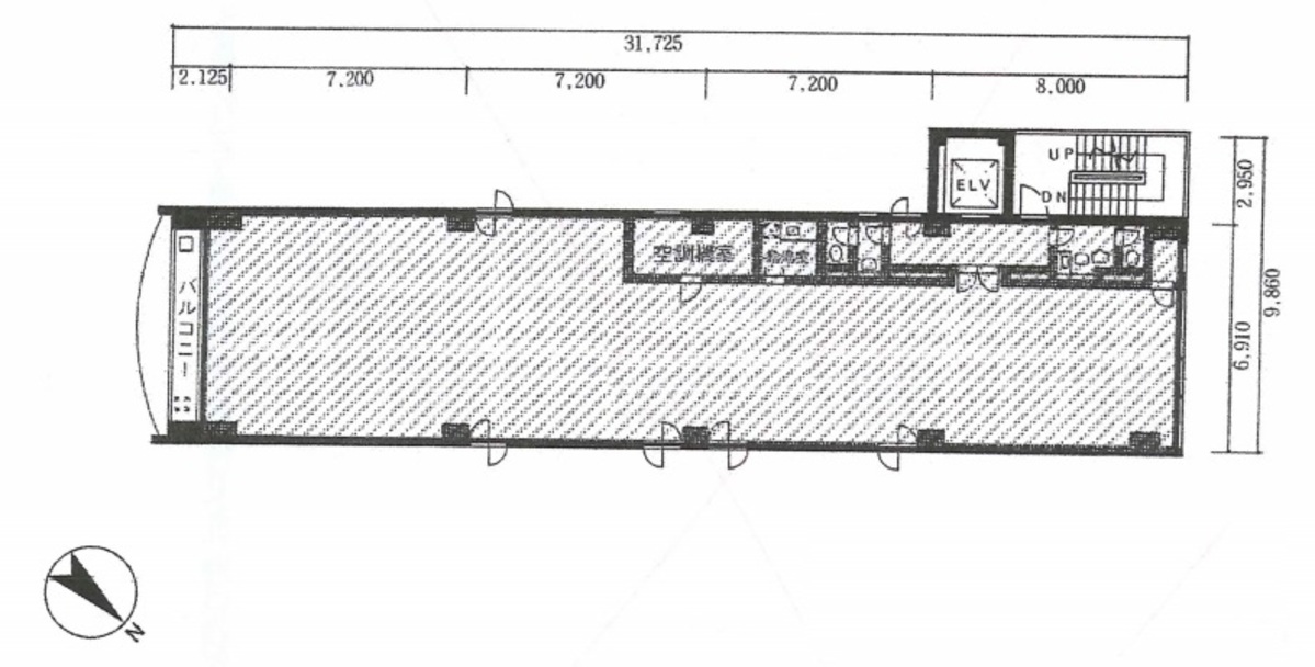
68.96 坪 (227.97m²)
※このサイトに記載がある賃貸条件は、敷金・保証金などの預かり金を除き、別途消費税がかかります。
フジノビルの建物概要
設備詳細
| 空調 | 個別空調 |
|---|---|
| トイレ | - |
| 床仕様 | OA対応床(フリーアクセス) |
| エレベータ | 1 基 |
| 駐車場設備 | 平置き駐車場 |
| その他 | 機械警備 / 24時間利用可 / 光ファイバー / 新耐震基準 / フリーレント |
フジノビル7階の賃貸オフィス・事務所に関するお問い合わせ
フジノビルについて
フジノビルは、東京都中央区日本橋小伝馬町に位置する、ビジネスに最適な賃貸オフィスビルです。1987年に竣工し、地上9階建てのこのビルは、新耐震基準にも対応しており、安心してご利用いただける構造となっています。基準階面積は約70坪と、中規模企業からスタートアップ企業まで幅広いニーズに応えることが可能です。また、ビル内には1基のエレベーターが設置されており、11人乗りという広々とした設計になっています。 フジノビルの立地は、ビジネスの中心地である東京都中央区日本橋小伝馬町にあることから、アクセスの良さが特徴の一つです。JR総武線(快速)の馬喰町駅、東京メトロ日比谷線の小伝馬町駅が徒歩2分圏内、さらに都営新宿線の馬喰横山駅、都営浅草線の東日本橋駅も徒歩圏内と、複数の路線を利用することができます。こうした立地条件は、従業員の通勤はもちろん、ビジネスパートナーとのアクセスにも非常に便利です。 ビルのセキュリティ面では、機械警備システムによる24時間体制を敷いており、テナントの安全とセキュリティをしっかりと守ります。また、貸室内は個別空調・OAフロアを完備しており、快適なオフィス環境を提供しています。トイレは男女別で室外に設置されており、オフィス内のレイアウトを自由に行えるよう配慮されています。 このビルの外観は、グレーを基調としたシンプルなデザインで、ビジネスのプロフェッショナリズムを象徴しています。周辺にはコンビニや飲食店、銀行などが揃っており、日常的な利便性も高いです。このように、フジノビルは、その立地の良さ、セキュリティの確かさ、そして使いやすいオフィス環境を兼ね備えた賃貸オフィスビルです。ビジネスの拠点として、ぜひご検討ください。
自分で探すより問い合わせる方が早いことがあります
WEB非公開物件があるから
オーナー様のご希望により「WEBでは非公開」にしている物件があります。 それらはWEBでいくら検索しても見つかりません。 先ずは条件などお知らせ頂けましたら非公開物件含め ピッタリのオフィスをご提案させて頂きます。 無理なお勧めはしておりませんので、お気軽にお問い合わせください。
対面でのご相談も受け付けております
ご来店も歓迎です
オフィス移転は社内・社外ともに非公開に行われることが殆どです。そのためアットオフィスでは、基本的に訪問によるコンサルティングを行っておりますが、ご来店の相談も歓迎です。お一人おひとりに親身にご対応させて頂きたい為、要予約とさせて頂いております。ご来店の際は先ずは下記よりご予約下さい。
近くのエリアで探してみる
人形町/馬喰町/浜町エリアでフジノビルに似た条件の物件
読込中...
フジノビルと同じ最寄駅の物件
読込中...
| 取扱様態 | 仲介 |
|---|---|
| 取扱会社 | 株式会社 アットオフィス |